Embracing the Outdoors: Unpacking the Charm of a Ranch House with
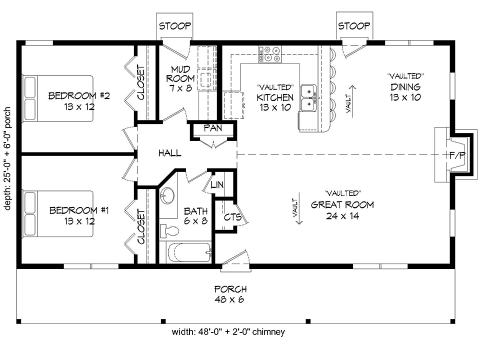
There's something magical about stepping onto a porch that embraces your entire home. In the world of American architecture, few designs capture this feeling...
Explore our collection of house plans (general). Find the perfect layout for your dream home with detailed plans and design insights.
1438 articles · Page 105 of 120
There's something magical about stepping onto a porch that embraces your entire home. In the world of American architecture, few designs capture this feeling...
Imagine stepping out onto a porch that wraps around three sides of your home, creating a seamless transition between indoor comfort and outdoor adventure. Th...
When you think about tiny homes, the first thing that comes to mind might be compact living spaces. But what if we told you there's a way to make even the sm...
Imagine walking into a home that feels spacious despite its modest size. Picture a kitchen that flows seamlessly into the living area, with enough room for f...
Picture this: You're walking into your new home, feeling the warmth of a well-designed ranch style house with a basement underneath. The open concept living ...
Imagine walking into your home and feeling instantly at ease. Picture a space that flows naturally, where every room serves a purpose while maintaining aesth...
When you're working with a tight space, every square foot matters. A 1400 square foot home might seem small, but with thoughtful planning, it can become a co...
In a world where housing costs keep climbing and lifestyle preferences shift toward minimalism, 1400 square feet has emerged as the perfect middle ground. It...
In a world where space feels increasingly precious, 900 square foot cottage plans offer a refreshing alternative. These compact homes aren't just small—they'...
There's something deeply satisfying about stepping onto a wrap-around porch. The way the wood weatheres, the gentle creak of the floorboards underfoot, the w...
Picture this: you're walking through a home that feels just right. The bedrooms are spacious enough for comfort, the bathrooms have just the right amount of ...
When you own property on a hillside or slope, the possibilities for creative home design are endless. One of the most popular and practical solutions is inco...