In a world where housing costs keep climbing and lifestyle preferences shift toward minimalism, 1400 square feet has emerged as the perfect middle ground. It's not too cramped, not too spacious, and definitely not outdated. This size offers homeowners the opportunity to build something truly special without breaking the bank or sacrificing comfort. Whether you're planning your first home, downsizing, or simply looking for an efficient living arrangement, these plans can transform your vision into reality.
When you think about home sizes, 1400 square feet might seem like just another number on a blueprint. But it's actually a sweet spot that many people find incredibly appealing. It's large enough to feel comfortable, yet small enough to manage easily. You won't have to spend hours cleaning or worry about heating every corner of your space. Plus, with smart planning, you can create a home that feels both functional and stylish. This size works well for singles, couples, empty nesters, or even small families. The key is understanding how to maximize every inch.
The Perfect Size for Modern Living

Modern life demands flexibility, and 1400 square feet provides exactly that. This space allows for open floor plans that connect living areas, dining spaces, and kitchens seamlessly. You can have a cozy breakfast nook while still maintaining room for guests. The size also makes it easier to keep your home clean and organized. There's less surface area to dust, fewer corners to vacuum, and manageable heating bills. Think about how much easier it is to live in a space that feels lived-in rather than sterile. It's the kind of place where you can entertain friends without feeling cramped, yet still enjoy quiet moments alone.
Smart Layouts That Work for Everyone
Good 1400 square foot house plans often feature open-concept designs. This means fewer walls and more flow between rooms. A kitchen island can double as a breakfast bar and social hub. Bedrooms can be positioned to provide privacy while keeping the overall space connected. Here's what to look for:

These layouts make the most of limited space by creating zones that feel distinct yet part of one cohesive whole.
Key Design Elements for Maximum Impact
What really sets great 1400 square foot plans apart is attention to detail. Consider these essential features:

Many designers suggest using light colors on walls and ceilings to create an illusion of more space. Mirrors strategically placed can reflect light and make rooms feel bigger. These simple tricks can transform a modest-sized home into a bright, airy sanctuary.
Budget-Friendly Solutions for Smart Living
Building or buying a 1400 square foot home doesn't have to mean breaking your budget. Start by prioritizing what matters most to you. Do you need a large kitchen? Maybe a home office? Or perhaps a master suite with a walk-in closet? Once you've identified your priorities, you can allocate your budget accordingly. Some cost-saving tips include:

Remember, the cheapest option isn't always the best long-term investment. Sometimes spending a little more upfront on quality materials pays off in reduced maintenance later.
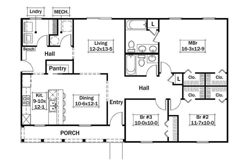
Real-Life Examples of Successful 1400 Square Foot Homes
Looking at actual examples helps bring the concept to life. One popular design features a main level with a large living room, kitchen, and dining area all flowing together. The upper level includes two bedrooms and a shared bathroom, with a bonus room that could be a home gym or craft space. Another common layout puts the bedroom on the main level with a separate bathroom and a private entrance, perfect for guests or a home office.

Some homeowners have successfully converted garage spaces into studios or additional bedrooms. Others have created sunrooms or covered porches that extend their living space outdoors. These adaptations show how flexible 1400 square feet can be when approached creatively.
Planning Tips for Your Own 1400 Square Foot Project
Before diving into architectural drawings, consider these important factors:
Start by sketching out your ideal day in your new home. Where do you want to sleep? Where do you want to cook? How much space do you need for hobbies or crafts? Answering these questions helps guide the design process. Many people find it helpful to visit model homes or browse online galleries to get inspiration. Don't overlook the importance of good lighting and ventilation either. These elements affect daily comfort more than anything else.
The 1400 square foot house plan represents more than just a size—it's a lifestyle choice that emphasizes efficiency, sustainability, and intentional living. As we continue to evolve our relationship with space, this size offers a practical solution that doesn't compromise on comfort or style. Whether you're building a new home or renovating an existing space, focusing on smart design principles can make all the difference. The beauty of 1400 square feet lies in its ability to adapt to your changing needs over time. With thoughtful planning and creative thinking, you can build a home that feels perfectly right for you, regardless of how big or small you want to feel.