Imagine walking into a home that feels spacious despite its modest size. Picture a kitchen that flows seamlessly into the living area, with enough room for family gatherings and quiet moments alike. That's exactly what 1200 square foot ranch house plans can deliver. These homes have become increasingly popular because they offer the perfect balance between affordability, functionality, and charm. Whether you're a young couple starting out, a growing family looking for something manageable, or someone who appreciates simple living, these compact designs pack a punch when it comes to comfort and style.
When it comes to home design, there's something incredibly appealing about the idea of a 1200 square foot ranch house plan. These homes aren't just about saving money – they're about maximizing every inch of space while maintaining a sense of openness and flow. Think about it: most people spend their days in their homes, so having a well-designed space that feels comfortable and functional matters more than anything else. A 1200 sq ft ranch house gives you that luxury without the burden of excessive maintenance or high utility costs. It's the kind of home where you can entertain guests easily, cook meals with family around the table, and still have room for hobbies or a small office. Plus, these designs often feature classic elements that never go out of style, making them smart investments for the future.
Why Choose a 1200 Sq Ft Ranch House?

There are several compelling reasons why 1200 square foot ranch house plans have captured the imagination of so many homeowners. First and foremost, they're incredibly affordable to build or buy. You're not paying for unnecessary square footage, which means lower mortgage payments, reduced heating and cooling costs, and less money spent on maintenance. Second, these homes tend to be more energy efficient. Smaller spaces mean less air to heat or cool, which translates into savings on monthly bills. Third, they're perfect for people who want to live simply. No sprawling rooms to clean, no large areas to keep warm in winter, and no overwhelming space to manage. For many, this simplicity brings peace of mind. Many folks find that their lives improve significantly once they move into a home that's easy to navigate and maintain. Plus, 1200 sq ft ranch houses often fit perfectly in neighborhoods where larger homes might feel out of place. They're versatile, charming, and practical all at once.
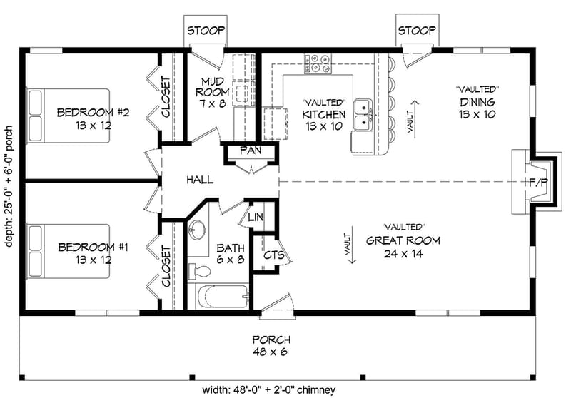
Essential Layout Considerations
Designing a 1200 square foot ranch house requires careful thought about how space will function. Here are some key elements to consider:

The goal isn't to cram everything into one tiny area. Instead, focus on creating zones that work together harmoniously. Think of your home like a well-orchestrated symphony – each element plays its part, contributing to a beautiful whole rather than competing for attention.
Popular Design Features
While every 1200 sq ft ranch house plan is unique, certain features consistently appear in successful designs:

These features don't just look good – they improve daily life. A kitchen island becomes a place for casual conversations with family members, while a deck transforms your home into an extension of your outdoor living space.
Cost Considerations
Building or buying a 1200 sq ft ranch house can be surprisingly affordable compared to larger homes. Here's what you should expect:

One advantage of smaller homes is that they're generally less expensive to maintain. Fewer surfaces to clean, less water to heat, and fewer areas where problems can develop all contribute to lower ongoing expenses. Plus, if you're considering a pre-built home, many builders offer standard plans that can save time and money compared to custom designs.
Practical Tips for Maximizing Space
Maximizing every inch of your 1200 sq ft ranch house is both an art and a science. Here are some strategies that work particularly well:

The key is to avoid overcrowding. Sometimes less really is more. A few well-chosen pieces that serve multiple purposes are better than many items that take up space but don't add value to your daily routine.
Finding the Right Plan for Your Needs
With so many 1200 sq ft ranch house plans available, choosing the right one can feel overwhelming. Here's how to narrow down your options:
Don't rush the decision-making process. Take time to review multiple plans and consider how each one would work with your current and future needs. Remember, you'll be living in this home for years to come, so make sure it fits your vision of what a perfect home looks like for you.
A 1200 square foot ranch house plan represents more than just a housing option – it's a lifestyle choice that emphasizes efficiency, comfort, and practicality. These homes prove that size doesn't determine happiness or success. In fact, they often provide the opposite, offering a peaceful retreat where you can truly enjoy the simple pleasures of home. Whether you're a first-time homebuyer, downsizing, or simply looking for a more manageable living situation, these designs offer flexibility and charm that appeal to people across different life stages. The secret lies in thoughtful planning and smart design choices that make the most of limited space. With proper consideration, a 1200 sq ft ranch house can become your ideal sanctuary, filled with memories and character that grows with you over time. The best part? You won't need a huge budget to achieve this dream. Sometimes the smallest spaces can hold the biggest hearts.