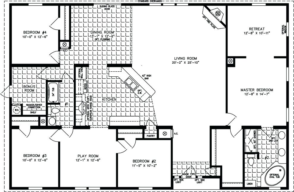
2 bedroom 1 bathroom house designs
Every home deserves to feel like a sanctuary, regardless of size. For many families and individuals, the 2 bedroom 1 bathroom house represents the perfect ba...
Explore our collection of floor plans (general). Find the perfect layout for your dream home with detailed plans and design insights.
274 articles · Page 5 of 23
Every home deserves to feel like a sanctuary, regardless of size. For many families and individuals, the 2 bedroom 1 bathroom house represents the perfect ba...
When it comes to housing, size matters less than how well you use every square foot. A 2 bedroom 1 bathroom home plan isn't just about being compact - it's a...
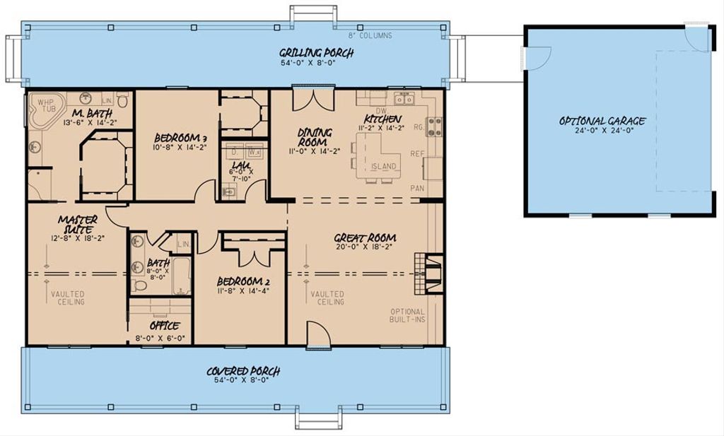
Every family deserves a home that works for them. Whether you're planning a new build, renovating, or simply looking for inspiration, the 3 bedroom 2 bath fl...
Picture this: a spacious home that comfortably fits your family, guests, and maybe even a home office or hobby room. What if you could visualize every detail...
You know that feeling when you walk into a house and think 'this is exactly what I need'? That's the magic of smart 2 bedroom 1 bath house design. It's not j...
Every home deserves a thoughtful layout that works for your lifestyle. When it comes to three-bedroom houses, the challenge lies in balancing comfort, functi...
Imagine waking up to morning light streaming through a gabled window, the scent of fresh bread wafting from the kitchen, and the cozy feeling of being surrou...
When you're dreaming of a home that balances comfort, functionality, and style, 4 bedroom 3.5 bath house plans offer the sweet spot that many families crave....
Imagine waking up in a space where light streams through large windows, where your kitchen flows seamlessly into your living area, and where every corner ser...
Every family deserves a home that works for their lifestyle. Whether you're planning a new build or remodeling an existing space, understanding how to design...
In recent years, homeowners have increasingly gravitated toward designs that maximize space and create dynamic living environments. One such approach gaining...
When you're looking to build or buy a home that's both affordable and efficient, the 2 bedroom 1 kitchen 1 bathroom house plan might just be your answer. The...