Exploring Popular 1800 Sq Ft Home Layouts for Modern Living
Imagine walking into a home that feels spacious, comfortable, and perfectly suited to your lifestyle - all within just 1800 square feet. It's not magic, but ...
Explore our collection of floor plans (general). Find the perfect layout for your dream home with detailed plans and design insights.
274 articles · Page 23 of 23
Imagine walking into a home that feels spacious, comfortable, and perfectly suited to your lifestyle - all within just 1800 square feet. It's not magic, but ...
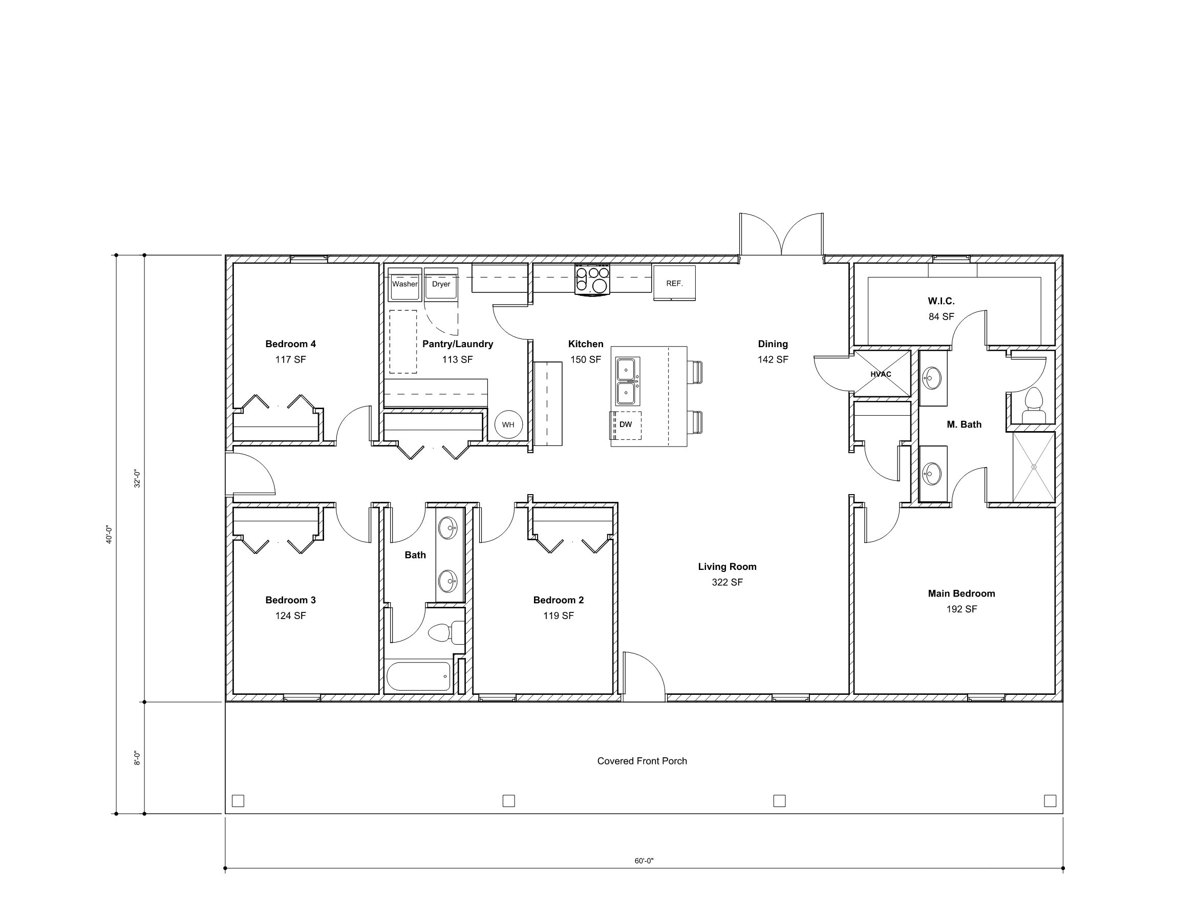
Picture this: your family gathered around the kitchen island, kids playing in the living room, and everyone enjoying their private bathrooms after a busy day...
Whether you're planning a new build or remodeling your current space, understanding how to design effective 2-bedroom home floor plans can transform your liv...
Picture this: You've just purchased a beautiful 2000 square foot lot, and now you're staring at a blank canvas. What do you do next? How do you turn that ope...
Every home tells a story, and the way you arrange those two bedrooms and two bathrooms can shape how you live every day. Whether you're planning a new build,...
When you're thinking about building or buying a home, the 2 bedroom 1 bath house plan stands out as one of the most popular and practical options. It's not j...
When it comes to home design, few layouts capture the essence of practical living quite like the classic 2 bedroom 2 bath floor plan. It's the goldilocks zon...
Whether you're building a new home or renovating an existing one, understanding how to effectively use 2000 square feet can completely change your living exp...
Every family deserves a home that fits their lifestyle perfectly. When it comes to 5-bedroom house plans, there's more than just square footage to consider. ...
When it comes to home design, few layouts capture the sweet spot between functionality and comfort quite like the classic 2 bedroom 2 bath house floor plan. ...