Imagine walking into a home that feels spacious, comfortable, and perfectly suited to your lifestyle - all within just 1800 square feet. It's not magic, but rather thoughtful planning and smart design choices that make it happen.
When you're looking at homes in the 1800 square foot range, you're entering a sweet spot that many find ideal. Not too cramped, not too vast. Just right for families, couples, or solo dwellers who want to feel truly at home. But here's the thing - size alone doesn't guarantee comfort or functionality. The real magic happens when you understand how to work with your space rather than against it. Whether you're buying, renovating, or simply trying to organize your current home, these insights will transform how you think about your living area.

Understanding the Magic Number
Why exactly is 1800 square feet considered such a sweet spot? Think about it like this - it's large enough to include multiple rooms without feeling crowded, yet small enough to keep maintenance manageable. You're getting the best of both worlds. In most American cities, you'll find homes in this category often feature three bedrooms and two bathrooms, with a generous kitchen and living area. This size gives you room to breathe while keeping costs reasonable. The average cost per square foot in many markets makes 1800 sq ft an attractive option for first-time buyers and growing families alike. It's not just about numbers though - it's about creating a space that supports your daily life and dreams.

Key Layout Principles
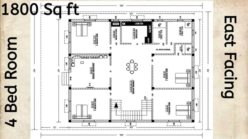
A well-thought-out floor plan starts with understanding basic principles. First, consider traffic flow - how people move through your space. The kitchen should connect smoothly to the dining and living areas. A good rule of thumb is to avoid hallways that are too narrow or dead ends that make navigation difficult. Open-concept layouts work wonderfully in this space because they create a sense of spaciousness. However, don't overlook the power of strategic separation. You might have an open living area but still want privacy in bedrooms. Consider using furniture, lighting, or even a half-wall to define spaces without closing them off completely. Think about the flow between your main living areas and your private spaces like bedrooms. How will you get from one part of your house to another? Will it feel natural or awkward?

Room Placement Strategies
Where you place each room matters more than you might think. The kitchen should ideally be central, allowing easy access from dining, living, and family areas. Bedrooms usually benefit from being located away from high-traffic zones, especially if you value privacy. If you have a master suite, positioning it toward the back or side of the home often works best. Bathrooms should be conveniently located but not too close to sleeping areas. Consider the natural light in your space. Which rooms get the most sun? Place your most used areas there. Think about the views from your windows too. Do you want to see the backyard or the street? Your layout should take advantage of what your location offers. Sometimes, the best floor plan isn't the most traditional one - it's the one that fits your lifestyle.

Maximizing Storage Solutions
Storage is where many 1800 square foot homes struggle, but it doesn't have to be. The key is thinking vertically and creatively. Built-in storage solutions can be beautiful and functional at the same time. Consider adding shelving in hallways, under stairs, or in unused corners. Walk-in closets in bedrooms can dramatically improve organization. Think about multi-purpose furniture too - a bench with storage, a coffee table with hidden compartments, or a dining table that doubles as a work surface. In smaller spaces, every inch counts. A well-designed pantry can save you from constantly running to the grocery store. Even a small linen closet can make a huge difference in keeping your home tidy. The goal isn't just to hide things away, but to make everything easily accessible.

Lighting and Visual Space
Lighting plays a crucial role in how spacious your 1800 square foot home feels. Natural light is your best friend - maximize it wherever possible. Large windows, skylights, or even a glass door can make a dramatic difference. But don't rely solely on natural light. Layered lighting creates depth and interest. Combine ambient lighting (overall room light), task lighting (for specific activities), and accent lighting (to highlight features). Mirrors are incredibly effective in small spaces. They reflect light and create the illusion of more room. Choose light colors for walls and ceilings to make spaces appear larger. Dark colors can make rooms feel cozy but may also make them seem smaller. The interplay between different lighting levels and colors can completely change the mood and perceived size of your space.
Practical Tips for Real Living
Let's talk about what actually happens in real homes. You need to think about how people live in these spaces. Is your family active? Do you entertain often? These factors shape your needs. Consider having a dedicated space for hobbies or crafts - maybe a corner of a bedroom or a small study. If you work from home, you'll want a quiet area separate from your living space. Think about the practical details too - where do you put your car keys, where does your mail go, where do you charge your devices? These everyday decisions affect your daily happiness. A good floor plan anticipates these needs. Don't forget about the bathroom - it's often overlooked but essential for daily routines. And remember, the kitchen is the heart of the home, so make sure it's designed for your cooking style and family habits.
Creating the perfect 1800 square foot home isn't about following rigid rules - it's about understanding your unique lifestyle and designing around it. Every home is different, and every person has different needs. The key is approaching your space with intentionality. Whether you're building from scratch or working with an existing layout, focus on flow, function, and your personal comfort. Remember that good floor planning is an ongoing process. As your needs change over time, your space should be able to adapt. With thoughtful consideration of these principles, your 1800 square feet can become a true sanctuary that supports every aspect of your life. The goal isn't to fit everything in, but to create a space where you feel genuinely happy and comfortable living.