ranch style with walkout basement
Imagine waking up to morning light streaming through large windows, while the gentle sound of rain on your deck fills the air. That's the magic of ranch styl...
Browse home designs in the Ranch style. Find inspiration, floor plans, and design tips for this architectural approach.
171 articles · Page 9 of 15
Imagine waking up to morning light streaming through large windows, while the gentle sound of rain on your deck fills the air. That's the magic of ranch styl...
Picture this: you're standing in your newly designed home, feeling the warmth of every room, the flow of each space. That's exactly what a well-thought-out 3...
Every family deserves a home that works for their lifestyle, and the 4-bedroom ranch house continues to be one of America's most beloved home styles. These s...
Picture this: you're walking out your front door onto a deck that overlooks your backyard, and beyond that, rolling hills stretch toward the horizon. That's ...
Imagine waking up to a beautiful view of your backyard while enjoying the comfort of a fully finished basement. That's exactly what ranch style homes with wa...
When you think about classic American homes, the ranch style often comes to mind. But what happens when you add an L-shape to that familiar layout? You get s...
There's something deeply satisfying about a well-designed small ranch home with an open floor plan. It's not just about the size – it's about how those walls...
When it comes to creating a comfortable family home, few layouts offer the simplicity and functionality that two bedroom ranch floor plans provide. These tim...
When you think of ranch-style homes, you probably picture a single-story, sprawling structure with a long, low profile. But what happens when you add a basem...
When you think about ranch-style homes, you probably picture sprawling single-level spaces with open-concept living areas. But what if we told you there's an...
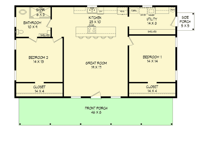
Picture this: a sprawling ranch house with a porch that seems to embrace the entire front of the home. The kind of porch where you can sit with a cup of coff...
There's something deeply comforting about stepping onto a porch that wraps around the entire front of a home. It's not just architecture - it's a way of life...