There's something deeply satisfying about a well-designed ranch house plan. The open floor plans, the seamless flow between rooms, and that classic American appeal that makes every family feel right at home. When you're thinking about a five-bedroom ranch house, you're not just planning a house - you're creating a foundation for memories, laughter, and life's most important moments.
The five-bedroom ranch house has long been a favorite among families across America. These homes offer the perfect balance of space and functionality, providing enough bedrooms for growing families while maintaining that cozy, welcoming atmosphere that defines the ranch style. Whether you're a first-time homebuyer looking for your first family home, or a seasoned homeowner wanting to upgrade, understanding what makes a great five-bedroom ranch house plan is essential. From the strategic placement of bedrooms to the thoughtful arrangement of living spaces, every element matters when designing your ideal home.

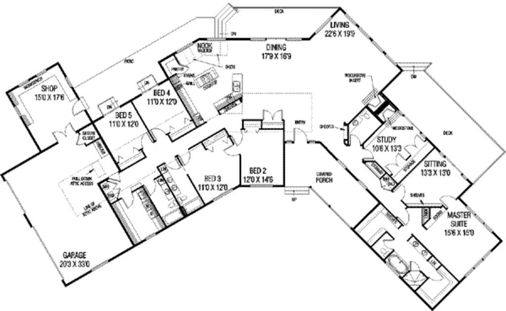
Understanding the Classic Ranch House Layout
Ranch houses have their roots in the mid-20th century, designed to embrace the American lifestyle with their horizontal lines and open design philosophy. The five-bedroom ranch house typically features a single story with a long, low profile that stretches horizontally rather than vertically. This design approach creates a sense of spaciousness and ease of movement throughout the home. The layout usually includes a central living area that connects to dining and kitchen spaces, with bedrooms arranged strategically around this core. Many five-bedroom ranch plans incorporate a front porch or covered entryway, giving the home that welcoming curb appeal that makes people want to step inside. The key to a successful ranch design lies in how well the different zones work together. You'll notice that the main living areas are often positioned to maximize natural light and create a sense of flow. Bedrooms tend to cluster together, sometimes on one side of the house and the main living areas on the other, which helps create quiet spaces for sleeping while keeping the social areas lively and connected.

Key Features That Define Five-Bedroom Ranch Plans
When examining five-bedroom ranch house plans, several defining characteristics stand out. First, there's the open-concept approach to living spaces. These homes typically feature large, airy rooms that blend seamlessly together. The kitchen often flows directly into the dining area and living room, creating a natural gathering place for family activities. Another crucial element is the strategic placement of bedrooms. In most five-bedroom ranch designs, you'll find three bedrooms on one side of the house and two on the other, or sometimes a master suite with its own private bathroom on the opposite side of the main living areas. Many plans also include a study or office space that can serve multiple purposes. Some ranch layouts feature a formal dining room, while others opt for a casual breakfast area that opens into the kitchen. The bathroom configuration is another area where five-bedroom ranch plans show creativity. You might see a master bath with a separate shower and bathtub, while secondary bathrooms could be smaller but still functional. Storage solutions are also thoughtfully integrated into these designs, often featuring walk-in closets, linen storage, and pantry spaces that don't compromise the open feeling of the home.

Popular Floor Plan Configurations
Five-bedroom ranch house plans come in various configurations, each offering unique advantages. The traditional layout places the master bedroom at one end of the house, with the remaining four bedrooms arranged along the opposite side. This setup provides privacy for the primary suite while keeping the other bedrooms easily accessible from the main living areas. Another popular arrangement puts two bedrooms on each side of the house, creating a balanced design with the main living spaces in the center. Some plans feature a split-bedroom design, where the master suite is separated from the other bedrooms, which can be especially appealing for couples who prefer different sleeping arrangements. The kitchen placement varies significantly across different plans. Some designs position the kitchen near the front of the house, making it easy for guests to access when entertaining. Others place it toward the back, allowing for a more secluded cooking experience. A common variation includes a breakfast nook that connects the kitchen to the living area, creating a natural transition between the more active and quiet zones of the home. The garage placement also differs, with some plans featuring a single-car garage attached to the house, while others provide space for two cars or even a separate garage with a workshop area.

Space Optimization and Functional Design
One of the biggest challenges in five-bedroom ranch house plans is maximizing space efficiency without sacrificing comfort. Smart designers tackle this issue by carefully considering how each room will be used. For example, a study or den might double as a guest room, providing flexibility for visitors or family members who need temporary accommodation. The hallways in these homes are often designed to be wide enough to accommodate furniture moving, making it easier to rearrange spaces as needs change over time. Many modern ranch plans incorporate multi-functional rooms that can adapt to changing family needs. A family room might serve as a play area for young children during the day and transform into a quiet reading space in the evening. The kitchen design often includes island configurations that can serve as additional seating, prep space, and even a casual dining area. Storage solutions are carefully planned throughout the home, with built-in cabinets and shelving that don't interrupt the visual flow of the rooms. Some innovative designs include a mudroom or entryway that handles coats, shoes, and bags while keeping the main living areas clean and uncluttered.

Considerations for Modern Living
Today's five-bedroom ranch house plans must account for modern lifestyle needs. Technology integration has become essential, with many plans incorporating smart home features and designated spaces for electronics. The concept of home offices has gained importance, and many ranch layouts now include dedicated workspaces that can be easily converted if needed. Energy efficiency is another major consideration, with modern designs focusing on proper insulation, efficient heating and cooling systems, and sustainable building materials. Outdoor living spaces have become increasingly important, and some ranch plans include covered porches, decks, or patios that extend the living area outdoors. Security features like smart locks, security cameras, and well-lit entryways are now standard considerations in many designs. The importance of natural light cannot be overstated, with many contemporary ranch plans featuring large windows, skylights, and strategically placed doors that let in abundant sunshine. Family rooms and entertainment areas are often designed with flexible layouts that can accommodate both quiet family time and larger gatherings.
Cost Considerations and Budget Planning
Building or buying a five-bedroom ranch house involves several financial factors that deserve careful attention. The size of the home directly impacts costs, with larger floor plans requiring more materials and labor. Foundation types also affect pricing, with slab foundations being less expensive than basement or crawl space options. The choice of materials plays a significant role in overall costs, from basic finishes to premium fixtures and appliances. Labor costs vary by region, with some areas seeing higher construction expenses due to local market conditions. Financing options differ depending on whether you're building from scratch or purchasing an existing home. Many buyers find that working with a builder who offers customizable plans can help control costs while still achieving desired features. Energy-efficient features, while potentially increasing upfront costs, often result in lower utility bills over time. Maintenance considerations should factor into budget planning, as certain materials and designs require more upkeep than others. Some homeowners choose to add features like solar panels or energy-efficient appliances, which can increase initial investment but improve long-term value and comfort.
Design Trends and Future Considerations
Current trends in five-bedroom ranch house plans reflect changing lifestyles and preferences. Open-concept living continues to dominate, with fewer interior walls and more flowing spaces between rooms. Sustainability and eco-friendly features are becoming standard, including rainwater collection systems, solar panels, and energy-efficient appliances. Smart home technology integration is no longer optional but expected in new construction. The trend toward multifunctional spaces means rooms can serve multiple purposes, adapting to different family needs over time. Outdoor living spaces have evolved from simple patios to full entertainment areas with kitchens, fire pits, and comfortable seating arrangements. Natural materials like stone, wood, and bamboo are increasingly popular for their warmth and durability. Flexibility remains key, with many modern plans designed to accommodate future changes in family structure or lifestyle preferences. The emphasis on wellness and mental health has influenced design choices, with features like indoor gardens, natural lighting, and quiet retreat spaces becoming more common in residential designs.
A five-bedroom ranch house plan represents more than just architectural blueprints - it's a blueprint for family life. Whether you're designing a new home or renovating an existing space, understanding the fundamentals of these layouts helps ensure your investment serves your family's needs today and tomorrow. The beauty of ranch house design lies in its ability to combine comfort with functionality, creating spaces that welcome both daily routines and special moments. From the strategic placement of bedrooms to the thoughtful integration of modern amenities, every aspect of a five-bedroom ranch plan contributes to the overall experience of home. The key is finding a design that balances your current lifestyle with potential future changes, ensuring your home grows with you rather than constraining you. With thoughtful planning and quality execution, a five-bedroom ranch house can truly become the heart of your family's happiness and success.