There's something deeply satisfying about a well-designed ranch house plan. It's not just about having four bedrooms and a living space - it's about creating a home that feels like a comfortable extension of your life. Whether you're planning to build or simply curious about the possibilities, understanding the nuances of 4 bedroom ranch house layouts can transform how you think about your living space.
When it comes to home design, few layouts have stood the test of time quite like the classic 4 bedroom ranch house plan. These homes have been the backbone of American suburban life for decades, offering families a perfect balance of functionality and comfort. What makes them so enduring? It's simple really - they work with the way people actually live, not against it. Think about it: you want a home where your family can move freely between spaces, where the kitchen flows into the dining area, and where each bedroom offers privacy without feeling isolated. That's exactly what a good ranch house plan delivers. The beauty lies in its straightforward approach to space utilization, making it ideal for both first-time homeowners and those looking to upgrade their living situation.

Understanding the Classic Ranch House Layout
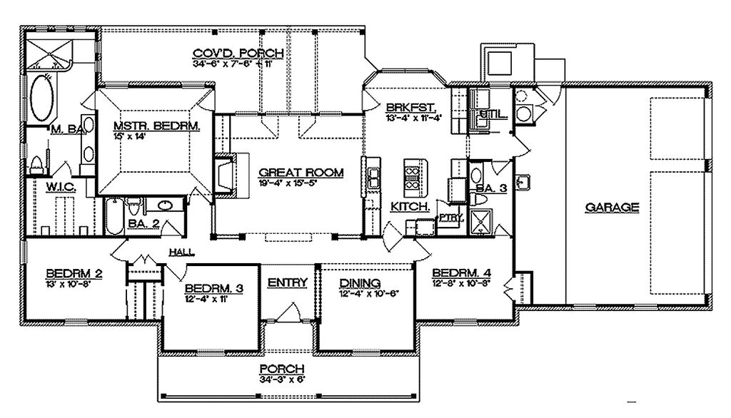
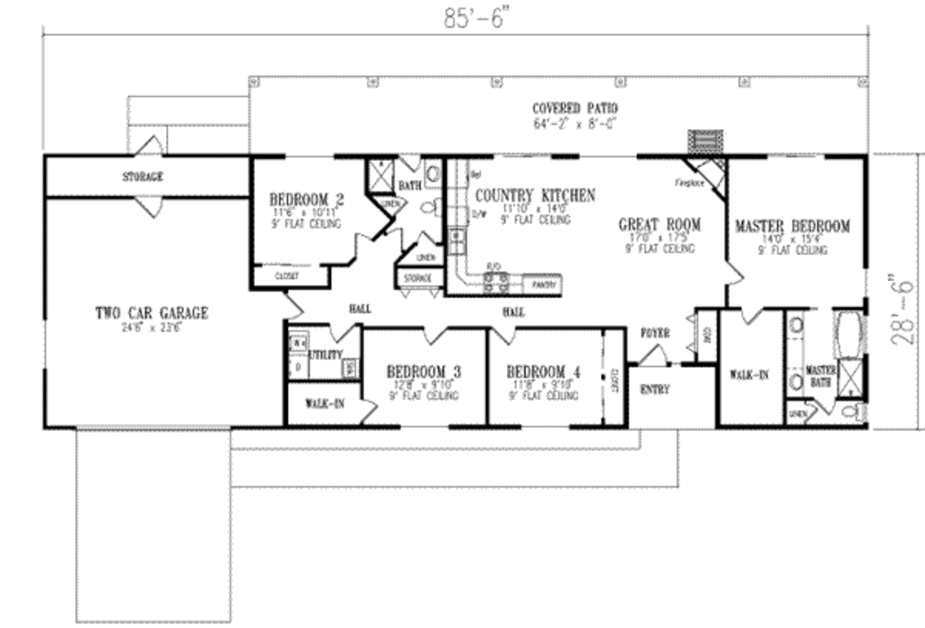
The traditional 4 bedroom ranch house plan typically features a single-story design with rooms arranged in a linear fashion. This means you'll usually find the main living areas at one end, while the bedrooms and bathrooms are positioned along the opposite side. The key to a successful ranch design is maintaining an open flow between spaces. Imagine walking from your kitchen into your family room, then out to your backyard without having to navigate through narrow hallways. This openness creates a sense of spaciousness even in smaller homes. Many ranch designs incorporate a central hallway that connects all rooms, but it's often kept narrow enough to preserve the feeling of openness. The master suite is typically placed at the far end of the house, providing privacy from the rest of the family's activities. This arrangement works particularly well for families with children, as it allows parents to keep an eye on kids while still enjoying their own private space.

Popular Floor Plan Variations
Not every ranch house looks the same, and that's part of what makes them so versatile. One common variation is the split-level design, where the house has two distinct levels connected by a short staircase. This layout can be especially useful if you want to separate the main living areas from the sleeping quarters. Another popular option is the open-concept ranch, where walls are removed to create a seamless flow between the kitchen, dining, and living areas. This style works wonderfully for entertaining and makes the space feel larger than it actually is. Some designs feature a large front porch or covered entryway that adds character and provides a transition space between the outside world and your home interior. The size of the garage can vary significantly, from a single-car space to a double garage with extra storage. Many modern ranch plans also include a bonus room or study that can serve multiple purposes depending on your needs.

Key Considerations for Family Living
When designing a 4 bedroom ranch house plan, families often prioritize certain features that enhance daily life. The placement of bedrooms is crucial - most families prefer to have at least one bedroom on the opposite side of the house from the main living areas. This helps minimize noise transfer between family members and provides better privacy for everyone. Having a dedicated study or office space is increasingly important, especially with remote work becoming more common. The kitchen should be designed with the family's cooking habits in mind, whether that means a large island for meal prep or a breakfast nook for casual family meals. Consider how much natural light you want in each room, and plan accordingly. Some families love the idea of a sunken living room that creates a cozy atmosphere, while others prefer high ceilings that make the space feel airy and expansive. Don't forget about outdoor spaces - many ranch house plans include patios, decks, or porches that extend the living area outdoors during pleasant weather.

Practical Design Elements to Include
Every great ranch house plan includes thoughtful details that improve everyday living. Storage solutions are essential, and the best designs integrate these seamlessly into the overall aesthetic. Walk-in closets in bedrooms, pantry spaces in kitchens, and mudrooms near entrances are all practical additions that add significant value to your home. Consider including a half-bath near the entrance for guests, and make sure there's adequate lighting throughout the house. Natural materials like wood and stone can create warmth and texture that make a house feel lived-in rather than sterile. The bathroom layout deserves special attention too. A master bath with a separate shower and bathtub gives you flexibility for different morning routines, while secondary bathrooms can be designed for efficiency with minimal fixtures. Some modern ranch plans include smart home features like programmable thermostats, security systems, and lighting controls that make managing your home easier.

Cost Considerations and Budget Planning
Building or buying a 4 bedroom ranch house plan involves several financial factors to consider. The size of your lot will impact costs significantly, as larger lots may require additional grading and utility connections. Foundation types also affect pricing - concrete slab foundations are generally less expensive than basement options, though basements offer additional usable space. The choice between standard and custom features can dramatically change your budget. Standard layouts with basic finishes are typically more affordable, while custom touches like built-in cabinetry, premium flooring, or specialty windows can increase costs substantially. Don't overlook ongoing maintenance expenses either. Some ranch house styles require more upkeep than others, particularly those with extensive exterior woodwork or complex rooflines. Consider the long-term value of your investment as well - a well-designed ranch house often holds its value well in the real estate market because of its timeless appeal. Energy efficiency features can reduce utility bills over time, making them a smart investment.
Modern Trends in Ranch House Design
Today's ranch house plans reflect changing lifestyles and preferences while maintaining the core elements that make them appealing. Open floor plans have become increasingly popular, allowing families to gather in one large space while still having defined areas for different activities. Many modern ranch houses incorporate sustainable building practices, from energy-efficient appliances to eco-friendly materials. Smart home technology integration is now common, with features like automated lighting, climate control, and security systems becoming standard in new construction. Outdoor living spaces have gained prominence, with designers creating seamless transitions between indoor and outdoor areas. The concept of 'work-from-home' has influenced layouts, with dedicated home offices and flexible spaces that can adapt to changing needs. Many ranch house plans now include features like solar panels, electric vehicle charging stations, and rainwater harvesting systems that appeal to environmentally conscious buyers.
A 4 bedroom ranch house plan represents more than just a collection of rooms - it's a carefully crafted solution for modern family life. These designs have endured because they address fundamental human needs: privacy, connection, and ease of movement. Whether you're planning to build a new home or renovating an existing space, understanding the principles behind effective ranch house layouts can help you create a place that truly feels like home. The key is to think about how you actually live, not just how you might want to live. Every doorway, every window, and every room should support your lifestyle. With thoughtful planning and attention to detail, a 4 bedroom ranch house plan can become the foundation for countless happy memories and a home that stands the test of time. The beauty of these designs is that they're both practical and beautiful, offering the perfect blend of form and function that makes them such a beloved choice for families across America.