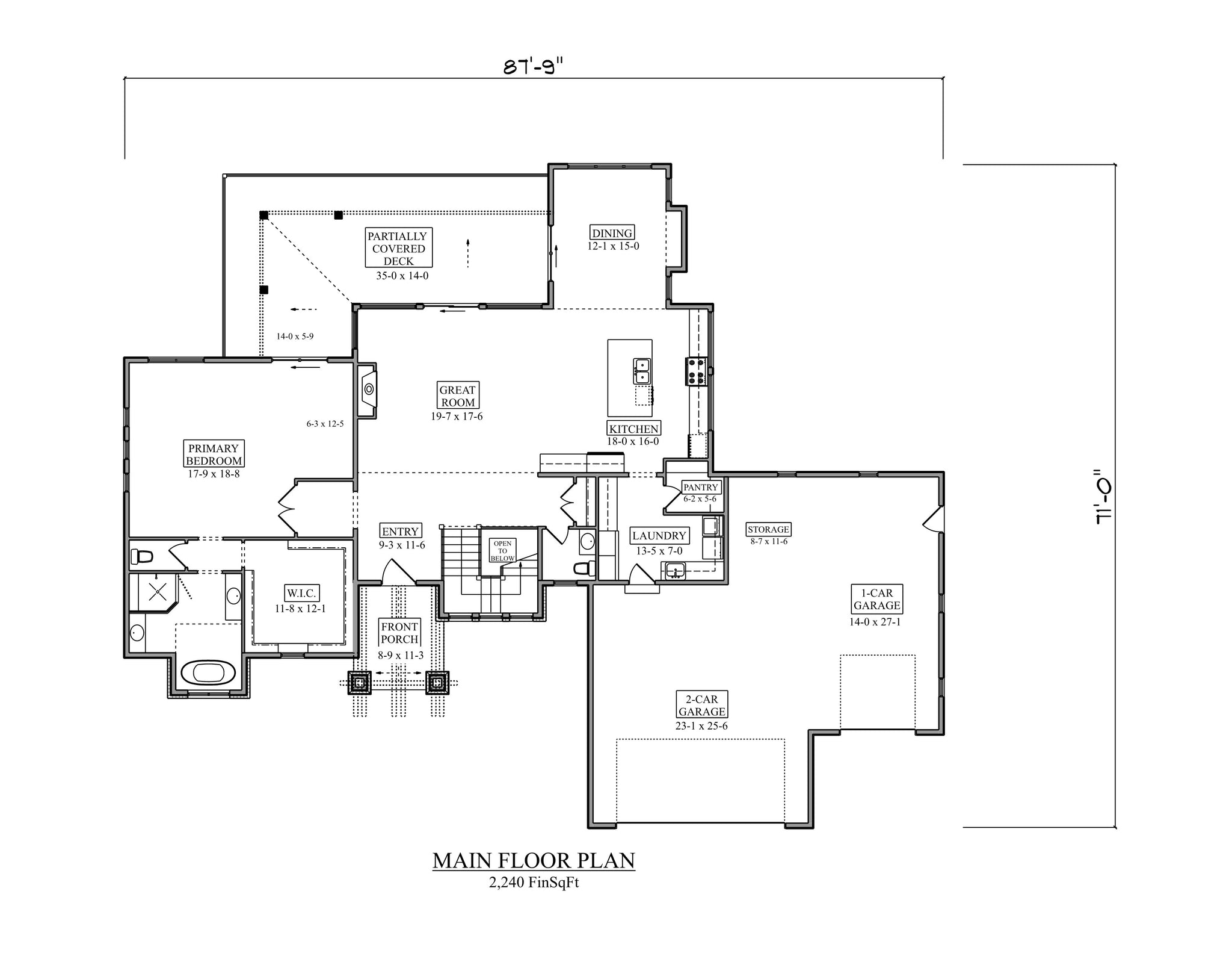
When you think about ranch houses, you probably picture a single-story home with a long, low profile. But what if we told you there's a way to add extra living space while keeping that classic ranch charm? Enter the walkout basement. This design feature transforms ordinary ranch homes into extraordinary living spaces that blend functionality with aesthetic appeal.
Ranch houses have been a staple of American architecture for decades, offering families spacious, open floor plans and easy accessibility. But what happens when you want to maximize your living area without adding another story to your home? That's where walkout basements come into play. These clever architectural features allow homeowners to extend their living space downward, creating additional rooms that feel like they're part of the main house. Whether you're planning a new build or looking to renovate an existing ranch, understanding how walkout basements work can transform your entire approach to home design.
What Are Walkout Basements?

Walkout basements are essentially lower-level rooms that open directly to the outside ground level. Unlike traditional basements that require going down stairs to reach them, walkout basements provide direct access from the main living areas to the lower level. This means you can walk right out of your family room or kitchen onto a patio, deck, or even a garden. The term 'walkout' refers to the ability to walk directly out of the basement area without having to go upstairs first. This design feature creates a seamless flow between indoor and outdoor living spaces, making it ideal for entertaining, relaxing, or simply enjoying nature.
Benefits of Walkout Basements in Ranch Homes
There are several compelling reasons why walkout basements are becoming increasingly popular in ranch house designs:

Think about it – you're getting all the benefits of additional space without the cost and complexity of building a second story. It's like having a secret garden right under your feet.
Design Considerations for Ranch Houses
When designing a ranch house with a walkout basement, several factors come into play:

The key is ensuring that the basement design flows naturally with the rest of the house. If you've got a traditional ranch with wide eaves and a low profile, the basement entrance should reflect those same proportions and materials.
Popular Layout Options
Walkout basements offer various layout possibilities that can suit different family needs:

Many ranch house plans feature a central living area that extends into the walkout basement, creating a unified flow. For example, a family room might open directly into a basement recreation area, making it feel like one continuous space rather than two separate levels.
Building Challenges and Solutions
While walkout basements offer many advantages, they do present some challenges:

However, these challenges can be overcome with proper planning. Professional architects and contractors who specialize in walkout basement construction can help navigate these complexities. The investment often pays off in increased comfort and property value.
Maintenance and Longevity
Walkout basements require some additional care compared to traditional basements:
Proper maintenance ensures that your walkout basement remains functional and attractive for decades. Many homeowners find that the extra effort pays dividends in terms of usable space and property enjoyment.
Ranch house plans with walkout basements represent a smart solution for homeowners who want to maximize their living space while maintaining the classic appeal of traditional ranch architecture. These innovative designs offer practical benefits like extra rooms, better natural lighting, and seamless indoor-outdoor living. While they do require careful planning and potentially higher upfront costs, the long-term advantages often make them well worth the investment. Whether you're building a new home or renovating an existing one, considering a walkout basement can transform your ranch house into a truly versatile and valuable living space. The key is finding the right balance between functionality, aesthetics, and budget. After all, your home should feel like a comfortable extension of your lifestyle, not just a place to live.