Imagine walking into a home where walls disappear, where laughter echoes through expansive rooms, and where family and friends naturally gather. That's the magic of ranch house open floor plans. These layouts have become the heart of modern residential design, offering both functionality and aesthetic appeal that speaks to how we actually live today.
The ranch house open floor plan isn't just a design trend—it's a lifestyle choice that's reshaped how we think about domestic spaces. Originally popularized in the mid-20th century, these layouts have evolved far beyond their humble beginnings. Today's open floor plans blend the comfort of traditional ranch homes with contemporary needs for flexibility and connectivity. Whether you're planning a new build or renovating an existing space, understanding the nuances of open floor planning can transform your home into a true hub of activity and connection.
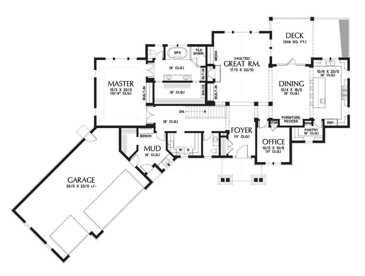
What Makes a Ranch House Open Floor Plan Unique

Ranch houses with open floor plans are defined by their horizontal layout and seamless flow between living areas. Unlike traditional homes that compartmentalize each room, these designs merge kitchen, dining, and living spaces into one continuous area. This approach creates a sense of spaciousness that's particularly appealing in homes where square footage might be limited. The key element? Removing unnecessary walls to let light flow freely and create visual connections between different functional zones.
Benefits of Open Floor Planning in Ranch Homes
Open floor plans offer several advantages that make them incredibly attractive to homeowners:

These benefits become even more pronounced when combined with the classic ranch house features like low-pitched roofs and large windows.
Design Considerations for Successful Implementation
Not every ranch house can easily accommodate an open floor plan. Several factors determine whether your space will work well with this approach:

Working with a designer who understands both traditional ranch aesthetics and modern open plan principles is often essential for success.
Common Challenges and Solutions
While open floor plans offer many advantages, they also present unique challenges:

Many homeowners overcome these hurdles by using strategic furniture placement, built-in storage solutions, and thoughtful lighting design to define areas while maintaining the open feel.
Practical Tips for Creating Your Own Open Plan
If you're considering an open floor plan for your ranch house, here are some actionable steps:

Remember that sometimes small changes like removing a half-wall or adjusting cabinet layouts can create the open feeling you desire without major construction.
Modern Trends in Ranch House Open Plans
Contemporary ranch house open floor plans are evolving with new trends that reflect modern lifestyles:
These innovations show how traditional ranch house concepts continue to adapt to modern living requirements while maintaining their core appeal.
The ranch house open floor plan represents more than just architectural style—it embodies a philosophy of living that values connection, flexibility, and comfort. Whether you're building a new home or updating an existing one, understanding how to properly implement open floor planning can dramatically improve your daily experience. The key lies in balancing the freedom and flow that open spaces provide with the practical considerations of everyday life. As we've seen, successful implementation requires thoughtful planning, attention to detail, and respect for both traditional ranch house elements and contemporary needs. The result? A home that truly serves its inhabitants while reflecting the way modern families actually live and grow together.