Picture this: a sprawling ranch home where each family member gets their own private sanctuary. That's exactly what two master suites can offer. These spacious layouts aren't just about luxury – they're about creating personalized spaces within one beautiful home. Whether you're planning a new build or renovating, understanding how to properly incorporate dual master suites into a ranch design can transform your living experience.
Ranch homes have always been popular for their open, comfortable feel and efficient use of space. When you add two master suites to this classic design, you're essentially creating a personal retreat within your own house. This isn't just about having more bedrooms – it's about maximizing comfort and privacy for every family member. Think about it: parents who want their own space, teenagers who crave independence, or even aging family members who need accessible living areas. The right floor plan makes all of this possible without sacrificing the cozy ranch aesthetic that many homeowners love.
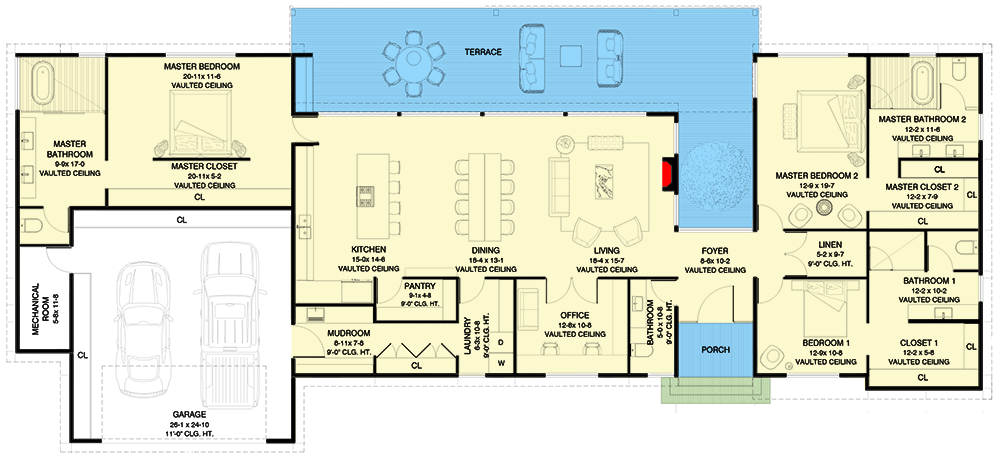
Understanding Ranch Home Layouts

Ranch homes typically feature a single-story design with a long, low profile that stretches horizontally rather than vertically. This horizontal orientation naturally lends itself well to incorporating multiple master suites because you can create distinct zones within the same floor plan. The key is to think about how you want to separate these spaces while maintaining the open, welcoming feeling that defines ranch style.
The traditional ranch layout often includes a central living area, kitchen, and dining space that flows together seamlessly. When adding two master suites, you'll want to consider how these bedrooms will fit into that flow. Will they be on opposite sides of the house? Do you want them separated by a common hallway? These decisions impact not just privacy but also the overall energy and atmosphere of your home.
Key Design Considerations

When designing a ranch with two master suites, several factors become crucial:
Consider this scenario: One master suite might face the backyard garden while another looks out toward a lake or mountain view. The positioning affects not just daily routines but also the mood and character of each bedroom.
Room Arrangement Options

There are several ways to arrange two master suites in a ranch floor plan:
The split layout works well when you want maximum separation between the two primary sleeping areas. This setup ensures that one family member's activities won't disturb the other's rest. On the flip side, parallel arrangement can save on construction costs and provide easy access to shared amenities like a large bathroom or walk-in closets.
Practical Benefits of Dual Master Suites

Having two master suites offers numerous advantages beyond just extra bedrooms:
Imagine a situation where your teenage child needs quiet study time while you're trying to relax in the evening. With separate master suites, you both have the space to focus without disturbing each other. Or perhaps one family member prefers morning exercise while another needs late-night work sessions – dual suites allow for this kind of lifestyle accommodation.
Common Challenges and Solutions

While dual master suites offer great benefits, they do present some challenges:
One solution many designers use is incorporating a central hallway or entryway that helps divide the spaces while still allowing for open communication. Some builders also add secondary bathrooms or study areas to balance the overall footprint.
Real-World Examples and Inspiration
Let's look at a few practical examples of successful dual master suite ranch designs:
These examples show how the basic ranch structure can be adapted to meet various lifestyle preferences while maintaining that familiar, welcoming feel. The key is balancing modern functionality with timeless design elements.
Ranch floor plans with two master suites represent more than just architectural choices – they're lifestyle decisions that reflect how families want to live today. Whether you're building a new home or remodeling an existing one, thoughtful consideration of how these spaces interact can make all the difference in creating a truly comfortable living environment. The beauty of this design approach lies in its adaptability: it can work whether you're a young family, a growing household, or simply someone who values both privacy and connection. The right floor plan allows everyone in the family to enjoy their own special corner of the house while still being part of the bigger family story. After all, what's better than having your own personal retreat within your own home?