There's something deeply satisfying about a well-designed ranch home. These single-story dwellings offer simplicity, functionality, and that classic American charm that keeps homeowners coming back for more. When you narrow it down to just two bedrooms, the possibilities become even more focused and practical. Whether you're planning a new build or remodeling an existing space, understanding what makes a great 2 bedroom ranch plan is crucial.
Ranch homes have been a staple of American residential architecture since the mid-20th century. Their low-profile design, open floor plans, and connection to the outdoors make them incredibly appealing to families and individuals alike. The 2 bedroom ranch style represents the sweet spot between spaciousness and manageability. It's big enough to feel comfortable, but small enough to be easy to maintain. These homes often feature long, horizontal lines that hug the landscape, creating a sense of calm and stability. What makes them particularly special is how they balance form and function in ways that feel both timeless and modern.
Understanding the Basics of Ranch Style Design
The ranch style emerged in the 1930s and gained popularity in the 1950s and 60s. These homes typically feature a single story with a low-pitched roof, wide eaves, and large windows that let in natural light. The design philosophy centers around creating a seamless flow between indoor and outdoor spaces. In a 2 bedroom ranch, you'll usually find a central living area that connects the kitchen, dining, and family room. This open concept creates a warm atmosphere where families can gather and interact easily.
The hallmark of ranch homes is their horizontal emphasis. Unlike traditional homes that draw your eye upward, ranch designs keep things flat and expansive. This approach works especially well in areas with lots of land or where you want to maximize views. The layout often includes a front porch or deck that extends the living space outside. Many ranch homes also feature a garage that's integrated into the main structure rather than separate, giving the whole building a unified look.

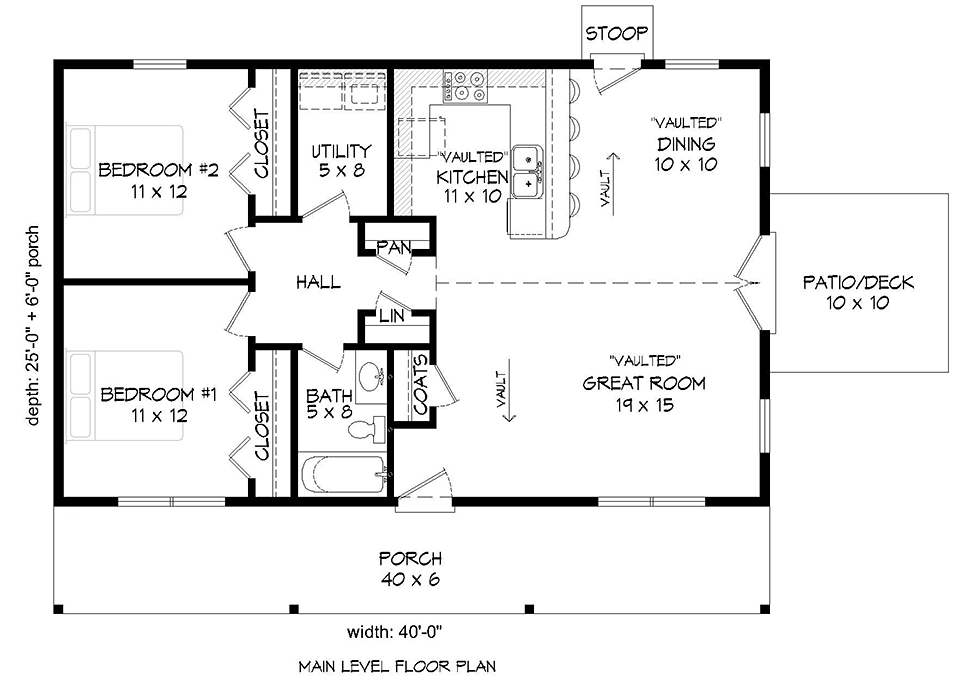
Key Layout Considerations for 2 Bedroom Ranch Homes
When designing a 2 bedroom ranch, several factors come into play. First, consider the placement of bedrooms. In most cases, one bedroom is positioned near the front of the house while the other sits toward the back. This arrangement allows for privacy while keeping the main living areas accessible. The master bedroom often gets the best view or location.
Kitchen placement matters too. Many 2 bedroom ranches place the kitchen in the center or along the back wall, creating a natural flow to the dining and living areas. Some designs put the kitchen near the entrance for convenience when bringing in groceries or guests. The dining area might be open to the kitchen or separated by a breakfast bar or small alcove.
Consider how you'll use each space. Do you need a dedicated office? Perhaps a sunroom or mudroom? These functional needs will influence how you arrange the rooms within your 2 bedroom ranch plan.
Popular Room Arrangements and Floor Plan Options

There are several common layouts for 2 bedroom ranch homes. The most traditional approach places the bedrooms on opposite sides of the house. One bedroom faces the street while the other looks toward the backyard. This setup offers good privacy for both occupants and creates distinct zones within the home.
Another popular option positions the master bedroom at the rear of the house with the second bedroom closer to the front. This can work well if you want to keep the main living areas in the front while having a quieter space at the back. The master bedroom often includes a walk-in closet or private bathroom in this arrangement.
Some 2 bedroom ranches feature a split-bedroom design where the bedrooms are separated from the main living areas. This type of layout is great for couples who prefer different sleeping arrangements or need quiet spaces. The kitchen and living areas remain in the center, providing a social hub for the family.
A variation involves placing the bedrooms side-by-side with a shared bathroom. This works especially well in smaller ranch homes or when you're working with limited square footage. The shared bathroom can include a double vanity and separate shower/tub combination.
Space Optimization and Functional Design Tips

Maximizing every inch in a 2 bedroom ranch requires smart planning and creative solutions. Start by thinking about storage needs. Built-in cabinets, under-stair storage, and hidden compartments can provide extra space without cluttering the visual appeal. Many ranch homes incorporate a pantry or walk-in closet in the hallway or bedroom areas.
Consider multi-functional furniture. A dining table that folds away during the day, a sofa bed that doubles as guest seating, or a bench with storage underneath can make a big difference in small spaces. These items serve multiple purposes and keep the home feeling open and uncluttered.
Natural lighting plays a huge role in making a 2 bedroom ranch feel spacious. Large windows, skylights, and glass doors allow sunlight to flow through the interior. This not only brightens the space but also makes it feel larger and more connected to the outdoors.
Don't overlook the importance of vertical space. Tall ceilings, high shelves, and vertical garden walls can draw the eye upward and make the room appear taller and more airy. This is especially important in ranch homes where the horizontal lines already dominate the visual field.
Modern Trends in 2 Bedroom Ranch Design

While ranch homes have a classic look, modern designers are finding new ways to update these timeless designs. Open-concept living spaces continue to be popular, with kitchens that blend seamlessly into living areas. The idea of a 'great room' where everything flows together has become standard in many new ranch builds.
Smart home technology integration is another trend. Home automation systems can control lighting, temperature, security, and entertainment all from one central device. These features fit perfectly into the ranch aesthetic because they're unobtrusive and enhance daily life.
Sustainability is increasingly important in home design. Many 2 bedroom ranch owners are incorporating energy-efficient appliances, solar panels, and water-saving fixtures. These upgrades not only reduce costs but also align with environmental values.
Outdoor living spaces have become essential elements of modern ranch homes. Patios, decks, and covered porches are now considered must-haves rather than extras. These areas extend the living space beyond the walls and create opportunities for entertaining and relaxation.
Practical Benefits and Considerations

The 2 bedroom ranch style offers numerous practical advantages. For starters, single-story homes are much easier to navigate for people of all ages, including elderly residents or those with mobility issues. There are no stairs to climb, which means more freedom of movement throughout the home.
Maintenance is generally simpler with ranch homes. With fewer levels to clean and maintain, routine tasks take less time and effort. The open floor plan also means fewer walls to repair or repaint over time.
Energy efficiency tends to be better in ranch homes due to their lower profile and more uniform shape. Heat rises, so a single-level design helps distribute warmth more evenly throughout the space.
These homes also tend to be more affordable to build or buy compared to multi-story alternatives. The construction process is often faster and less complex, which can save money and time. The straightforward layout also makes it easier to sell later if needed.
However, there are some considerations. Ranch homes may require more land to accommodate their horizontal footprint. If you live in a densely populated area, this could be a limitation. Also, the open nature of the design might not suit everyone's privacy needs, especially in urban settings.
A 2 bedroom ranch style house plan represents more than just architectural choices – it embodies a lifestyle preference for simplicity, comfort, and connection to the environment. Whether you're building your dream home or renovating an existing space, understanding these fundamental principles helps create a living environment that truly works for you. The beauty of ranch design lies in its adaptability. You can personalize the layout to match your family's needs while maintaining the core elements that make these homes so appealing. From the way light enters through large windows to the seamless flow between indoor and outdoor spaces, every aspect of a well-designed 2 bedroom ranch contributes to a sense of peace and practicality. As you explore your options, remember that the best plan isn't necessarily the most expensive one – it's the one that fits your life, your budget, and your vision for how you want to live. The key is finding that perfect balance between classic charm and modern functionality.