Imagine walking into your home and feeling completely at ease. Picture a space that's just right - not too big, not too small, but perfectly suited to your lifestyle. That's exactly what a well-designed 1500 square foot ranch house plan can offer. These homes have become incredibly popular because they strike that sweet spot between functionality and comfort. They're practical, efficient, and often surprisingly spacious. Whether you're planning your first home or looking to upgrade, understanding what makes these plans work is crucial.
Ranch houses have been around for decades, and their appeal remains strong today. The 1500 square foot range has emerged as one of the most sought-after sizes for families and individuals alike. This size offers enough room for all your needs while staying manageable in terms of maintenance and cost. Think about it - you get a full kitchen, two or three bedrooms, a living area, and often a bonus room or office space. It's like having a cozy, intimate home without the overwhelming size that comes with larger properties. What makes these plans particularly attractive is how they maximize every inch of space. They're designed to feel open and airy even within their modest footprint.

Understanding the Classic Ranch Layout
The traditional ranch house layout has a distinctive look that's both timeless and practical. These homes typically feature a single story with a low-pitched roof and wide eaves that provide shade. The design emphasizes horizontal lines, creating a sense of openness that works wonderfully in smaller spaces. You'll often see large windows that let in natural light and offer beautiful views of the surrounding landscape. The floor plan usually flows from the front of the house to the back, with the main living areas centered around a central hallway or open concept area. This setup allows for easy movement and creates a welcoming atmosphere. Many of these designs include a covered porch or deck that extends the living space outdoors.

Key Features That Define 1500 Square Foot Homes
What really sets apart a good 1500 square foot ranch plan? Let's break it down:

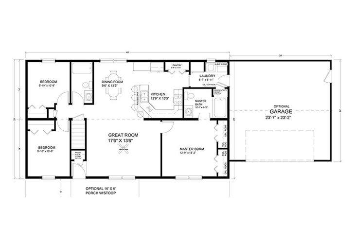
Popular Room Arrangements and Configurations
There are several common ways designers arrange the rooms in 1500 square foot ranch homes. Some plans feature a traditional layout with the master suite separated from the guest bedrooms. Others might have a more modern approach, combining living spaces with a separate work area or hobby room. The kitchen often sits at the heart of the home, sometimes with an island that serves as both prep space and casual dining. In many cases, the garage is attached and positioned to allow for easy access to the main living areas. The bathroom layout varies, but most include a main bathroom with shower and toilet, plus a secondary bath for guests or children.

Budget Considerations and Cost Factors
When planning a 1500 square foot ranch house, budget plays a huge role in determining what's possible. Generally speaking, building costs range from $150 to $300 per square foot depending on location, materials, and finishes. For a 1500 sq ft home, that could mean anywhere from $225,000 to $450,000. The biggest expenses usually come from the foundation, framing, and roofing. Interior finishes and fixtures can significantly impact the final cost. Keep in mind that some features might seem expensive upfront but add long-term value. For example, energy-efficient windows and insulation might cost more initially but save money on utility bills over time. It's worth noting that regional differences matter greatly - costs in rural areas will be different than urban settings.

Design Trends and Modern Updates
Modern ranch house plans have evolved considerably from their classic predecessors. Today's designs incorporate lots of natural materials like wood and stone, along with clean lines and minimalist aesthetics. Open-concept kitchens with high-end appliances are now standard features rather than luxury items. Smart home technology integration has become increasingly important, especially for families with tech-savvy members. Sustainable building practices are also gaining popularity, including solar panels, rainwater harvesting systems, and eco-friendly materials. Many new ranch plans include features like mudrooms, laundry rooms with extra storage, and flexible spaces that can adapt to changing family needs. The trend toward indoor-outdoor living continues to influence these designs, with large sliding doors and covered outdoor areas becoming common.
Practical Tips for Choosing Your Plan
Selecting the right 1500 square foot ranch house plan requires thinking about your actual needs and lifestyle. Here are some key considerations:
A 1500 square foot ranch house plan represents more than just a set of blueprints - it's a carefully considered solution to modern living needs. These homes offer the perfect balance of comfort, functionality, and affordability that appeals to countless homeowners. Whether you're drawn to the classic charm of traditional designs or the sleek modern updates, there's a 1500 sq ft ranch plan out there that fits your vision. The key is understanding what makes these homes special and choosing the elements that align with your lifestyle. Remember, the best plan isn't necessarily the most expensive one - it's the one that works for your life, your family, and your future. Take your time with the selection process, think about your priorities, and consider how each room will function in your daily routine. After all, your home should feel like a true sanctuary where you can relax, entertain, and build memories. The 1500 square foot ranch house plan gives you that opportunity, and with careful planning, you can create something truly special.