There's something deeply satisfying about a well-designed ranch house. The open, sprawling feel of a single-story home creates a sense of comfort and ease that many families crave. When it comes to four-bedroom ranch homes, the floor plan becomes the foundation of how your family will live together every day. It's not just about square footage—it's about creating spaces that work for your lifestyle.
A 4 bedroom ranch house floor plan isn't just a blueprint—it's a roadmap to daily life. These homes offer the perfect balance between spaciousness and manageability, with all bedrooms on one level and easy access to outdoor spaces. Whether you're planning a new build or renovating an existing home, understanding how to arrange these spaces effectively can transform your living experience. Think about how you move through your home, where you want privacy, and how you'd like to entertain guests. The right floor plan makes all the difference in creating a home that feels both functional and welcoming.

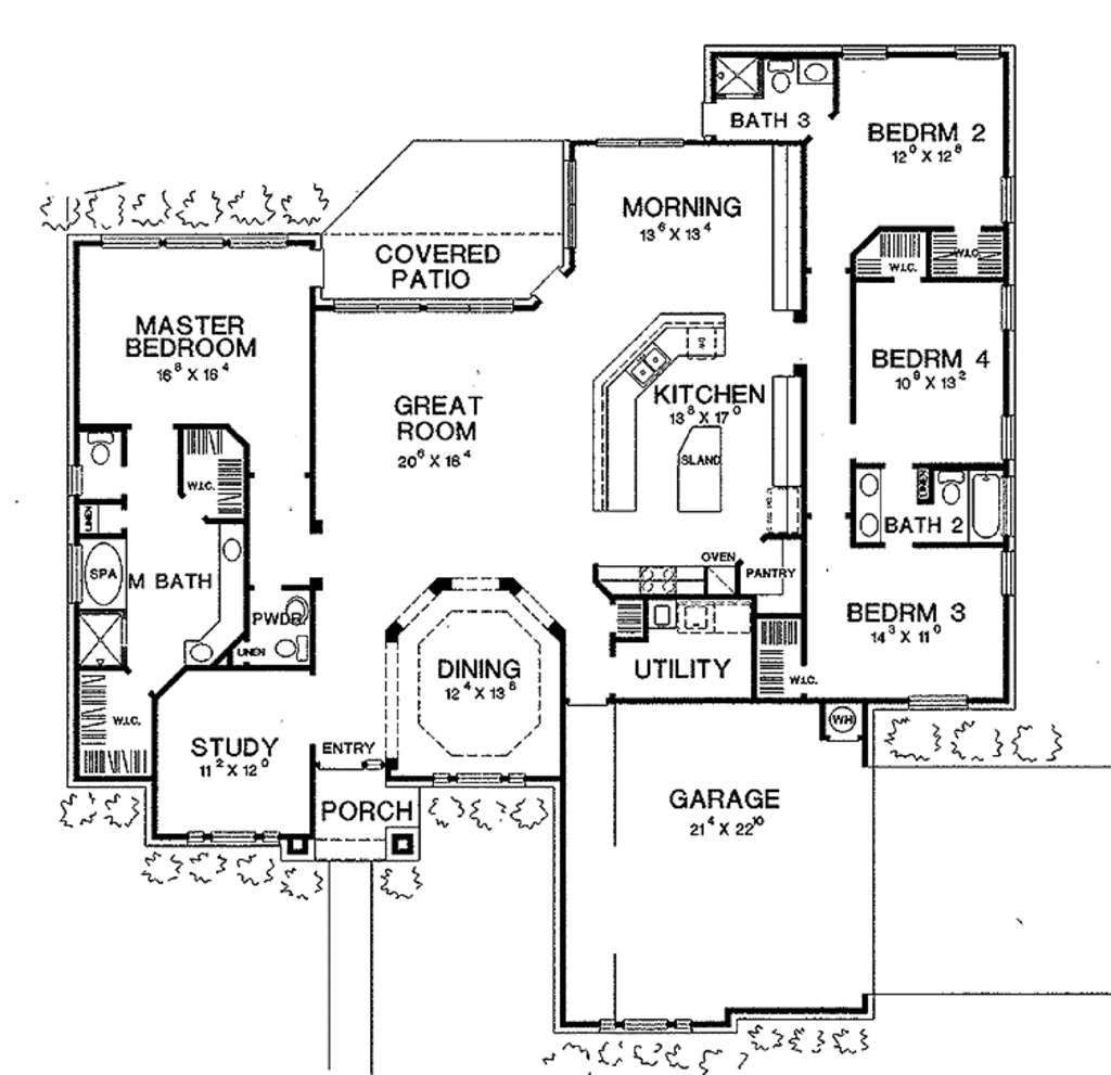
Understanding the Classic Ranch House Layout
Traditional ranch houses have been popular for decades because they offer simplicity and efficiency. The typical 4 bedroom ranch features a straightforward front-to-back flow that's easy to navigate. You'll usually find the main living areas near the front, with bedrooms toward the back. This arrangement allows for good separation between public and private spaces. The kitchen often sits centrally, serving as the heart of the home. Many ranch layouts include a dining area that flows naturally into the living room. Some designs even incorporate a breakfast nook or informal eating space. The beauty lies in how these rooms connect while maintaining their individual purposes. Consider how traffic patterns work in your current home, then apply those lessons to your new layout.

Key Considerations for Bedroom Placement
Where you place those four bedrooms can make or break your home's functionality. Most families prefer having bedrooms grouped together, often with a master suite separated from the others. This arrangement offers privacy for parents while keeping children close enough for easy supervision. The master bedroom typically includes a walk-in closet and en-suite bathroom. Smaller bedrooms can share a hallway bath or have their own small bathrooms. Consider the view from each window and how noise might travel between rooms. Are you planning to add a study or guest room? That decision affects where you position your bedrooms. Sometimes, a flexible space that can serve multiple purposes works better than a rigid room assignment.

Kitchen and Living Areas: The Heart of Your Home
In a ranch house, the kitchen often serves as the central hub connecting all other areas. Open-concept designs are increasingly popular, allowing families to cook while chatting with guests in the living room. The dining area needs to be easily accessible from the kitchen, and ideally, it should flow into the living space. Modern ranch homes often feature islands or breakfast bars that create conversation areas while providing extra counter space. Think about how much time you spend cooking versus entertaining. Do you need a separate formal dining room, or does an informal setup work better for your lifestyle? The living room should feel spacious yet intimate, with enough room for furniture and movement. Consider adding a family room or den if you want a more casual space for relaxation.

Storage Solutions and Functional Spaces
Good storage planning is essential in any home, but especially in ranch houses where every square foot counts. Built-in closets, pantry spaces, and mudrooms help keep clutter out of sight. Many ranch homes include a laundry room with direct access to bedrooms, making daily tasks more convenient. A mudroom off the garage can be a game-changer for families with children or pets. The garage itself may need to accommodate not just vehicles but also storage for seasonal items. Consider how much storage you really need versus what looks nice. Sometimes a simple linen closet is more practical than a fancy built-in. Smart storage solutions can make a small home feel spacious and organized. Think about how you organize your belongings now, and apply those preferences to your new layout.

Outdoor Integration and Access Points
One of the biggest advantages of ranch homes is their connection to the outdoors. The floor plan should facilitate easy access from indoor spaces to decks, patios, or gardens. French doors leading to outdoor areas create seamless transitions between inside and outside. A covered porch or sunroom can extend your living space during pleasant weather. Consider how you want to use your outdoor space. Do you need room for a grill, fire pit, or garden? The layout should support your outdoor lifestyle without requiring you to walk across the entire house to reach it. Many modern ranch designs incorporate outdoor kitchens or entertainment areas. These additions can dramatically change how you think about your home's relationship with its surroundings. Don't forget about parking, landscaping, and utility access when planning outdoor connections.
Modern Trends in 4 Bedroom Ranch House Design
Today's ranch house designs blend classic elements with contemporary needs. Open floor plans continue to be popular, offering flexibility in how families use their spaces. Smart home technology integration is becoming standard, from automated lighting to security systems. Energy efficiency considerations influence everything from window placement to insulation choices. Many homeowners now want dedicated spaces for working from home, whether it's a formal office or a cozy corner with good lighting. The trend toward sustainable building materials and practices means you can have a beautiful home that's also environmentally responsible. Flexibility remains key—spaces that can adapt as your family grows or changes. Modern ranch homes often feature more natural light, updated appliances, and thoughtful finishes that make them feel fresh and inviting.
Designing a 4 bedroom ranch house floor plan is both an art and a science. It requires balancing practical needs with personal preferences, considering how you live now and how you might live in the future. The right layout creates a foundation for comfortable family life, making everyday moments feel more enjoyable. Whether you're working with an existing home or starting from scratch, take time to think through each room's purpose and how they relate to one another. Remember that the best floor plan isn't necessarily the most expensive or elaborate—it's the one that fits your lifestyle perfectly. Trust your instincts about what works for you and your family, and don't hesitate to ask professionals for guidance when needed. After all, your home should reflect who you are and how you choose to live.