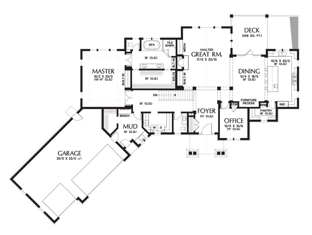
In today's world, where families want to stay connected while maintaining their individual spaces, open floor plan ranch house plans have become increasingly popular. These designs don't just offer spaciousness—they create environments where laughter echoes, conversations flow freely, and daily life feels less cramped. Whether you're planning a new build or renovating your current home, understanding how these layouts work can transform your living experience.
Ranch houses have been a staple of American architecture for decades, offering straightforward, single-level living that's both practical and comfortable. When combined with the modern trend toward open floor plans, they create something special—a home that feels both grounded and expansive. Think of it like having a living room that flows seamlessly into the kitchen and dining area, all without walls interrupting the conversation or movement. This isn't just about aesthetics; it's about creating spaces that support how we actually live today.
What Makes a Ranch House Different?
Traditional ranch homes are characterized by their low-profile design, typically featuring one story with a long, horizontal layout. They often have large windows, a front porch, and a simple roofline that hugs the ground. The beauty of these homes lies in their ability to provide easy access and straightforward navigation. When you add an open floor plan to this foundation, you're essentially removing barriers between rooms that were once separate entities. Instead of walking through a narrow hallway to get from the kitchen to the living room, you now have a continuous space that encourages interaction and flexibility.
Benefits of Open Floor Plans in Ranch Homes

There are several compelling reasons why open floor plans are such a hit with homeowners:
These advantages make open floor plan ranch houses particularly appealing to modern families who value connection and functionality.
Key Design Elements to Consider
Creating an effective open floor plan requires thoughtful attention to several design elements:
These components work together to ensure that your home doesn't just look open but truly functions as an open environment.

Popular Layout Options
There are various ways to structure an open floor plan within a ranch house framework. Here are some common approaches:
Each style offers its own unique character and can be tailored to fit your lifestyle and preferences.
Challenges and How to Address Them
While open floor plans offer many perks, they also come with challenges:

Addressing these issues upfront can prevent headaches later on. For instance, adding a small hallway or a half-wall can create privacy while maintaining the open feel.
Making It Work for Your Family
Every family is different, and what works for one may not work for another. Here are some ways to customize your open floor plan ranch house to meet your needs:
This approach ensures that your home supports your life rather than feeling like it's working against you.
Real-Life Examples and Inspiration

Looking at actual homes can help bring these ideas to life. Some standout examples include:
These real-world examples show how practical and beautiful open floor plans can be when executed properly. They remind us that good design isn't just about looking good—it's about making life easier and more enjoyable.
Budget Considerations
Implementing an open floor plan can vary widely in cost depending on whether you're building from scratch or renovating. Here's what to expect:
Planning ahead and setting realistic expectations can save you from costly surprises later.

Future Trends in Open Plan Ranch Design
As lifestyle preferences continue evolving, so do the trends in open floor plan ranch houses:
These developments suggest that open floor plan ranch houses will continue to adapt to modern needs while maintaining their classic appeal.
Final Thoughts on Open Concept Living
Open floor plan ranch house designs represent more than just architectural trends—they reflect our changing values around family, community, and personal space. These homes encourage interaction, support diverse lifestyles, and provide the flexibility to evolve with time. Whether you're designing a new home or updating an existing one, embracing this approach can significantly improve your quality of life. The key is to balance openness with practicality, ensuring that your space not only looks great but also works beautifully for the way you live.
Open floor plan ranch house plans offer a compelling blend of traditional charm and modern functionality. They create environments where families can thrive, where entertaining becomes effortless, and where every corner of your home feels welcoming. While there are challenges to consider, thoughtful planning and smart design choices can help you navigate them successfully. As you explore these possibilities, remember that the best design is one that fits your life, not the other way around. With careful consideration and creativity, your open floor plan ranch house can be more than just a place to live—it can be a true reflection of who you are and how you want to spend your days.