Think about the classic ranch house - those sprawling, single-story homes that have defined American suburban living for decades. Now imagine taking that familiar layout and adding a clever twist. That's exactly what L-shaped ranch style house plans offer. These innovative designs take the traditional ranch concept and give it a fresh perspective while maintaining all the comfort and functionality that makes ranch homes so beloved.
L-shaped ranch style house plans represent a fascinating evolution in residential architecture. While traditional ranch homes stretch straight ahead, L-shaped variations add a distinctive curve that creates both visual interest and practical advantages. These homes blend the familiarity of classic ranch designs with modern spatial efficiency and aesthetic appeal. Whether you're planning a new build or renovating an existing space, understanding how L-shaped ranch plans work can transform your approach to home design. The beauty lies in how they seamlessly incorporate outdoor living spaces, optimize natural light, and provide flexible room arrangements that suit contemporary lifestyles.
What Makes L-Shaped Ranch Plans Unique

Unlike standard ranch layouts, L-shaped designs feature a corner where two sections meet, creating a distinctive silhouette that's both functional and visually striking. This configuration allows for better flow between indoor and outdoor spaces, often featuring a covered porch or deck that extends along the L-shape. The unique geometry also means that these homes can maximize views and natural light while maintaining privacy. Many homeowners find that the L-shape naturally divides the home into distinct zones - perhaps separating living areas from bedrooms or creating a cozy family wing with a separate guest area. The flexibility in design means that each L-shaped ranch plan can be tailored to fit specific site conditions and personal preferences.
Key Benefits of L-Shaped Layouts
The L-shape also offers practical advantages like easier traffic flow between different areas of the home. You'll notice that these designs often create natural pathways that guide movement through the house in logical ways. The corner area can serve as a focal point, whether it's a cozy reading nook, a breakfast bar, or simply a place where families gather.

Popular Features in L-Shaped Ranch Designs
Modern L-shaped ranch homes often incorporate several standout features that make them particularly appealing:
These features work together to create homes that feel both spacious and intimate. The L-shape helps define different areas while keeping the overall feeling of openness and connection.

Design Considerations and Challenges
When planning an L-shaped ranch home, several factors deserve careful attention:
One thing many homeowners discover is that the L-shape can actually simplify some design challenges. For example, the corner area often works well as a transition zone between public and private spaces, making it easier to organize family life. However, it does require thoughtful planning to avoid awkward spaces or inefficient layouts.

Choosing the Right L-Shaped Plan for Your Needs
Selecting the perfect L-shaped ranch plan involves matching your lifestyle with the available options:
Consider how your daily routine will move through the space. Do you want easy access from the garage to the kitchen? Are you planning to spend a lot of time outdoors? These questions help narrow down which L-shaped plan will best serve your family's needs. Many architects offer customization options that allow you to modify standard plans to better fit your specific requirements.

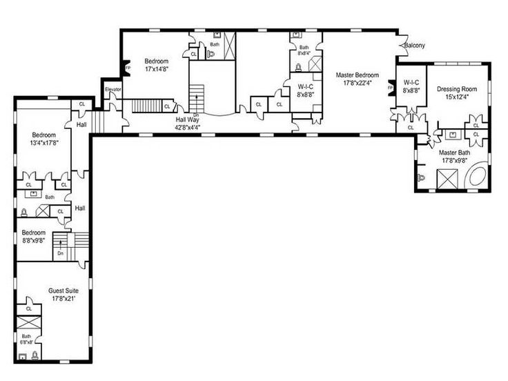
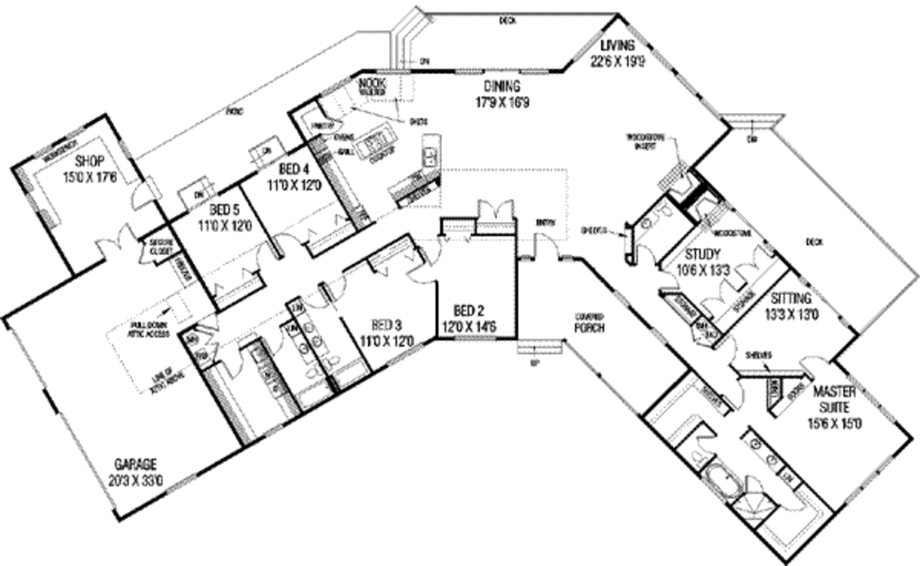
Real-World Examples and Inspiration
Looking at actual L-shaped ranch homes provides valuable insight into how these designs work in practice:
Each example shows how the L-shape can be adapted to different environments and family needs. Some focus heavily on outdoor living, others prioritize privacy and quiet spaces, and still others balance both elements. The common thread is how the L-form creates both functional spaces and beautiful architectural lines that stand out from conventional home designs.
L-shaped ranch style house plans represent more than just a design trend - they're a practical solution for modern living that combines timeless ranch characteristics with contemporary innovation. Whether you're drawn to the visual appeal of the L-shape or the functional benefits it provides, these homes offer something special for families seeking comfort, flexibility, and style. The key is finding a plan that matches your lifestyle, fits your site, and grows with your family's changing needs. As with any major home project, spending time researching different options and consulting with experienced designers will pay dividends in the long run. The right L-shaped ranch plan can become the foundation for many happy memories, providing a comfortable and inspiring space for generations to come.