Picture this: You're standing in your kitchen, watching your kids play in the living room, while your partner prepares dinner. The walls seem to disappear, and everyone's connected. That's the magic of open concept ranch style house plans. These designs have transformed how we think about home spaces, making them feel bigger, more inviting, and perfectly suited for modern family life.
Ranch style homes have been a beloved choice for decades, but when you add an open concept design to the mix, something truly special happens. These homes blend the classic appeal of ranch architecture with contemporary living needs. Think of it as taking the best of both worlds - the cozy, single-level comfort of a traditional ranch and the flowing, connected feel that makes modern families thrive. Whether you're planning your first home or upgrading your current space, understanding how these elements work together can make all the difference.
The Foundation of Ranch Style Design
Ranch homes originated in the mid-20th century, particularly popularized in the American West. These homes feature a low-profile, horizontal design that stretches across the land rather than building upward. They typically have one story with a long, sprawling facade that creates a sense of openness and connection with the outdoors.
What makes ranch style so appealing? It's the way it embraces the landscape. Large windows let in natural light, while sliding doors often open directly to patios or yards. The design encourages a seamless transition between indoor and outdoor living spaces. Many ranch homes also feature a central hallway that connects different rooms, creating a sense of flow that makes navigating the home effortless.

The foundation of ranch style lies in its simplicity and functionality. Every element serves a purpose, and there's no unnecessary complexity. This philosophy naturally lends itself to open concept thinking because everything flows together without barriers.
Understanding Open Concept Principles
Open concept isn't just about removing walls; it's about thoughtful design that promotes interaction and movement. In practice, this means eliminating traditional room separators like thick walls or doorways between the kitchen, dining area, and living room.
The key benefit is social connection. When people gather in the same space, conversations flow more naturally. Children playing near the kitchen counter can easily interact with parents cooking nearby. There's less physical separation, which means more eye contact, easier communication, and a stronger sense of togetherness.
But open concepts aren't just about socializing. They also provide flexibility in how spaces are used. A kitchen island can serve as a breakfast bar, a dining table, or a casual workspace. The same area might accommodate different activities throughout the day without requiring reconfiguration.

Consider how this works in real life. Imagine hosting a dinner party where guests can chat with the host while they prepare food, or having kids do homework at the kitchen counter while parents work nearby. These scenarios become possible with the right open concept design.
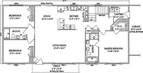
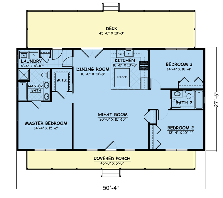
Key Layout Features in Open Concept Ranch Plans
When designing an open concept ranch, several features tend to make the biggest impact:
These features work together to create a cohesive environment where each part supports the others. For instance, a high ceiling paired with large windows makes even a small space feel expansive. The kitchen island becomes a gathering place, while open sightlines allow you to keep an eye on children playing nearby.
Many ranch style homes incorporate built-in storage solutions that maintain the clean lines of open spaces. These can include pantry areas, shelving units, or custom cabinetry that blends seamlessly with the overall design.

Benefits Beyond Aesthetics
Open concept ranch plans offer advantages that extend far beyond their visual appeal. Families often find they spend more time together because the layout naturally encourages interaction. Children grow up in environments where they can see and participate in daily activities, leading to stronger family bonds.
From a practical standpoint, these designs are excellent for entertaining. Guests can move freely through the space without feeling confined to separate rooms. Whether it's a casual Sunday brunch or a larger celebration, the open layout accommodates various group sizes and activities.
Energy efficiency also improves with proper design. Natural light reduces the need for artificial lighting during the day, and open floor plans often promote better air circulation. This can lead to lower utility bills over time.
Maintenance becomes easier too. With fewer walls and more open space, cleaning and rearranging furniture requires less effort. The streamlined approach to interior design also means fewer materials and potentially lower construction costs.

There's also a psychological benefit. People often feel less stressed in open, well-lit spaces. The lack of enclosed rooms can make smaller homes feel more spacious and less claustrophobic. This is especially important for families with young children who may feel overwhelmed in smaller, traditional layouts.
Common Challenges and Solutions
While open concept ranch plans offer many advantages, they're not without challenges. One major concern is noise control. Without walls to contain sound, conversations, cooking noises, and activity can travel throughout the entire space. This can be particularly challenging for households with multiple generations or pets.
Soundproofing solutions include using acoustic panels, selecting appropriate flooring materials, and incorporating soft furnishings that absorb sound. Some designers opt for partial walls or half-height partitions to maintain visual openness while providing some sound separation.
Privacy is another consideration. In homes with multiple bedrooms, ensuring that private spaces remain private becomes important. This might involve strategic window placement, careful consideration of door locations, or using decorative screens and furniture to define different zones within the open space.

Storage presents unique challenges too. With less wall space available for built-ins, creative storage solutions become essential. This might include multi-level storage units, under-stair storage, or clever use of vertical space that doesn't compromise the open feel.
Budget considerations are also important. While open concept layouts can reduce some construction costs, they may require additional investments in quality materials to achieve the desired look and functionality. Professional design consultation can help balance aesthetic goals with financial realities.
Modern Variations and Trends
Today's open concept ranch style houses reflect current lifestyle preferences while maintaining the core elements that make the design successful. Modern interpretations often include:
Contemporary ranch homes often feature updated kitchens with modern appliances and sleek finishes while maintaining the classic ranch proportions. The trend toward larger, more functional kitchen islands reflects how families want to spend more time in these central spaces.
Color palettes have evolved to include more neutral tones that enhance the open feel, though personal touches through artwork, textiles, and accessories can add warmth and character. The focus remains on creating spaces that feel welcoming and comfortable for everyday life.
Many new ranch style homes also incorporate sustainable features like solar panels, energy-efficient appliances, and water conservation systems. These additions don't compromise the open concept but rather enhance the overall living experience.
Open concept ranch style house plans represent more than just architectural trends - they embody a shift toward more connected, flexible, and family-focused living. These homes create spaces where people naturally come together, where daily activities flow smoothly from one to another, and where the boundaries between indoor and outdoor living become blurred. Whether you're building your dream home or renovating your existing space, understanding how these elements work together can help you create a place that truly serves your family's needs. The key lies in balancing the openness that makes these homes special with the practical considerations that make them livable for years to come. After all, a great home isn't just about the design - it's about how it enhances the lives of those who live in it.