Imagine walking into your dream home, where every room flows seamlessly into the next, where family gatherings feel natural, and where your daily life moves effortlessly through well-thought-out spaces. For many families, the 2000 square foot ranch house plan represents just the right balance between comfort and practicality. It's large enough to provide space for everyone, yet small enough to manage and maintain easily. This guide will walk you through everything from basic layouts to modern features that make these homes so appealing.
When it comes to home planning, size matters—but not in the way you might think. A 2000 square foot ranch house strikes that sweet spot where functionality meets comfort. Think about it: you have enough room for a master suite, two or three bedrooms, a kitchen that doesn't feel cramped, and maybe even a bonus room or office. But here's the thing—this size isn't overwhelming. It's manageable, affordable, and practical for most lifestyles. Whether you're starting a family, downsizing from a larger home, or building your first place, this size offers something special. It's not too big that you're constantly cleaning, nor too small that you're always feeling cramped. It's the perfect canvas for creating a home that truly works for you.
Understanding the Ranch House Style

Ranch houses aren't just a trend—they're a timeless approach to home design that emphasizes simplicity and efficiency. These homes typically feature one main floor with a low-pitched roof and long, horizontal lines that stretch across the property. The style originated in the mid-1900s and was designed to bring the outdoors inside, with large windows and open floor plans that blur the line between indoor and outdoor living. What makes ranch homes particularly appealing for 2000 square feet is their ability to maximize space without unnecessary complexity. You get wide hallways, spacious rooms, and often a covered porch or deck that extends the living area outdoors. Many ranch homes also feature a garage that's integrated into the main structure, which saves space and creates a cohesive look.
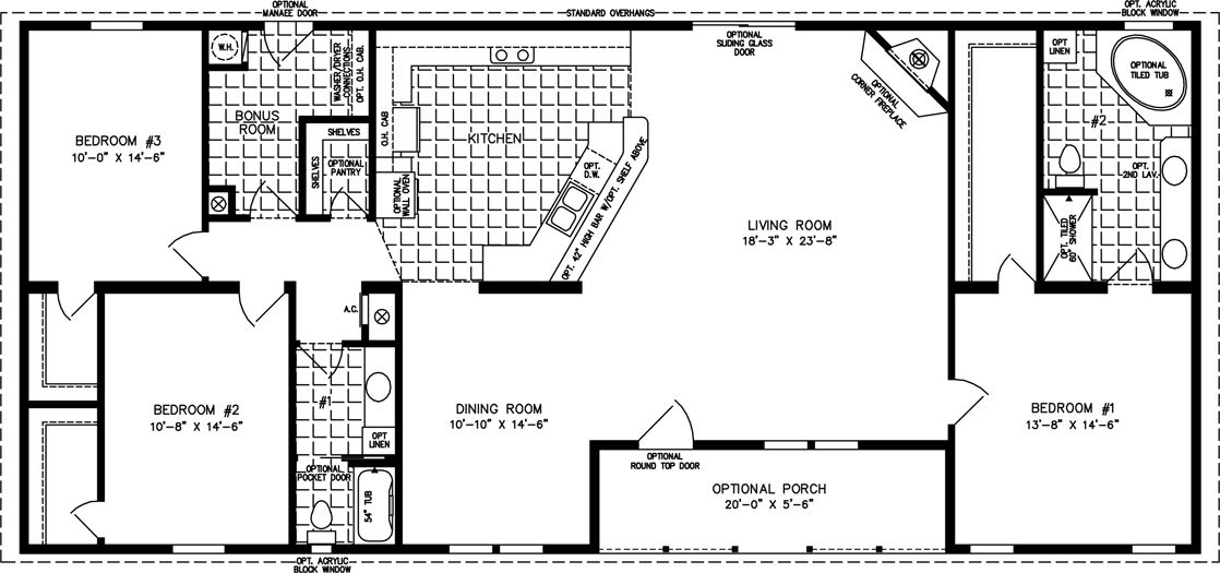
Popular Layout Configurations
Not all 2000 square foot ranch plans are created equal. There are several common layouts that work well for this size. One popular option is the traditional 3-bedroom, 2-bathroom layout with a large living area. Another is the 4-bedroom, 2.5-bathroom version that provides extra space for guests or a growing family. Some designs feature an open-concept kitchen and living area with a separate dining room, while others combine these spaces for a more fluid experience. The placement of bedrooms varies, with some homes featuring all bedrooms on one side and the kitchen and living areas on the other. Others might have the master suite separated from the other bedrooms for privacy. The key is finding a configuration that matches your lifestyle and needs.

Essential Features for Modern Living
Today's homeowners expect more than just a place to live. They want spaces that support their daily routines and enhance their quality of life. In a 2000 square foot ranch house, some essential features include:
These elements help transform a simple house into a comfortable, functional home. Many modern ranch plans also incorporate smart home technology, sustainable materials, and multi-functional rooms that serve different purposes throughout the day.

Cost Considerations and Budget Planning
Building or buying a 2000 square foot ranch house involves more than just the base price. You'll need to consider materials, labor costs, and additional features that can add up quickly. On average, construction costs range from $150 to $300 per square foot depending on location and finishes. That means a 2000 square foot home could cost anywhere from $300,000 to $600,000. But remember, these homes often provide good value because they're efficient to heat and cool, and maintenance tends to be straightforward. When budgeting, factor in everything from foundation work to landscaping, and don't forget to set aside money for unexpected expenses. It's also worth noting that ranch homes often appreciate well in certain markets due to their popularity and practical design.
Design Tips for Maximizing Space

In 2000 square feet, every inch counts. Here are some strategies to make the most of your space:
These tips help ensure that your 2000 square foot ranch feels spacious rather than cramped. The key is thoughtful design that considers how you actually live, not just how the space looks on paper.
Planning for Future Needs

The best ranch house plans consider future changes in your life. Whether you're planning to start a family, care for aging parents, or simply want flexibility, thinking ahead helps you choose the right layout. Consider:
A flexible design allows your home to grow with you. Some homeowners find that choosing a layout with adaptable spaces pays off in the long run, whether they're dealing with kids, pets, or changing career needs. It's better to plan for change now than to face expensive renovations later.
A 2000 square foot ranch house plan isn't just about measurements—it's about crafting a space that supports your life. It's a home that balances comfort with practicality, tradition with modernity, and personal needs with future possibilities. Whether you're designing from scratch or renovating an existing space, remember that the best plans reflect your lifestyle and priorities. Take time to explore different layouts, consider your daily routines, and think about how you want to spend your time at home. With careful planning and attention to detail, your 2000 square foot ranch can become exactly what you've been dreaming of—a place where you truly belong. The journey to your perfect home starts with understanding what makes a great ranch house plan work, and that's exactly what we've explored together. Now it's time to put your own vision into action.