There's something deeply comforting about a well-designed ranch home. The open, sprawling feel of a two-bedroom ranch style floor plan brings together functionality and comfort in ways that resonate with homeowners across generations. Whether you're planning your first home or considering a move to a new lifestyle, understanding how these layouts work can transform your housing decisions.
Ranch homes have been a staple of American suburban life for decades, and for good reason. These single-story dwellings offer a perfect balance between space and simplicity. When it comes to 2 bedroom ranch style floor plans, there's a remarkable diversity in design that speaks to different lifestyles and family needs. From the classic open-concept layouts to more traditional room arrangements, these homes provide endless possibilities for creating your ideal living space. Let's explore what makes these floor plans so appealing and how they can meet your unique requirements.
Understanding the Classic Ranch Layout

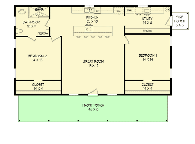
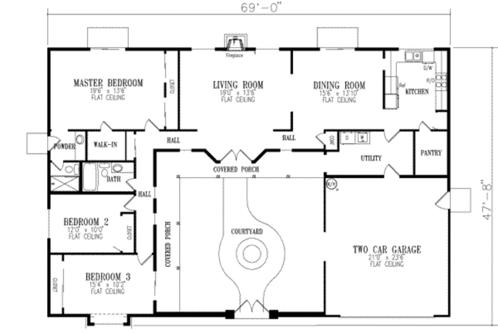
The traditional ranch style features a long, low profile that stretches horizontally rather than vertically. This design philosophy creates an open feeling that makes even modest homes feel spacious. In a 2 bedroom ranch, you'll typically find the main living areas grouped together on one side of the house while bedrooms and bathrooms are arranged on the opposite side. This separation keeps noise levels manageable and provides privacy for sleeping areas. The kitchen often sits in the center, acting as a hub for family activities and social gatherings. Many ranch homes also feature a large front porch or covered entryway that adds character and outdoor living space to the overall design.
Popular 2 Bedroom Ranch Floor Plan Configurations
There are several common layouts that define most 2 bedroom ranch homes:

Each configuration offers distinct advantages depending on your lifestyle and preferences.
Key Considerations for Family Living
When evaluating 2 bedroom ranch floor plans, think about how your daily routine will fit within the space. Consider:

Many modern ranch homes also incorporate features like mudrooms, laundry rooms, and covered porches that enhance daily living. These elements make the home more functional and enjoyable for everyone who lives there.
Space Optimization Strategies
Maximizing every square foot in a 2 bedroom ranch requires thoughtful planning:

One popular trend in modern ranch homes is the inclusion of walk-in closets in both bedrooms. This simple addition can dramatically improve organization and daily routines. Another smart move is creating a sense of flow between spaces using consistent flooring materials or color schemes.
Outdoor Integration and Landscaping
A successful 2 bedroom ranch design extends beyond the walls of the house. The relationship between indoor and outdoor spaces matters greatly. Many ranch homes feature:

These outdoor elements don't just add beauty—they create opportunities for relaxation and entertainment. Consider how you want to use outdoor space when choosing a floor plan. A home with a large deck or patio might be perfect if you love grilling and hosting barbecues.
Practical Tips for Choosing Your Ideal Plan
Here are some practical steps to help you select the right 2 bedroom ranch floor plan:
Don't overlook the importance of natural light and views when reviewing plans. A home that faces the right direction can make all the difference in your daily experience. Also consider the resale value in your particular market—some layouts are more desirable than others.
Choosing the right 2 bedroom ranch style floor plan is about finding the perfect balance between practicality and personal preference. These homes offer timeless appeal because they adapt to changing needs while maintaining their fundamental charm. Whether you prefer the open energy of a modern ranch or the classic elegance of traditional design, there's a layout that fits your lifestyle. The key is understanding what features matter most to you and finding a plan that delivers those essentials. Remember, a well-designed ranch home isn't just about the number of bedrooms—it's about creating a space where you and your family can thrive. Take time to explore different configurations, consider your daily habits, and trust your instincts when making this important decision. After all, this is where your everyday dreams come to life.