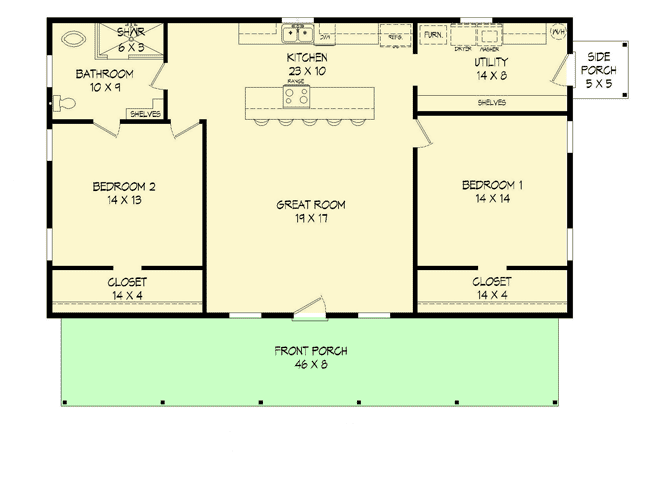
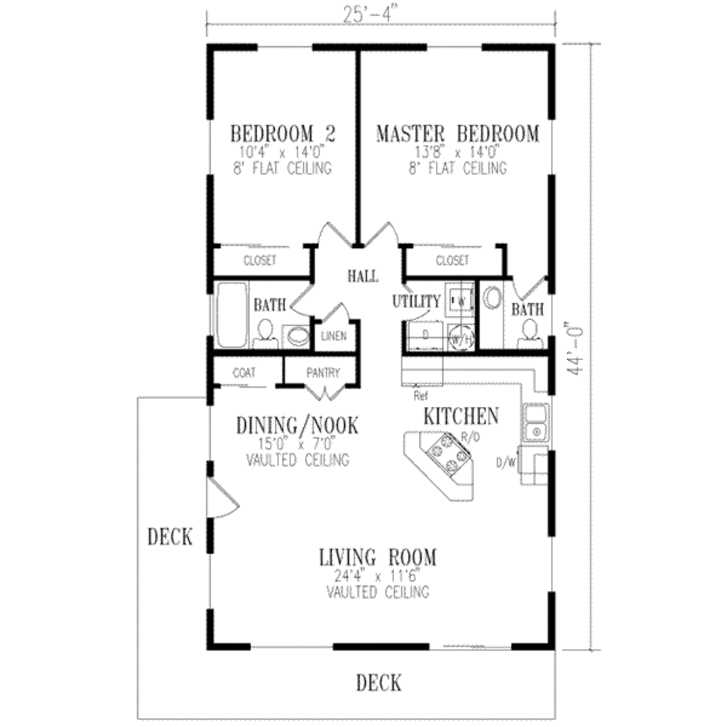
There's something deeply satisfying about a well-designed ranch house. The open feel, the easy flow between rooms, and that classic American charm that makes every home feel like a sanctuary. When it comes to 2 bedroom ranch house floor plans, the possibilities are endless. Whether you're planning a new build or remodeling an existing space, understanding how to maximize every square foot while keeping things comfortable and functional is key. Let's explore what makes these layouts work so well.
Ranch houses have been a staple of American suburban life for decades. They offer a perfect blend of comfort, functionality, and style. But when it comes to the 2 bedroom ranch house floor plan, there's more to consider than just two bedrooms. The way those spaces connect, the flow between rooms, and even the placement of the kitchen and bathrooms all play a huge role in making your home feel right. These homes are designed to be lived in, not just occupied. So let's dive into the essential elements that make 2 bedroom ranch house floor plans work beautifully.

Understanding the Classic Ranch House Layout
The traditional ranch house is all about horizontal living. It's a single-story design that emphasizes open spaces and easy movement. When you think about 2 bedroom ranch house floor plans, picture a home that flows naturally from one area to the next. This isn't just about having a big living room - it's about creating a seamless experience where each room supports the others. The beauty of the ranch style lies in its simplicity and practicality. You might see a large kitchen that opens into the dining area, with a living room that leads directly to the backyard. That kind of flow makes daily life easier. Think about how much more pleasant it is to cook dinner while your family gathers around the table, rather than having to walk through a narrow hallway. The key is to keep things connected and avoid unnecessary barriers.

Key Design Elements for 2 Bedroom Ranch Homes
When designing a 2 bedroom ranch house floor plan, several important features stand out. First, the bedroom arrangement matters greatly. Typically, you'll want one bedroom near the front of the house and another toward the back. This setup helps create privacy for both occupants and keeps the main living areas in the center. The master bedroom often gets special attention - maybe a private bathroom or a walk-in closet. Sometimes, the second bedroom doubles as a guest room or study. Consider how you'll use each space. Do you entertain frequently? Then a larger living area and open kitchen might be essential. Are you a home cook? You'll want your kitchen to be both functional and spacious. What about outdoor access? Many 2 bedroom ranch designs include French doors or sliding glass doors that lead directly outside, connecting indoor and outdoor living seamlessly. The overall design should feel like a home where you want to spend time, not just pass through.

Optimizing Space and Flow
Space optimization is crucial in any home, but especially in ranch-style layouts. With limited square footage compared to larger homes, every inch counts. One popular approach is to create a central hub area that connects multiple functions. For example, a kitchen island can serve as a breakfast bar during the day and a casual dining area in the evening. Having multiple entry points can also help with traffic flow - perhaps a front door for guests and a side entrance for quick trips to the garage. The hallways in ranch homes tend to be short and direct, which helps maintain the open feeling. Another smart move is to place similar activities in related areas. Keep the laundry room close to the bedrooms, and put the bathroom near the main living areas. This reduces walking distances and makes life more convenient. Think about the typical routines in your household and design accordingly.

Popular 2 Bedroom Ranch Floor Plan Variations
Not every 2 bedroom ranch house looks exactly alike. There are many different variations that suit different lifestyles and preferences. Some homes feature a traditional layout with bedrooms on opposite sides of the house. Others might have the bedrooms side-by-side for easier supervision of children. You might find a version where the master suite is separated from the secondary bedroom by a shared bathroom. There are also designs where one bedroom serves dual purposes - maybe as a guest room during the week and a home office on weekends. Some ranch homes include a formal dining room, while others prefer a casual breakfast area that flows into the kitchen. The flexibility in 2 bedroom ranch house floor plans means you can customize them to match your specific needs. The key is to understand what works best for how you actually live.

Practical Considerations for Modern Living
Modern families have different needs than previous generations, and 2 bedroom ranch house floor plans reflect this evolution. Smart storage solutions are now essential - built-in cabinets, linen closets, and pantry spaces help keep everything organized. Natural light plays a major role too. Large windows, skylights, and strategic door placements can make a small space feel much larger. Consider the impact of technology too. Will you need dedicated spaces for home offices, entertainment systems, or charging stations? These elements might seem small, but they affect how you use your space every day. Privacy is another important factor. Even in a small home, you want to feel comfortable and protected. This might mean careful window placement, thoughtful room separation, or simply choosing the right materials and colors. These details make all the difference between a house and a true home.
Cost-Effective Design Tips for Your Ranch Home
Building or renovating a 2 bedroom ranch house doesn't have to break the bank. There are plenty of ways to create beautiful, functional spaces without spending a fortune. Start with simple changes like repainting or updating fixtures. These can completely transform a space for a fraction of the cost of major renovations. Choose versatile furniture that can adapt to different needs over time. A sofa bed might serve as both seating and guest accommodation. Consider the long-term costs too - energy efficiency, maintenance, and durability all factor into your budget. Materials like vinyl plank flooring or laminate countertops offer the look of luxury at a lower price point. Don't overlook the power of good lighting. Strategic placement of lights can dramatically improve the feel of any room. Finally, think about the resale value. While you're designing for yourself, keeping some universal appeal in mind can pay off later. These practical considerations ensure your investment remains valuable.
Making Your 2 Bedroom Ranch Home Unique
While following standard principles is helpful, don't be afraid to add your personal touch to your 2 bedroom ranch house floor plan. Maybe you love gardening, so a sun-drenched porch or deck becomes essential. Or perhaps you're an artist, needing a dedicated creative space. The key is to incorporate these interests into the overall design. Sometimes this means rethinking traditional layouts - perhaps moving the kitchen to accommodate a larger breakfast nook, or expanding the living area to include a reading corner. You might choose to add a mudroom or pantry that fits your lifestyle perfectly. The most successful ranch homes aren't just functional - they tell a story about who lives there. Personal touches make spaces feel lived-in and loved, rather than just constructed. Consider what makes your life special and build around that.
A 2 bedroom ranch house floor plan is more than just a blueprint - it's the foundation for how you'll live every day. From the way rooms connect to how you'll use each space, these designs shape your daily experiences. The beauty of the ranch style is its ability to balance comfort with practicality, creating homes that feel both spacious and intimate. Whether you're building a new home or renovating an existing one, remember that these floor plans are meant to serve your life, not the other way around. Take time to think through your specific needs, consider how you want to live, and don't be afraid to make adjustments that feel right for you. The result will be a home that truly feels like yours - a place where you can relax, entertain, and grow. After all, that's what makes a house into a real home.