Picture this: you're standing in your newly designed home, feeling the warmth of every room, the flow of each space. That's exactly what a well-thought-out 3 bedroom ranch floor plan can give you. These homes offer something special - they combine comfort, functionality, and a timeless appeal that many families crave. Whether you're planning your first home, upgrading your current living space, or simply curious about home design, understanding these layouts opens up a whole new world of possibilities.
When it comes to family homes, few designs capture hearts quite like the classic 3 bedroom ranch floor plan. These homes have been a favorite for decades because they offer the perfect balance between spaciousness and practicality. Think of them as the reliable friend of home design - always there when you need them, never flashy but always satisfying. What makes these layouts so appealing? They're designed around a simple, straightforward concept that makes sense for everyday life. You've got a main living area, bedrooms arranged thoughtfully, and a kitchen that works for both cooking and socializing. It's not just about the square footage; it's about how that space feels when you're actually living in it.
What Makes a Ranch Plan Special

Ranch homes aren't just about their low, sprawling appearance. They're about creating a lifestyle. The open-concept feel means you can move freely between rooms without feeling confined by walls. Imagine having breakfast in the kitchen while kids get ready for school in the adjacent living area. This flow makes daily routines easier and brings families closer together. The single-story design eliminates the hassle of stairs, making it perfect for families with young children or elderly relatives. It's a design philosophy that puts comfort first and form second. These homes often feature large windows and outdoor spaces that connect the inside with the outside, bringing nature right into your living area.
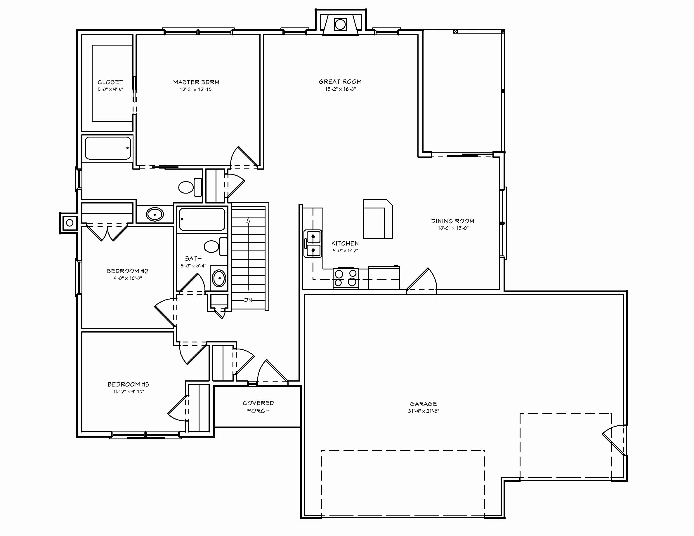
Key Features of Popular 3 Bedroom Ranch Designs
Let's break down what makes certain layouts work better than others:

Layout Options and Their Benefits
There are several ways to arrange a 3 bedroom ranch floor plan, each with its own advantages:
Front-to-Back Layout: This is the most traditional approach where the front of the house contains the living areas and kitchen, with bedrooms toward the back. It creates a natural flow from public to private spaces.

Side-by-Side Configuration: In this setup, bedrooms are positioned along one side of the house, with the living areas in the center. It's great for homes with limited frontage.
Central Family Zone: Some modern ranch designs put the family room in the middle, with bedrooms on either side. This creates a hub that everyone can access easily.
Each option affects how your family moves through the house and how you entertain guests. Consider your lifestyle before choosing a layout.

Space Optimization Tips
Making the most of every square foot is crucial in any home, but especially important in ranch designs. Here are some smart approaches:
Practical Considerations for Families

A well-designed ranch plan addresses the real needs of families:
These considerations make the difference between a house and a true home.
Modern Trends in 3 Bedroom Ranch Design
While traditional ranch homes have stood the test of time, modern updates keep them fresh and relevant:
These trends help ranch homes stay contemporary while maintaining their classic charm.
The beauty of 3 bedroom ranch floor plans lies in their ability to provide comfort, practicality, and lasting appeal. They represent a design philosophy that puts people first, focusing on how you live rather than just how your house looks. Whether you prefer the classic arrangement or want to incorporate modern touches, these layouts offer endless possibilities. The key is understanding what matters most to you and your family. Every room should feel intentional, every space should serve a purpose, and the overall flow should support your lifestyle. When you choose a ranch plan, you're not just picking a house - you're selecting a foundation for your memories, your relationships, and your future. So take your time, consider your needs, and find the layout that truly speaks to you. After all, your home should feel like a reflection of who you are, not just where you live.