Every family deserves a home that works for their lifestyle, and the 4-bedroom ranch house continues to be one of America's most beloved home styles. These single-level homes offer practicality, comfort, and timeless appeal that never goes out of style.
If you've ever dreamed of owning a 4-bedroom ranch house, you're not alone. These homes have been a staple of American suburban life for decades, and for good reason. They're practical, spacious, and designed with families in mind. But what makes a great ranch house floor plan? It's not just about having four bedrooms - it's about creating a space that flows naturally, meets your family's needs, and feels like home.

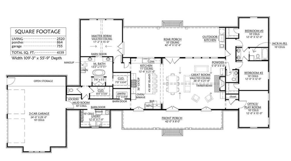
Understanding the Ranch House Foundation
Ranch houses originated in the 1930s and 1940s, designed to provide affordable, functional housing for growing families. The name comes from the flat, horizontal layout that stretches along the land like a ranch. The typical 4-bedroom ranch house features a long, low profile that maximizes natural light and creates an open, airy feel. These homes usually have one story, making them perfect for families with young children or elderly relatives who prefer easy access. The design philosophy behind ranch houses emphasizes indoor-outdoor living, often featuring large windows and expansive porches.

Key Layout Considerations
When designing a 4-bedroom ranch house, several factors come into play. First, consider your family's lifestyle. Do you entertain frequently? Do you need a dedicated office or study? Are you planning to grow your family? The answers to these questions will shape your floor plan. Think about traffic flow too - how do you want people moving through your home? A well-designed ranch house should feel effortless to navigate. The kitchen, dining, and living areas should work together seamlessly. Consider placing the master suite away from the other bedrooms to ensure privacy. Also remember that storage space matters, especially when you're dealing with a family of four.

Master Suite Placement Strategies
The master suite is often the crown jewel of a 4-bedroom ranch house. Where you place it can dramatically affect the entire home's functionality. Many homeowners prefer to put the master suite at the rear of the house, away from the main living areas. This setup provides privacy while keeping the front part of the house open for guests and daily activities. Some designs feature the master suite in the center, creating a natural dividing line between private and public spaces. Others place it at the side, offering a quieter area while still maintaining good connection to the rest of the house. Consider the view from the master bedroom window - does it overlook the backyard or face the street? Both options have their merits.

Kitchen and Living Space Integration
One of the biggest trends in modern ranch house design is the seamless integration of kitchen, dining, and living areas. This open-concept approach creates a more social atmosphere and makes the home feel larger than it actually is. The kitchen should serve as the heart of the home, positioned to allow easy access from the dining room and living room. Think about workflow too - the refrigerator, sink, and stove should be arranged efficiently. Many contemporary ranch houses feature islands or breakfast bars that connect the kitchen to the living area. These elements help create visual continuity and make the space feel more connected.

Bedroom Arrangement Options
Arranging bedrooms effectively is crucial in a 4-bedroom ranch house. The traditional approach places two bedrooms on one side of the house and two on the other. This setup provides good separation between children's rooms and adult spaces. However, some homeowners prefer all bedrooms on one side, leaving the opposite side open for a family room or additional living space. The choice depends largely on your family's needs and preferences. Consider whether you want walk-in closets in each bedroom or if shared bathrooms might work better. Also think about the age of your children - teenagers may want more privacy than younger kids.
Practical Features for Modern Families
Today's 4-bedroom ranch houses incorporate features that make life easier for busy families. Built-in storage solutions are becoming increasingly popular, helping to keep clutter at bay while maintaining clean lines. Mudrooms near the entrance are essential for managing coats, shoes, and outdoor gear. A home office or study can be tucked away in a corner, providing a quiet workspace without sacrificing the home's openness. Consider the placement of laundry facilities - many modern ranch houses feature a washer/dryer in the basement or a convenient location on the main floor. Smart home technology integration is also on the rise, offering convenience and energy savings.
Designing a 4-bedroom ranch house floor plan is both an art and a science. It requires balancing practical needs with aesthetic preferences, considering how your family actually lives and moves through space. Whether you're building a new home or renovating an existing one, remember that the best floor plans are those that reflect your lifestyle. Take time to think through each room's purpose, how people will move through the space, and what makes your family feel comfortable. The result should be a home that not only looks beautiful but also works perfectly for your daily life. After all, a house is more than just bricks and mortar - it's where memories are made and lives are lived.