Picture this: waking up in your own private sanctuary, with your partner doing the same just steps away. That's the magic of a ranch home with two master suites. These layouts aren't just about luxury – they're about creating personal space within the same home. Whether you're planning a new build or remodeling an existing space, understanding how to balance privacy with togetherness is key. Let's explore what makes these designs special and how they can transform your living experience.
When it comes to modern home design, few concepts capture the essence of comfort and personal space quite like the ranch floor plan with two master suites. These homes offer something special – the ability to have your own retreat while still being part of the same family space. The beauty lies in their simplicity and functionality. Imagine having separate bedrooms with private bathrooms, walk-in closets, and even attached patios or balconies. It's like having a private wing within your main house. This setup isn't just about having more space – it's about creating intentional living spaces that honor both individual needs and shared family moments. The question isn't whether you can afford it, but rather how to make the most of this amazing opportunity.
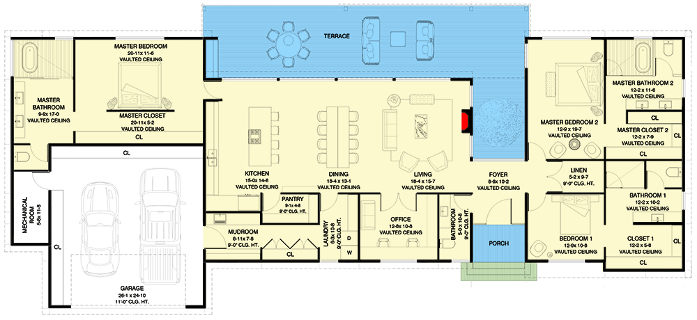
Understanding the Ranch Layout
The classic ranch style has been around for decades, and for good reason. These homes typically feature one story with a long, low profile that stretches horizontally rather than vertically. When you add two master suites to this foundation, you're essentially creating a dual-living concept. The key is how you position these spaces. Often, the two suites are placed on opposite sides of the home, allowing for maximum separation. Think of it like a symmetrical mirror image. One suite might face east with morning light, while the other faces west for evening views. This arrangement creates a sense of balance that feels both comfortable and intentional. The open-concept areas usually remain central, serving as gathering spaces for family meals, entertainment, and shared activities. You get the best of both worlds: individual privacy and family connection. Many people find that this setup makes daily routines easier when everyone has their own designated space. It's less crowded, less stressful, and more manageable overall.
Key Design Considerations
Creating a successful two-master suite ranch requires careful planning. Here are some important factors to consider:

The positioning affects more than just aesthetics. It influences how families move through the home, how much privacy each person gets, and even how much natural light each space receives. Some designers suggest placing one suite near the kitchen area for convenience, while keeping the other closer to the main living areas for social interaction. The right placement can make or break your daily routine. It's worth spending time thinking about how you and your family actually live, not just how you think you'll live.
Practical Benefits and Advantages
There are many reasons why two master suites in a ranch layout are becoming increasingly popular. Let's look at some of the biggest advantages:
These homes also tend to hold their value better in the real estate market. Potential buyers often see the dual-suite layout as a major selling point, especially for growing families or those with specific lifestyle needs. The added privacy can mean the difference between a stressful household and a peaceful one. Plus, it's easier to maintain personal routines and preferences when you're not constantly sharing the same space. Many families report feeling more relaxed and connected because they have their own retreats. It's not just about having more rooms – it's about having better quality of life.
Layout Variations and Popular Styles
Not every two-master suite ranch looks the same. Here are several popular variations:

Symmetrical Layout: Both suites are positioned identically on either side of the main living area. This creates a balanced feel and easy access to shared spaces.
Asymmetrical Layout: One suite is larger or more elaborate than the other, often reflecting different family needs or preferences.
Separate Wing Design: The master suites are on completely separate wings of the house, connected by a central hallway or common area.
Corner Suite Placement: One suite sits in a corner of the home, offering unique views and additional privacy.
Each variation has its own charm and practical benefits. The symmetrical approach works well for couples who want similar setups, while the asymmetrical design allows for personalized touches in each space. Some people love the idea of a separate wing for maximum privacy, especially if they have teenagers or elderly relatives living with them. The corner placement can create dramatic views and unique architectural features. The options are endless, and the right choice depends on your specific family dynamics and lifestyle needs.
Space Optimization Techniques

One challenge with dual master suites is maximizing every inch of space without sacrificing comfort. Here are some smart strategies:
These techniques help maintain the clean, uncluttered look that makes ranch homes so appealing. The goal isn't just to fit everything in, but to create spaces that feel spacious and welcoming. Many homeowners find that they need fewer items when they have better organization systems. It's all about finding the right balance between function and form. The key is to think about what you actually use versus what you think you might use. Sometimes less really is more, especially in a space designed for relaxation and comfort.
Cost Considerations and Budget Planning
Building or renovating a ranch with two master suites does come with additional costs. Here's what to expect:
Budgeting wisely is crucial. Start by determining your priorities – do you want the same level of luxury in both suites, or is one more important than the other? Some people choose to invest more heavily in one suite while keeping the other functional but cozy. Others prefer to split the investment equally. The key is to decide what matters most to your family's daily routine. Consider hiring professionals early in the process to help estimate costs accurately. It's better to have a realistic budget from the start than to face unexpected expenses later. Many builders offer packages that include both suites, which can sometimes save money compared to building them separately.
Maintenance and Long-term Sustainability

Once you've got your dream ranch with two master suites, keeping it looking great requires some thoughtfulness. Here are maintenance tips:
The good news is that well-designed suites tend to age gracefully. With proper care, they can last for decades. The key is to treat each space as a separate entity while maintaining overall harmony in the home. Regular updates to fixtures and finishes can keep both suites feeling fresh and modern. Many homeowners find that they appreciate their dual suites more over time as they learn how to optimize each space for their changing needs. It's an investment that pays off in daily comfort and long-term satisfaction.
Real-Life Examples and Inspiration
Here are some real-world examples that showcase how two master suites can work beautifully in ranch designs:
These stories show how flexible the design can be. Each family has different needs, and the two-master suite ranch adapts to meet them. What works for one family might not work for another, but the underlying principle remains the same – creating intentional, comfortable spaces that support daily life. The beauty is in the customization. Every family has its own rhythm, and these homes can be tailored to match that rhythm perfectly.
Future-Proofing Your Design

Thinking ahead is important when designing a home with two master suites. Consider how your needs might change over time:
Future-proofing doesn't mean over-engineering, but rather making thoughtful choices that will serve you well for decades. Many people find that they're grateful for features they didn't initially think were important – like extra electrical outlets for technology or easy-access storage areas. The key is balancing current needs with potential future changes. Some homeowners add features like roll-under sinks or grab bars now, knowing they'll be useful later. It's about making smart investments in your home's long-term comfort and value.
Making the Right Choice for Your Family
Choosing a ranch floor plan with two master suites is ultimately about aligning your home design with your family's lifestyle. Ask yourself these questions:
If you answered yes to several of these, a dual-master suite ranch might be perfect for you. It's not just about having more space – it's about having the right kind of space for your life. Consider visiting model homes or speaking with architects who specialize in this type of design. Sometimes seeing a well-executed example helps clarify what you really want. Don't rush the decision. Take time to think about how you want to live, what challenges you currently face, and what solutions would truly improve your quality of life. The right design can transform your daily experience in ways you never expected.
A ranch floor plan with two master suites represents more than just architectural choice – it's a lifestyle decision. These homes offer a unique combination of privacy, flexibility, and shared space that suits many modern families. Whether you're planning a new construction project or remodeling an existing home, the key is to design with intention. Consider your family's current needs and future possibilities. Think about how you want to live, what brings you joy, and where you want to spend your time. The two-master suite ranch gives you the freedom to create intentional living spaces that honor both individual needs and family connection. It's not about having the biggest house – it's about having the right house for your life. When done thoughtfully, this design approach can create lasting happiness and comfort for years to come. The investment in planning and execution pays dividends in daily peace and long-term satisfaction.