There's something deeply satisfying about a well-designed ranch home. It's not just about the layout – it's about creating space that feels lived-in, lived-well, and completely comfortable. For many families, especially those looking to build or renovate, 2 bedroom ranch style house plans offer the perfect balance between functionality and affordability.
When it comes to home design, few styles have stood the test of time quite like the ranch house. These homes, with their low-profile appearance and open floor plans, have been a favorite among homeowners for decades. The 2 bedroom ranch style house plan represents a particularly popular choice for those wanting a simple yet effective living arrangement. Whether you're planning a new construction project or thinking about a renovation, understanding what makes these plans work so well can save you time, money, and a lot of headaches. Let's dive into the heart of what makes 2 bedroom ranch homes so appealing and how you can make the most of these designs.
What Makes a Ranch Style Home Special?
Ranch homes have a unique charm that sets them apart from other architectural styles. They typically feature a single story with a long, low profile that hugs the landscape. This design creates several benefits that appeal to many homeowners.
The open floor plan is one of the biggest draws. Unlike multi-story homes where rooms are separated by stairs, ranch homes often flow together seamlessly. You'll find the kitchen, dining area, and living room all connected in one large, welcoming space. This setup works wonderfully for families who want to spend time together.
Another advantage is the way these homes maximize natural light. With fewer walls and often large windows, ranch homes tend to feel bright and airy. The horizontal lines of the design also create a sense of spaciousness even when the square footage isn't enormous.
Let's talk about practicality. Ranch homes are designed with accessibility in mind. No stairs means easier movement for elderly family members or young children. This is particularly important if you're planning for future needs or want to ensure your home remains comfortable for everyone.
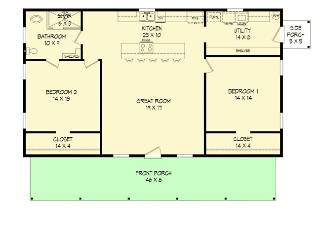
Key Features of 2 Bedroom Ranch Plans
A well-thought-out 2 bedroom ranch plan includes several essential elements that make life easier and more enjoyable:

Benefits of Choosing a 2 Bedroom Ranch Plan
There are many compelling reasons why a 2 bedroom ranch plan might be your best bet:
Cost Effectiveness: These homes generally cost less to build than larger options. The simpler structure and fewer materials mean lower construction costs. Additionally, they're easier and cheaper to maintain over time.
Energy Efficiency: With fewer walls and a straightforward design, ranch homes often heat and cool more efficiently. This translates to lower utility bills and a more comfortable home year-round.
Easy Maintenance: One story means no stairs to climb when you're tired or carrying groceries. This simplicity extends to cleaning, repairs, and general upkeep.
Family-Friendly Design: The open layout allows parents to keep an eye on children while cooking, reading, or relaxing. It also provides flexibility for growing families who might need extra space later.
Quick Construction: Because of their simple design, 2 bedroom ranch homes can often be built faster than more complex structures. This can be a major advantage if you're moving into a new home quickly.
Design Considerations and Layout Options
Every ranch home plan offers different possibilities based on your lifestyle and preferences. Here are some common layouts you might encounter:

Front-Facing Layout: In this arrangement, both bedrooms face the front of the house. This works well if you want guest rooms or if you prefer having your sleeping areas closer to the entrance.
Backward Layout: Sometimes the bedrooms are positioned toward the back of the house, allowing for more open space in the front. This setup can provide better views or easier access to outdoor areas.
Central Kitchen Placement: Many ranch plans feature the kitchen in the center of the home. This location helps connect all the main living areas and keeps the flow of activity centralized.
Split Bedroom Design: Some plans separate the master bedroom from the other bedroom. This creates more privacy and can be ideal for households with different schedules or needs.
When considering your layout, think about how you move through your home daily. Where do you spend most of your time? How do you want to interact with family members? These questions will help guide your decision.
Space Optimization Tips for Small Homes
One of the biggest challenges with 2 bedroom ranch plans is maximizing every inch of available space. Here are some strategies that work really well:
Multi-Purpose Furniture: Look for pieces that serve multiple functions. A coffee table with hidden storage can hold books and games while providing surface space. A dining table that converts to a work desk is another smart investment.
Vertical Storage Solutions: Don't forget about walls! Built-in shelving, tall cabinets, and wall-mounted organizers can dramatically increase your storage capacity without taking up floor space.

Smart Use of Nooks: Every home has little corners or unused spaces. A window seat in a hallway or a small reading nook can provide both function and comfort.
Light Colors and Reflective Surfaces: Light colors make spaces appear larger and brighter. Mirrors, glossy finishes, and reflective surfaces can enhance this effect.
Declutter Regularly: This might sound obvious, but regular organization and decluttering make a huge difference in how spacious a home feels.
Common Mistakes to Avoid When Planning
Planning a home can be exciting, but there are some pitfalls that many people fall into when designing their 2 bedroom ranch plans:
Popular Features in Modern 2 Bedroom Ranch Plans
Modern ranch home plans have evolved to meet current lifestyle needs while maintaining their classic appeal:
Smart Home Integration: Today's ranch homes often include smart home features like programmable thermostats, security systems, and automated lighting. These technologies make daily living more convenient and efficient.
Sustainable Materials: Many builders now use eco-friendly materials and energy-efficient appliances. Solar panels, energy-efficient windows, and sustainable flooring options are becoming standard features.

Updated Kitchen Designs: Modern kitchens feature high-quality appliances, granite or quartz countertops, and thoughtful layouts. These spaces often include breakfast bars, walk-in pantries, and plenty of counter space.
Master Suite Enhancements: Even in 2 bedroom plans, the master suite often gets special attention with private bathrooms, walk-in closets, and comfortable seating areas.
Flexible Living Spaces: Contemporary ranch homes often include spaces that can adapt to changing needs. A study that becomes a home office, or a den that doubles as a playroom, adds versatility to smaller homes.
Budget Considerations and Cost Factors
Understanding the financial side of building a 2 bedroom ranch home is crucial for planning success:
Construction Costs: The average cost per square foot for a ranch home ranges from $150 to $300, depending on location and finishes. This includes basic construction, utilities, and standard features.
Land Costs: Don't forget that land prices vary significantly by location. Rural areas might offer affordable lots, while urban locations can drive up overall costs substantially.
Customization Expenses: Adding features like custom cabinetry, premium flooring, or special architectural details will increase costs. It's helpful to prioritize what matters most to you.
Permit and Inspection Fees: These are often overlooked but necessary expenses. They typically range from a few hundred to several thousand dollars depending on local requirements.

Contingency Funds: Always budget 10-15% extra for unexpected issues. These can include foundation problems, weather delays, or material price fluctuations.
Choosing the Right Builder or Designer
Selecting the right professional for your 2 bedroom ranch home project is critical to success:
Experience Matters: Look for someone with experience specifically with ranch-style homes. They'll understand the unique challenges and opportunities these designs present.
Communication Style: Choose a builder who listens to your needs and explains the process clearly. Good communication prevents misunderstandings and keeps projects on track.
References and Portfolio: Ask to see examples of their previous work, especially ranch homes similar to what you envision. This gives you a realistic idea of their capabilities.
Contract Clarity: Make sure all agreements are detailed and clear. Understand what's included in the base price and what might incur additional charges.
Timeline Expectations: Get a realistic timeline for construction. Factor in potential delays and build in buffer time for unforeseen circumstances.
Final Thoughts on 2 Bedroom Ranch Plans
Whether you're building a new home or renovating an existing one, 2 bedroom ranch style house plans offer a solid foundation for comfortable living. Their timeless appeal, practical design, and manageable size make them ideal for many different lifestyles and budgets. The key is to approach the planning process thoughtfully, considering both current needs and future possibilities.
Remember, the best house plan isn't necessarily the most expensive one – it's the one that fits your family's needs, supports your lifestyle, and brings you joy. Take time to explore different layouts, consult with professionals, and trust your instincts. After all, your home should reflect who you are and how you choose to live.
The 2 bedroom ranch style house plan continues to be a reliable choice for homeowners seeking comfort, functionality, and value. By understanding the core principles of these designs and avoiding common pitfalls, you can create a space that truly works for your family. Whether you're drawn to the classic charm or modern updates, these homes offer a path to creating a place where you and your loved ones can thrive. The beauty of ranch homes lies not just in their structure, but in how they support the everyday moments that make a house feel like a true home.