The ranch style house has been a beloved American architectural choice for decades. But what happens when you take that classic open-concept layout and give it a modern twist? The result is something special – a home that honors tradition while embracing today's lifestyle needs. Whether you're building from scratch or renovating, understanding how to blend timeless ranch elements with contemporary features can transform your living space.
Ranch homes have always had a special place in American hearts. They offer a sense of comfort, openness, and easy living that many families crave. But the modern ranch isn't just about nostalgia – it's about creating spaces that work with our current lives. Today's ranch style floor plans incorporate smart technology, sustainable materials, and flexible spaces that adapt to changing family dynamics. Think about it – how many of us want a home that feels both grounded and forward-thinking?
What Makes a Modern Ranch Style Different

Modern ranch style homes aren't just older ranches with updated fixtures. They've evolved to meet today's expectations. Let's break down what separates them from traditional designs:
The beauty of modern ranch style is that it combines the best of both worlds – the warmth of traditional ranch design with the functionality and aesthetics of contemporary architecture. You'll notice that these homes often feature clean lines, minimal ornamentation, and a focus on practicality over formality.
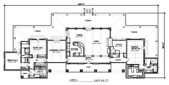
Key Features of Contemporary Ranch Layouts

When you look at successful modern ranch floor plans, certain elements stand out consistently:
These layouts work particularly well for families with children or those planning for future generations. Consider a family room that could double as a guest bedroom, or a study that might become a home office. The flexibility is one of the biggest draws of the modern ranch approach.
Practical Benefits of Modern Ranch Floor Plans

There are several advantages to choosing a modern ranch style for your home:
Think about a typical day in your household. How many times do you find yourself moving between rooms? In a ranch-style home, that movement becomes effortless. You can prepare dinner while keeping an ear out for kids playing in the living area. It's all about creating spaces where life naturally flows.
Design Elements That Define Modern Ranch Homes

Certain design choices really define the modern ranch aesthetic:
The key is balancing simplicity with sophistication. You won't find ornate trim or elaborate moldings in most modern ranch homes. Instead, you'll see carefully chosen details that enhance the space without overwhelming it. This approach creates a sense of calm and order that many homeowners find appealing.
Common Mistakes in Modern Ranch Planning

Even experienced designers sometimes fall into traps when planning modern ranch homes:
One common error is trying to make every room serve multiple purposes at once. While flexibility is important, overdoing it can create confusion. It's better to have clearly defined zones that can still accommodate change over time.
Tips for Creating Your Perfect Modern Ranch Layout
Here are some practical steps to help you design your ideal modern ranch space:
Remember that good design isn't about following trends – it's about creating spaces that serve you well. Test your layout with family members, and don't be afraid to adjust based on real-world usage. Sometimes the best solution isn't the most obvious one.
Modern ranch style floor plans represent more than just a housing trend – they embody a philosophy of comfortable, functional living. These homes offer the perfect balance between tradition and innovation, providing spaces that grow with your family and adapt to changing times. Whether you're building a new home or renovating an existing one, embracing the principles of modern ranch design can create a living environment that truly works for your lifestyle. The key is to focus on what matters most to you and let that guide your design decisions. After all, your home should reflect your values and support the way you want to live.