Picture this: a cozy, self-contained space that offers privacy and comfort for visitors while seamlessly blending with your existing home. That's exactly what 2 bedroom guest cottages can provide. These charming little homes have become increasingly popular because they offer the best of both worlds - separate living quarters for guests, plus the convenience of being part of your main property.
When you think about adding extra living space to your property, a 2 bedroom guest cottage might just be the answer you've been searching for. These compact yet functional dwellings serve multiple purposes - they can accommodate family members, provide rental income, or simply offer a quiet retreat for friends and relatives. The beauty of these designs lies in their versatility and the thoughtful planning that goes into creating spaces that feel both spacious and intimate.
Understanding the Basics of 2 Bedroom Guest Cottage Layouts

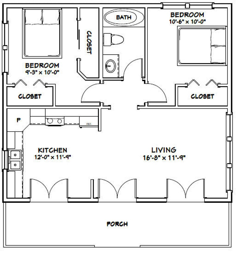
A good 2 bedroom guest cottage starts with understanding what makes a layout work well. Think about how people will move through the space - from the front door to the kitchen, then to the bedrooms, and finally to the bathroom. A well-designed floor plan ensures that each area flows naturally into the next. You'll want to consider traffic patterns carefully. The kitchen should be easily accessible from the living area, while bedrooms need to be separated enough to provide privacy but close enough to maintain connection with the rest of the house.
Many successful layouts feature an open-concept living area that connects to the kitchen, creating a sense of spaciousness even in smaller spaces. This approach works particularly well when the cottage is designed to complement rather than compete with the main house. The key is creating distinct zones within a compact footprint.
Essential Features Every 2 Bedroom Guest Cottage Needs

What really makes a 2 bedroom guest cottage special? It's not just about square footage - it's about thoughtful design elements that enhance daily life. Here are some must-have features:
Consider how often you'll use the space. If it's primarily for overnight guests, you might prioritize comfort over luxury. But if it's meant for extended stays or as a rental, investing in quality fixtures and appliances becomes more important.
Size and Space Considerations

The average size for a 2 bedroom guest cottage ranges from 600 to 1,200 square feet. That might seem small, but clever design can make every inch count. When planning, remember that people often underestimate how much space they actually need. A 700-square-foot cottage with smart storage solutions and multi-functional furniture can feel much larger than a 1,000-square-foot space with poor organization.
Think about the relationship between rooms. In a 2 bedroom layout, the master bedroom typically gets priority in terms of size and positioning. The second bedroom can be smaller but still comfortable. The kitchen and living area combined should provide enough space for casual dining and socializing. Remember to account for hallways and circulation space too.
Popular Design Styles for Guest Cottages

There are several design approaches that work beautifully for 2 bedroom guest cottages. Each style brings its own personality and charm to the space:
The choice of style should reflect your personal taste and match your main home's aesthetic. You don't want the guest cottage to look like it came from a different era or neighborhood.
Budget Planning for Your Guest Cottage Project

Building or renovating a 2 bedroom guest cottage requires careful financial planning. Costs can vary significantly based on materials, labor, and complexity of the project. On average, expect to spend between $150 and $300 per square foot for construction. That means a 900-square-foot cottage could cost anywhere from $135,000 to $270,000.
Here are some budget-saving strategies:
Remember that the investment often pays off in increased property value and the joy of having a dedicated guest space.
Practical Tips for Success
Creating the perfect 2 bedroom guest cottage involves more than just choosing a layout. Here are some practical considerations that make all the difference:
The most successful guest cottages are those that consider not just what they look like, but how they function in real life. Think about who will use the space and how frequently. This helps determine whether you need a more permanent setup or something more temporary.
Designing a 2 bedroom guest cottage isn't just about creating another room in your house - it's about crafting a space that brings joy and functionality to your life. Whether you're planning for family visits, generating rental income, or simply wanting a quiet getaway, these thoughtful designs offer incredible value. The key is starting with clear goals, considering practical needs, and allowing room for personal touches that make the space uniquely yours. With proper planning and attention to detail, your guest cottage can become one of the most cherished parts of your property.