Picture this: you wake up in the morning, step out of your bedroom, and immediately find yourself in the heart of your home's daily life. No stairs, no climbing, just smooth transitions between spaces. That's the magic of a 1 story 3 bedroom house plan. It's not just about having three bedrooms – it's about creating a space where family life flows effortlessly, where accessibility isn't a luxury but a necessity, and where every room serves a purpose.
When you think about homes that offer both comfort and practicality, single-story houses often come to mind. They're particularly popular among families who want easy access to all areas of their home, seniors looking for safer living arrangements, and anyone who simply prefers the convenience of one floor. A 1 story 3 bedroom house plan represents the sweet spot between spaciousness and manageability. These designs can range from cozy, intimate spaces to expansive, modern homes that feel like they belong in a magazine. The beauty lies in how they balance functionality with aesthetic appeal, offering a sense of openness while maintaining intimacy.
Understanding the Basics of 1 Story 3 Bedroom House Plans

A 1 story 3 bedroom house plan essentially means you have one main level with three bedrooms, typically including a master suite. This type of home design eliminates the need for stairs, which makes it incredibly appealing for various lifestyle needs. When you're planning a 1 story 3 bedroom house, you're essentially creating a floor plan that maximizes space efficiency. The kitchen, dining area, and living spaces are usually grouped together on the main level, making it easy for everyone to gather and interact.
These house plans can vary significantly in size, from compact 1,200 square feet homes to larger 2,500+ square feet designs. The key is finding the right balance between having enough space for your family's needs and staying within your budget constraints. You'll often see layouts that feature open-concept living areas, which means fewer walls and more flowing spaces. This approach not only makes the home feel larger but also creates a better environment for socializing and family activities.
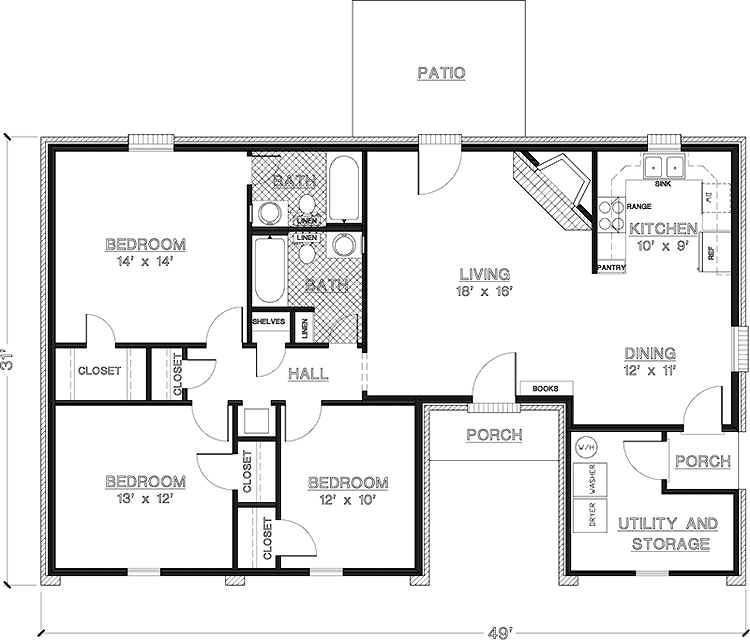
Popular Layouts and Design Features

There are several common layouts for 1 story 3 bedroom house plans, each offering unique advantages. Let's look at some of the most popular options:
Each of these layouts offers its own benefits, and choosing the right one depends on your family's specific requirements and lifestyle preferences.
Key Considerations for Space Planning

When designing or selecting a 1 story 3 bedroom house plan, several factors deserve careful attention:
These considerations help ensure your 1 story 3 bedroom house plan not only meets current needs but also adapts well to future changes.
Cost Factors and Budget Planning

Building or buying a 1 story 3 bedroom house can vary widely in price depending on several factors. Here's what to expect:
Many homeowners find that starting with a basic 1 story 3 bedroom house plan and adding features later is a smart financial strategy. This allows them to build their dream home without overwhelming their budget upfront.
Accessibility and Universal Design Elements

One of the biggest advantages of 1 story 3 bedroom house plans is their inherent accessibility. Without stairs, these homes are ideal for:
Universal design principles can further enhance accessibility:
These thoughtful touches make a significant difference in how comfortable and secure residents feel in their living environment.
Practical Tips for Choosing the Right Plan
Selecting the perfect 1 story 3 bedroom house plan involves considering multiple aspects:
Remember, the best plan is one that fits your family's needs today and tomorrow. Take your time evaluating options, visiting model homes if possible, and don't hesitate to ask questions about modifications or customizations.
A 1 story 3 bedroom house plan offers more than just a place to live – it provides a foundation for a lifestyle that values simplicity, accessibility, and connection. Whether you're planning to build a new home or renovate an existing one, understanding the basics of these designs can help you make informed decisions. From thoughtful layout planning to considering future needs, every element contributes to creating a space where your family can thrive. The key is balancing practicality with personal style, ensuring that your chosen design reflects not just your taste, but also your way of life. With careful consideration and professional guidance, you can transform your vision of the perfect single-level home into reality. The journey to your dream home starts with understanding what works best for you and your family.