In a world where housing costs keep climbing and space becomes more precious, 1000 square foot homes offer a refreshing alternative. These compact spaces aren't just about saving money – they're about creating intentional living spaces that work perfectly for modern lifestyles. Whether you're a young professional, empty nester, or someone who simply appreciates clean, uncluttered spaces, these small homes can offer everything you need and more.
Think about it – when was the last time you found yourself truly needing a 2000+ square foot home? Most of us spend our days working, cooking, relaxing, and entertaining in spaces much smaller than what we might have imagined. The 1000 square foot home plan isn't just about being small – it's about being smart. It's about choosing quality over quantity, focusing on what matters most, and designing spaces that feel spacious despite their modest size. You might be surprised how much joy and functionality can fit into just 1000 square feet.
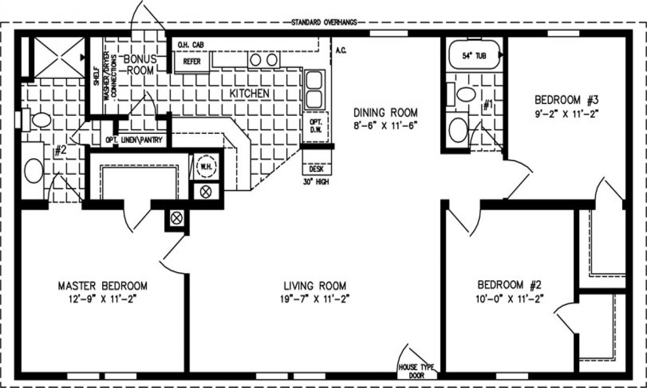
Understanding the 1000 Square Foot Constraint
When you're working with exactly 1000 square feet, every single square foot counts. This isn't just a limitation – it's a creative challenge that pushes designers and homeowners to think differently. Consider that 1000 square feet equals roughly 10 feet by 100 feet, or 25 feet by 40 feet. That's a lot of space to work with, but it's also a tight squeeze if you're not careful. The key lies in understanding how to make the most of your layout.
What does 1000 square feet actually mean for daily life?

This constraint forces you to be intentional about your needs. Do you really need a separate dining room? Is a walk-in closet essential? What activities happen most often in your home? These questions become crucial when planning your 1000 square foot space.
Core Layout Strategies for Maximum Functionality
Designing a 1000 square foot home requires thinking beyond traditional room definitions. The concept of open floor plans becomes incredibly important, but it's not just about removing walls – it's about creating zones that feel distinct even when they're physically connected. Here's how to approach the big picture:
One thing many people overlook is that 1000 square feet is actually enough for a comfortable lifestyle. The trick is in the design and the intention behind it.
Essential Room Configurations

Let's break down what makes a 1000 square foot home work. The key is prioritizing what's most important to your lifestyle and designing around those needs.
The Kitchen & Dining Combination: This should be the heart of your home. With 1000 square feet, you want this space to feel welcoming and functional. Consider a galley-style kitchen with an island that serves as both prep space and informal dining. This setup maximizes workflow and creates conversation areas.
Bedroom Considerations: Even in a small space, you still need a proper bedroom. Think about sleeping arrangements that work for your lifestyle. A master suite with a walk-in closet is possible, but it might require some creative thinking about space allocation.
Bathroom Planning: This is often where people get creative with small spaces. Consider a powder bath that's part of a hallway, or a master bath that incorporates a shower and toilet in one efficient unit.
Living Areas: The living room should feel cozy and inviting. You might consider a built-in seating area or a flexible space that can adapt for different activities. Sometimes, a small den or study area tucked away works well for quiet activities like reading or working.

Creative Storage Solutions
Storage in small spaces is not just about having more room – it's about smart organization and creative thinking.
Here are some approaches that work particularly well:
The goal isn't just to store things – it's to make your home feel organized and peaceful. When you can see what you need and know exactly where it lives, you'll find that the small space feels much larger.
Lighting and Visual Tricks

Lighting plays a huge role in how spacious a 1000 square foot home feels. Poor lighting can make even the largest space feel cramped, while good lighting can make a small room feel airy and expansive.
Consider these strategies:
It's amazing how much difference good lighting can make. A poorly lit 1000 square foot home can feel claustrophobic, while a well-lit version can feel open and welcoming.
Cost Considerations and Budget Tips
Building or renovating a 1000 square foot home involves specific financial considerations.

Here are some key budget factors to consider:
Remember that building a 1000 square foot home isn't necessarily cheaper than a larger one – it's just different. The key is making smart decisions about where to spend money and where to save it.
A 1000 square foot home isn't just about fitting everything into a small space – it's about creating a life that fits perfectly within that space. These homes encourage us to focus on what truly matters, to live more intentionally, and to appreciate the beauty of simplicity. When you're not overwhelmed by unnecessary space, you can truly enjoy the details that make a home feel like a sanctuary.
Whether you're considering building a new 1000 square foot home, renovating an existing space, or simply trying to make the most of your current situation, remember that the key is intentionality. Every element should serve a purpose, and every decision should contribute to a life that feels full and satisfying.
The future of housing might very well be about doing more with less. And 1000 square feet gives you the perfect canvas to explore that idea. You might be surprised at how much joy and comfort can fit into a space that's just right for you.