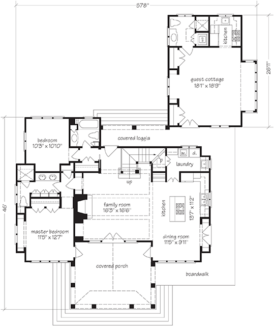
When you think about adding extra living space to your home, the idea of including a separate guest house right next to your main residence might seem like a dream. But what exactly makes these designs so special? What goes into creating a seamless blend between your primary home and a secondary living area? Let's explore how combining these spaces can transform your lifestyle and property value.
Picture this: You're hosting family members or friends for the weekend, and instead of scrambling to find a place for them to stay, you have a cozy, self-contained guest house just steps away from your main home. It's not just convenient—it's practical and stylish too. This concept isn't new, but it's gaining popularity among homeowners who want to maximize their space while maintaining privacy. Whether you're planning a new build or looking to renovate, understanding how to incorporate a guest house into your house plan can be game-changing. These designs offer flexibility, security, and often boost your home's market value significantly.
Why Choose an Attached Guest House?
There are several compelling reasons why homeowners opt for an attached guest house rather than a standalone structure. First off, it creates a sense of community within your property. Family members can easily visit each other without crossing busy streets or navigating long walks. Second, it's incredibly practical for guests. They don't have to deal with the hassle of driving to a distant location or worrying about parking. Third, it offers better security since everyone is on the same property. Plus, there's something deeply satisfying about having a dedicated space for visitors that feels both private and connected to your main home.
Consider the scenario where you're hosting a large family gathering. With an attached guest house, your relatives can have their own kitchen and bathroom facilities, yet still enjoy easy access to your main living areas. It's a win-win situation that many find appealing. Some even see it as a way to generate income if they rent out the guest house when they're not using it.
Design Considerations for Integration
The secret to successful integration lies in thoughtful design. Start by examining how the guest house will connect to your main home. Will there be a shared wall, or will they be separated by a small courtyard? The connection should feel intentional rather than forced. Many designers suggest using similar materials and architectural styles to ensure visual harmony.
Think about traffic flow. How will guests move between the two spaces? Are there doors that open directly from your main living room to the guest house? These details matter more than you might expect. When people feel comfortable moving between spaces, it enhances the overall experience. Also consider the placement of utilities. Do you want the guest house to share heating and cooling systems with the main home? That's definitely possible and can save money in the long run.

One common mistake is overlooking lighting. Natural light plays a huge role in making spaces feel welcoming. Ensure that both areas receive adequate sunlight, especially if the guest house is meant to be used for extended stays. Sometimes, a simple skylight or larger windows can make all the difference in how the space feels.
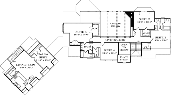
Layout Options and Functional Spaces
The layout of your attached guest house can vary dramatically depending on your needs. Here are some popular configurations:
Each style comes with its own advantages and considerations. For instance, a studio setup works well if you're looking to keep costs low and need minimal maintenance. On the other hand, a full apartment design might be worth the investment if you frequently entertain guests or want to provide a comfortable environment for extended visits.
Many homeowners choose layouts that mirror their main home's aesthetic. This consistency helps create a cohesive look and feel throughout the property. It also means that guests won't feel like they've entered a completely different world when they step into the guest house.
Practical Benefits Beyond Comfort
Beyond the obvious comfort factor, there are numerous practical benefits to having an attached guest house. One major advantage is increased property value. According to recent real estate trends, homes with guest houses typically sell for higher prices than comparable properties without this feature. It's essentially an added asset that potential buyers appreciate.
Another benefit is flexibility. If you're planning to grow your family or accommodate aging parents, having a separate living space provides solutions without requiring major renovations. It also allows for more privacy when needed. You can use the main home for entertaining while keeping the guest house quiet for rest or study.

From a financial standpoint, guest houses can serve as rental units. Many homeowners rent out their guest houses during peak seasons or when they're traveling. It's a great way to offset housing costs or even generate additional income. Just make sure to check local zoning laws before proceeding with any rental plans.
Additionally, these spaces often require less maintenance than entire second homes. Since they're integrated into your existing property, you can manage them more efficiently and avoid the complexities of managing separate lots.
Building Codes and Legal Requirements
Before diving into construction or renovation, it's crucial to understand the legal requirements. Building codes vary significantly by location, and many areas have specific rules about attached guest houses. Start by contacting your local building department to learn about permits required and restrictions on size, height, and placement.
Some jurisdictions require that guest houses meet the same standards as the main home regarding fire safety, electrical systems, plumbing, and accessibility features. Others may have more lenient rules, particularly if the guest house is under a certain square footage.
Don't forget about setback requirements. These dictate how far from property lines your structure must be built. Violating these rules can lead to costly legal issues down the road. It's always better to invest time upfront in understanding regulations than face unexpected problems later.
Also consider the impact on your home insurance. Having a separate structure attached to your main home may change coverage requirements. Some insurers offer specialized policies for guest houses, while others might simply add them to your existing policy. It's worth discussing options with your insurance agent early in the process.
Cost Analysis and Budget Planning

The cost of building or converting a guest house varies widely based on factors such as size, materials, complexity, and location. Generally speaking, you can expect to spend anywhere from $30,000 to $150,000+ for a basic attached guest house. However, this number can fluctuate significantly depending on your region and specific design choices.
Let's break it down a bit more. Basic construction costs include framing, roofing, siding, and basic interior finishes. These typically range from $100 to $200 per square foot. If you're planning to include high-end features like custom cabinetry or premium appliances, costs can easily double or triple.
Labor costs also play a big role. In some areas, skilled craftspeople charge $50-$80 per hour, while in others, rates might be much lower. Factor in permits, utility connections, and potential site preparation when budgeting. Sometimes, the biggest surprise comes from unexpected site conditions like underground utilities or soil issues.
It's wise to set aside 10-15% of your total budget for unforeseen expenses. Construction projects rarely go exactly according to plan. Having a contingency fund ensures you won't be caught off guard when things don't work out as expected. Remember, investing in quality materials and skilled labor now can save you money on repairs and replacements later.
Planning and Implementation Tips
Getting started on an attached guest house project requires careful planning. Begin with sketching out your vision. Consider what activities will take place in the space. Will it be primarily for sleeping, entertaining, or working? Knowing this helps determine the necessary features and layout.
Create a detailed list of your priorities. Is privacy more important than convenience? Do you want the guest house to blend seamlessly with your main home or stand out as a distinct space? These decisions influence everything from material selection to window placement.
Consider hiring professionals early in the process. An architect or designer familiar with guest house construction can help navigate challenges and ensure your plans align with local codes. They can also provide valuable insights on maximizing space efficiency and incorporating modern amenities.

If you're doing some of the work yourself, focus on tasks that don't require specialized skills. Painting, installing fixtures, and landscaping are often manageable DIY projects. Leave the structural work and electrical plumbing to experts.
Finally, don't rush the timeline. Rushed projects often lead to poor results. Allow time for approval processes, material ordering, and unexpected delays. A well-planned project typically takes 6-12 months from initial planning to completion, depending on complexity and weather conditions.
Maintenance and Long-Term Care
Once your attached guest house is complete, regular maintenance becomes essential to preserve its value and functionality. Schedule annual inspections to catch potential issues before they become expensive problems. Check for signs of water damage, pest infestations, or wear in flooring and walls.
Keep a maintenance logbook to track routine tasks like cleaning gutters, changing HVAC filters, and servicing appliances. This documentation proves invaluable when selling the property or dealing with insurance claims.
Consider seasonal care. During winter months, ensure proper insulation and heating systems function correctly. In summer, verify that cooling systems and screens are working properly. Regular cleaning prevents buildup of dirt and grime that can affect appearance and air quality.
Think about future updates. As technology advances, newer features might enhance your guest house's appeal. Plan for gradual improvements rather than waiting until everything needs replacement. Small upgrades over time can extend the life of the space and keep it feeling fresh and modern.
Real-Life Examples and Case Studies

To get a better understanding of what's possible, let's look at some real-world examples. One homeowner in California transformed their backyard into a beautiful guest house featuring a modern design with floor-to-ceiling windows and a private deck. The space includes a full kitchen, bathroom, and living area, making it suitable for extended stays.
Another example involves a family in Texas who built a guest house that doubles as a workshop. They designed it with a garage-style entrance and included storage space for tools and equipment. This dual-purpose approach maximizes the utility of the space while providing privacy for guests.
A third case study focuses on a couple in Florida who created a guest house that mirrors their main home's architectural style. They chose matching materials and color schemes to ensure visual continuity. The result was a space that felt like a natural extension of their property.
These examples show how personal preferences and lifestyle needs shape guest house designs. What matters most is finding a solution that fits your unique situation and goals.
Future Trends and Innovations
Looking ahead, several trends are shaping how attached guest houses are designed and constructed. Sustainability is becoming increasingly important, with many homeowners choosing eco-friendly materials and energy-efficient systems. Solar panels, rainwater collection systems, and smart thermostats are becoming standard features.
Smart home technology is also making its way into guest houses. Automated lighting, temperature controls, and security systems allow homeowners to monitor and control their guest spaces remotely. This technology adds convenience and peace of mind for both hosts and guests.
Modular construction techniques are gaining popularity because they offer faster installation and reduced costs compared to traditional methods. These prefabricated modules can be customized to fit specific needs and integrated seamlessly with existing structures.
Flexible design concepts are also emerging, where spaces can adapt to different uses throughout the year. For instance, a guest house might serve as a home office during weekdays and transform into a relaxation area during weekends. These adaptable designs reflect changing lifestyles and increasing demand for multifunctional spaces.
An attached guest house represents more than just additional living space—it's a thoughtful investment in your home's future. Whether you're planning to host frequent visitors, accommodate aging family members, or simply want to maximize your property's potential, these designs offer practical solutions that enhance both comfort and value. By carefully considering design elements, legal requirements, and long-term maintenance, you can create a space that serves you well for years to come. The key is starting with clear intentions and allowing enough time for proper planning and execution. With the right approach, your attached guest house can become one of the most cherished parts of your home, offering both functionality and joy to everyone who uses it.