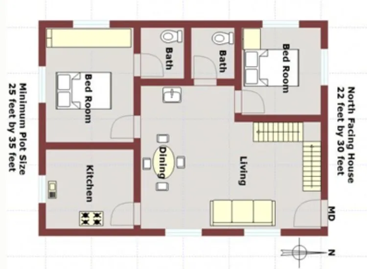
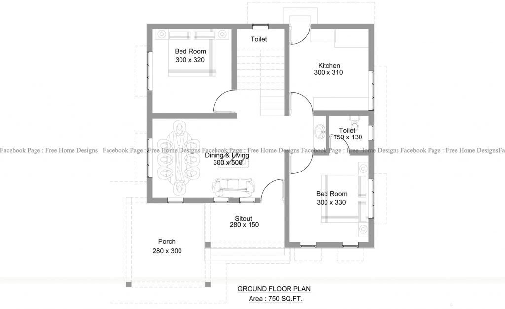
In a world where housing costs keep climbing and space becomes more precious, 750 square foot house plans have emerged as a powerful solution. These compact homes pack a punch when it comes to functionality and comfort. Think of them as the perfect balance between small living and spacious living. They're not just about saving money—they're about creating intentional, efficient spaces that feel like home.
When you think about tiny houses, the numbers often come up: 400, 600, maybe even 800 square feet. But there's something magical about that sweet spot of 750 square feet. It's big enough to breathe, small enough to manage. This size strikes a perfect balance that many people find appealing. Whether you're downsizing, saving for retirement, or simply want to live more intentionally, 750 square foot house plans offer a compelling option. These homes aren't just about being small—they're about being smart about space. They're designed to maximize every inch while maintaining comfort and functionality. Imagine having a kitchen that's cozy but fully functional, a bedroom that feels spacious, and a bathroom that's practical yet pleasant. That's what 750 square foot house plans promise—and deliver.
Why Choose 750 Square Feet?
There's a reason why 750 square feet has become such a popular choice among tiny home enthusiasts. Let's break down what makes this size special.
The math is simple: 750 square feet gives you room for everything you really need, plus a little extra for surprises. It's the kind of space that feels comfortable rather than cramped, and that matters more than the number of square feet itself.
Essential Design Elements
Designing a 750 sq ft house requires careful planning and creative thinking. Here are the must-have elements that make these homes work beautifully:
Open Floor Plan: One of the biggest advantages of small space design is the ability to create an open layout. This isn't just about aesthetics—it's about making the most of limited space. When walls aren't necessary, you can create a seamless flow between living areas, dining, and kitchen spaces.
Multi-Purpose Rooms: In a 750 sq ft home, every room needs to serve multiple functions. A living area might double as a workspace during the day and a sleeping area at night. Think about how you use your space and design accordingly.

Vertical Storage Solutions: Don't let the ceiling go to waste. Built-in shelving, lofted sleeping areas, and high cabinets can dramatically increase storage without taking up floor space. Many successful 750 sq ft plans feature walls that extend all the way to the ceiling.
Smart Layouts: The placement of rooms matters more than ever in a small space. The kitchen should be easily accessible from the living area, and the bathroom should be close to bedrooms. Everything needs to flow naturally.
Kitchen and Dining Integration
In a 750 sq ft home, the kitchen and dining area often become one seamless zone. This isn't just about saving space—it's about creating a social hub for your home.
Compact Kitchen Features: Look for appliances that are designed for small spaces. A single-burner stove, a mini-fridge, and a small sink can be perfectly adequate for most people. Consider a kitchen island that doubles as dining space. It creates a natural gathering point and adds visual interest.
Storage Solutions: Every inch counts in a small kitchen. Pull-out drawers, overhead cabinets, and corner solutions can help you store everything you need without cluttering the visible space. A good kitchen layout will make cooking and eating feel effortless.
Dining Area: Don't overlook the dining area. Even if it's just a breakfast bar or a couple of stools, having a dedicated place to eat helps create a sense of normalcy and routine in your home. A small dining table can accommodate guests and make mealtime feel special.
Bedroom and Bathroom Planning
The bedroom and bathroom are often the most challenging rooms to design in a 750 sq ft home. But with thoughtful planning, both can be comfortable and functional.

Bedroom Considerations: A bedroom in a 750 sq ft home should feel like a retreat. If you have a loft area, consider using it for sleeping. A Murphy bed or a platform bed with hidden storage underneath can free up floor space during the day. Make sure there's adequate lighting and privacy, especially if the bedroom shares a wall with another room.
Bathroom Design: Small bathrooms require clever solutions. A compact shower/tub combination can save space while providing flexibility. Consider a pedestal sink instead of a large vanity to keep the look clean and airy. Good lighting and mirrors can make the space feel larger than it actually is. Don't forget about ventilation—small spaces can get stuffy quickly.
Privacy and Comfort: Both rooms need to feel private and peaceful. Even though space is limited, the feeling of privacy is crucial for rest and relaxation. Consider using sliding doors or partitions to create separate zones when needed.
Storage and Organization Strategies
One of the biggest challenges in small homes is keeping everything organized. Here are some proven strategies that make 750 sq ft homes work beautifully:
Built-In Solutions: Custom built-ins are a game-changer for small spaces. They provide storage without taking up floor space and can be designed to match your exact needs. Think about wall-mounted shelves, under-stair storage, and closet systems that utilize every available space.
Multi-Functional Furniture: This is where creativity really shines. A coffee table with storage, a bench that doubles as seating and storage, or a dining table that can be folded away when not in use—all these options help maximize space.
Vertical Thinking: Make the most of vertical space. Tall cabinets, wall-mounted shelves, and even hanging organizers can keep your belongings off the floor. This approach keeps the visual space open and uncluttered.
Smart Labeling: In small spaces, everything needs to have its place. Labeling storage containers and organizing systems helps everyone know where things belong. It's also easier to find what you need when everything is properly categorized.

Practical Tips for Success
Planning a 750 sq ft home isn't just about design—it's about lifestyle. Here are some practical tips that will make your tiny home journey smoother:
Real-Life Examples and Inspiration
Looking at actual 750 sq ft house plans can give you a better understanding of how these designs work in practice. Here are some real-world examples that showcase different approaches:
Modern Minimalist: This style emphasizes clean lines and simple design. Light colors, open spaces, and minimal furniture create a feeling of spaciousness. The focus is on function over form.
Rustic Charm: Incorporating natural materials like wood and stone can make a small space feel warm and inviting. This approach often includes exposed beams, vintage fixtures, and cozy textures.
Urban Loft Style: For those who prefer a more contemporary look, this style features high ceilings, industrial elements, and lots of natural light. Open layouts and bold architectural details define the space.
Cozy Cottage Feel: This approach uses soft colors, patterned textiles, and charming details to create a homey atmosphere. It's perfect for those who want their small space to feel welcoming and intimate.
Each style can be adapted to fit the 750 sq ft constraint, proving that small doesn't mean boring. The key is matching the design approach to your personal preferences and lifestyle.

Budget Considerations
Building or buying a 750 sq ft home can be more affordable than larger properties, but there are still important budget considerations to keep in mind:
Construction Costs: The average cost to build a 750 sq ft home ranges from $100 to $200 per square foot depending on location and finishes. This is significantly less than building a larger home, but it's still a substantial investment.
Land Costs: Don't forget about land costs, which can vary wildly depending on where you live. In rural areas, land might be cheap, but in urban locations, it could be expensive.
Finishing Details: The final cost depends heavily on what you choose for finishes and fixtures. High-end materials will increase costs, while simpler choices can keep expenses down.
Permits and Fees: Local building codes and permit requirements can add unexpected costs to your project. Research what's required in your area before starting.
Maintenance Budget: While 750 sq ft homes are generally cheaper to maintain, you'll still need a budget for regular upkeep. Having a maintenance fund set aside is wise.
Legal and Zoning Issues
Before diving into 750 sq ft house plans, it's important to understand the legal landscape:

Zoning Restrictions: Many areas have zoning laws that limit the size of homes you can build. Check with your local planning department to see what's allowed in your neighborhood.
Building Codes: Each region has its own building codes that govern construction. These ensure safety and compliance with local standards. Some areas may have specific requirements for tiny homes.
Permit Requirements: You'll likely need permits for construction, electrical work, plumbing, and other aspects of building. Some cities are more supportive of tiny homes than others.
Property Rights: Make sure you understand what you're buying or building. Are you purchasing land and building a home, or are you renting a space? What are your rights as a homeowner?
Insurance: Insurance for tiny homes can be tricky. Some companies specialize in small home coverage, while others may not cover tiny homes at all. Shop around for the best options.
Future Trends in Small-Space Living
The trend toward smaller homes isn't going away. In fact, it's growing stronger as people seek more sustainable and intentional ways of living:
Sustainability Focus: People are increasingly interested in eco-friendly options. 750 sq ft homes are inherently more energy-efficient and environmentally friendly. This appeal is driving demand.
Technology Integration: Smart home technology is becoming more common in small spaces. From smart thermostats to automated lighting, technology helps maximize efficiency.
Flexible Design: As lifestyles change, people want homes that can adapt. Modular designs and flexible layouts are becoming more popular in small-space living.
Community Spaces: Some developments are focusing on shared spaces that complement small homes. Co-housing communities, maker spaces, and community gardens are examples of this trend.
Remote Work Influence: The rise of remote work has made small homes more attractive. People can work from anywhere, so they're looking for places that offer comfort and functionality without the overhead of large properties.
A 750 sq ft house plan represents more than just a size—it's a philosophy of intentional living. These homes prove that you don't need a lot of space to live well. They're practical, efficient, and surprisingly comfortable when designed thoughtfully. Whether you're considering building your first tiny home or exploring options for downsizing, the 750 sq ft range offers a compelling middle ground. It's big enough to meet your daily needs and small enough to manage with care and attention. The key lies in smart planning, creative design, and choosing a lifestyle that matches your values. In a world that often feels overwhelming, 750 square feet can be the perfect antidote—offering simplicity, sustainability, and genuine comfort. If you've been thinking about downsizing or trying something new, a 750 sq ft house plan might just be the answer you're looking for. The question isn't whether it's possible—it's whether you're ready to embrace it.