Imagine walking into your home and feeling completely at ease, knowing every inch serves a purpose. That's exactly what 1800 square feet can offer when designed right. This space isn't just enough—it's perfect for thoughtful living.
When people think about home size, 1800 square feet often comes up as that sweet spot between manageable costs and comfortable living. It's large enough to feel spacious but small enough to maintain warmth and intimacy. Whether you're planning your first home or looking to downsize, this square footage offers incredible flexibility. What makes 1800 sq ft so special? It's not just about numbers—it's about creating a space that works perfectly for your lifestyle.
Why Choose 1800 Square Feet?
There are several compelling reasons why 1800 square feet has become such a popular choice for homebuyers and builders alike.

Many people find that 1800 square feet provides the perfect balance of functionality and comfort. You get enough room for a kitchen, dining area, living room, bedrooms, and bathrooms without feeling overwhelmed by empty space. Plus, it's versatile enough to adapt to changing family needs over time.
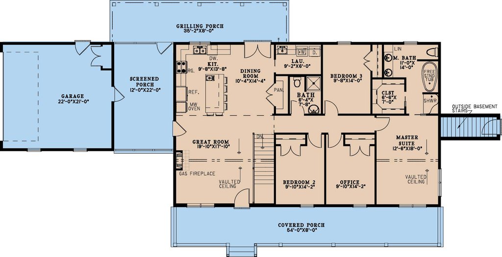
Essential Layout Considerations
Designing a 1800 square feet home requires careful thought about how to maximize every square foot. Here are the key elements to consider:
Open Floor Plans: These create a sense of spaciousness even in compact spaces. Think about how you move through your home and design pathways that feel natural.

Multi-functional Spaces: A home office that doubles as a guest room, or a breakfast nook that becomes a reading corner—these are the magic touches that make small spaces feel larger.
Smart Storage Solutions: Built-in shelving, under-stair storage, and hidden compartments can make all the difference in keeping your home tidy and functional.
The key is thinking beyond just square footage. How does your space flow? Where do you want to spend most of your time? What activities will happen in each area?
Popular Room Configurations

While every family has different needs, certain room arrangements work particularly well in 1800 square feet homes:
Some designs feature a main floor with a primary bedroom suite and additional sleeping areas downstairs. Others spread bedrooms across multiple levels. The important thing is matching the layout to your lifestyle and future plans.
Maximizing Natural Light
Lighting plays a crucial role in making small spaces feel bigger and more inviting. Here are some strategies to bring in plenty of natural light:

Consider how you want to use each room during different times of day. A morning coffee area near a window can make your home feel alive from the start of your day. The right lighting can transform how you experience your space.
Budget-Friendly Design Tips
Creating a beautiful 1800 square feet home doesn't have to break the bank. Here are some ways to save money without sacrificing style:
Remember, good design is about intentionality, not necessarily expensive materials. Sometimes the most impactful changes come from clever rearrangements or thoughtful additions rather than major upgrades.

Future-Proofing Your Space
Thinking ahead ensures your 1800 square feet home continues to serve you well over time. Consider these factors:
One smart approach is designing adaptable spaces. For example, a study could become a home office or guest room depending on your needs. Think about how your life might change over the next decade and build flexibility into your design.
An 1800 square feet house plan isn't just about fitting everything into a smaller space—it's about designing a home that truly reflects who you are and how you live. When you carefully consider layout, lighting, and future needs, this size becomes an advantage rather than a limitation. Every room tells a story about your life, and with thoughtful planning, your 1800 square feet can be anything you dream it to be. The key is starting with your priorities and building around them, not just filling space with furniture and features.