When you're planning to build or buy a home, size matters. A 2600 square feet house plan offers just the right balance between spaciousness and manageability. It's big enough to provide comfort and flexibility, yet small enough to keep maintenance costs reasonable. Whether you're a young family, a growing household, or someone looking for a comfortable single-family home, these plans offer versatile solutions for modern living.
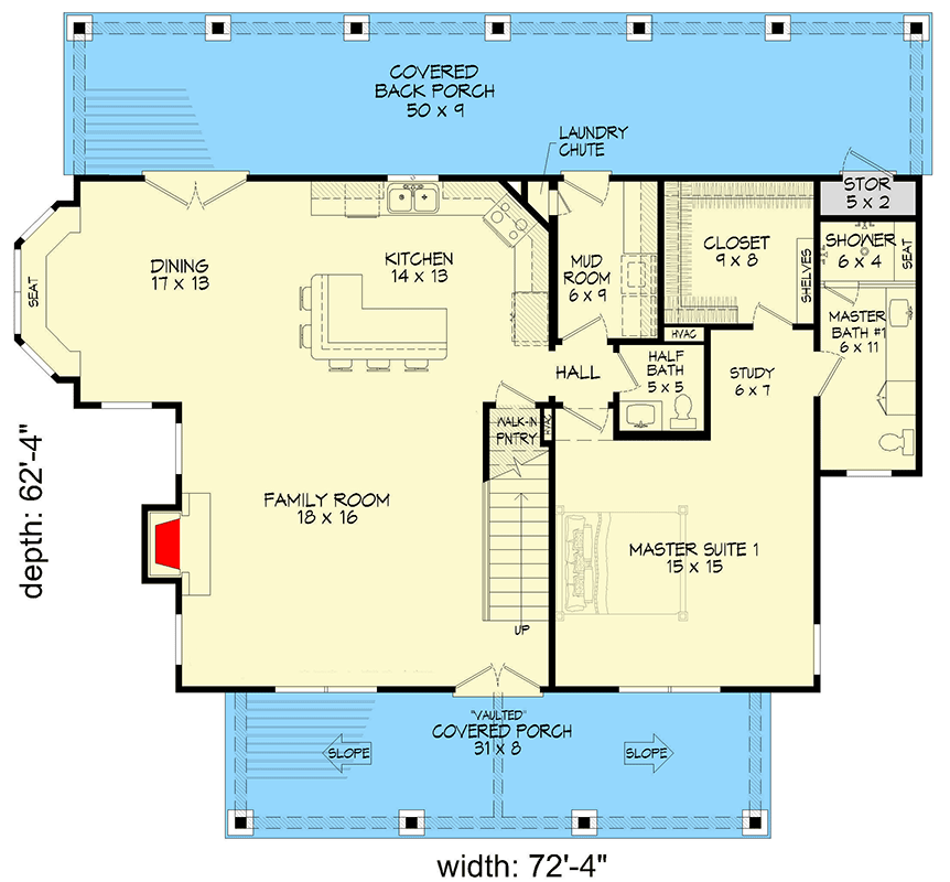
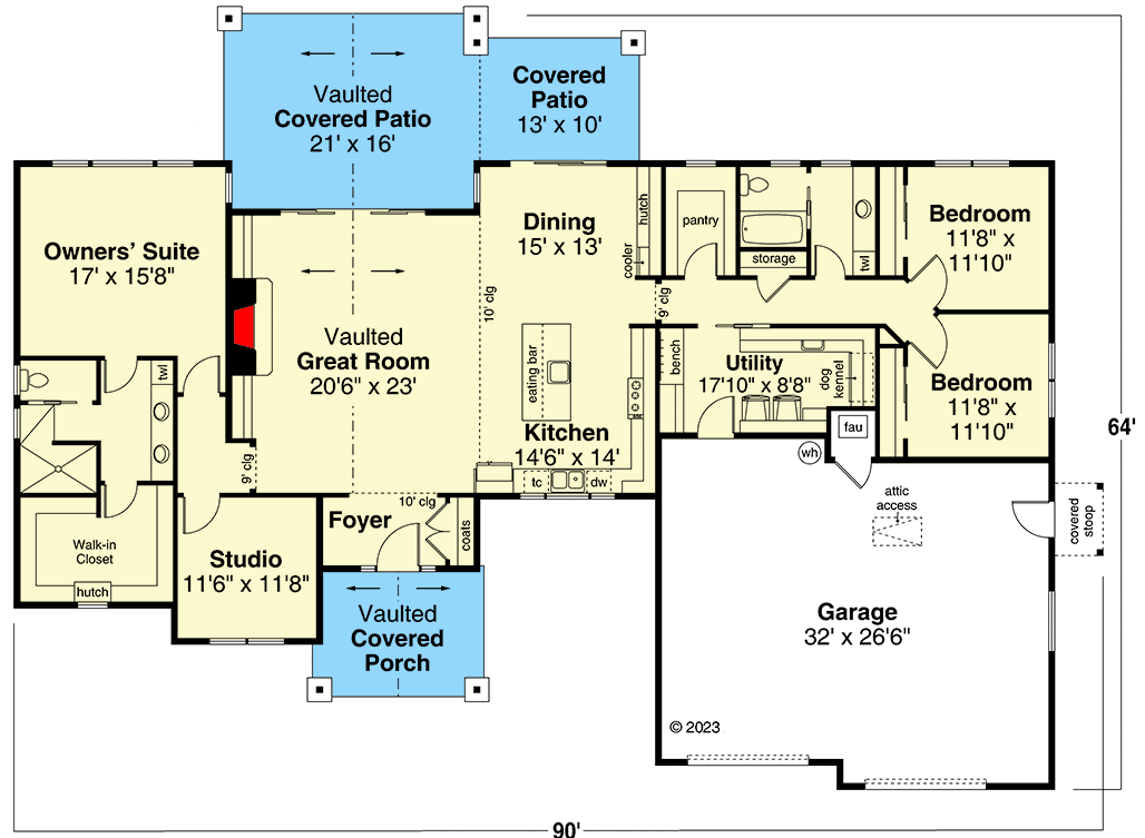
A 2600 square feet house plan isn't just about numbers on paper. It's about creating a space that reflects your lifestyle and meets your family's needs. These homes typically feature three to four bedrooms and two bathrooms, with enough room for a kitchen, dining area, and living spaces that feel open and welcoming. The beauty of 2600 square feet lies in its adaptability. You can design it to accommodate a home office, a guest suite, or even a hobby room. It's the sweet spot for many homeowners who want to avoid the overwhelming nature of larger homes while still enjoying plenty of space for daily activities.

Understanding the Layout Options
The way you arrange your 2600 square feet can dramatically impact how you live. One popular approach is the open-concept design where the kitchen, dining, and living areas flow together seamlessly. This setup works wonderfully for families who love to cook together or entertain guests. Another common configuration splits the home into distinct zones - perhaps a formal living room on one side and a casual family room on the other. Many 2600 sq ft plans also include a study or den, giving you a quiet space for work or reading. Consider how you spend your time each day when choosing your layout. Do you prefer to cook while chatting with family? Or do you like having separate spaces for different activities? The right layout makes all the difference.

Key Features That Define 2600 Sq Ft Homes
What makes a 2600 square feet house special isn't just the size, but the features that maximize every inch. Walk-in closets in bedrooms are a major plus, especially for families with lots of clothing or those who enjoy organizing their wardrobes. A large master suite often includes a private bathroom with a soaking tub and walk-in shower. Many of these homes also incorporate a two-car garage, which might seem small but provides essential storage and protection for vehicles. Other common elements include a pantry in the kitchen, a half-bath for guests, and a covered porch or deck that extends your living space outdoors. These features help create a home that feels both functional and luxurious.

Cost Considerations and Budget Planning
Building or buying a 2600 square feet home involves several financial factors. Construction costs vary widely depending on location, materials chosen, and complexity of design. In most areas, expect to pay between $150 and $300 per square foot for construction. That means your 2600 sq ft project could range from $375,000 to $780,000. However, these figures can fluctuate based on regional differences and whether you choose standard or high-end finishes. When budgeting, remember that premium features like custom cabinetry, granite countertops, or energy-efficient appliances will add to your total. On the other hand, opting for simpler designs or standard materials can help keep costs down. It's wise to set aside an additional 10-15% for unexpected expenses during construction or renovation.

Popular Design Styles for 2600 Sq Ft Homes
The exterior style of your 2600 sq ft home sets the tone for the entire property. Ranch-style homes are particularly popular because they offer a low-profile, comfortable look that many families appreciate. They typically feature one level with wide eaves and large windows that let in natural light. Colonial styles bring classic charm with symmetrical facades and traditional details like shutters and front porches. Modern designs embrace clean lines, expansive glass panels, and minimalist aesthetics. Farmhouse style combines rustic elements with contemporary comfort, featuring exposed beams, stone accents, and open floor plans. Your choice of style affects not only curb appeal but also resale value and how well the home fits into its neighborhood environment.

Space Optimization Tips for Maximum Functionality
In a 2600 square feet home, every square foot counts. Smart storage solutions can transform how you use your space. Consider built-in shelving in hallways or stairwells to maximize vertical space. A basement or attic conversion can add significant usable area without increasing the footprint. Multi-purpose rooms work wonders too - think of a room that doubles as a home office during weekdays and a playroom on weekends. For smaller spaces, light colors and mirrors can make rooms appear larger. Good lighting design is crucial; layered lighting with overhead, task, and accent lights creates atmosphere and functionality. Don't overlook the importance of proper organization systems in kitchens and bathrooms. These small improvements can make a huge difference in how your home feels and functions.
Planning for Future Growth and Flexibility
One of the best aspects of 2600 square feet is its potential for adaptation over time. As your family grows or changes, you want to be able to adjust your living space accordingly. Consider including flexible areas that can serve multiple purposes. A converted garage might become a workshop or fitness area. An unused bedroom could transform into a home office or guest room. Some builders offer optional additions that can be incorporated later, such as extra bedrooms or expanded bathrooms. Think about how your lifestyle might change in five or ten years. Will you need more space for aging parents? Are you planning to start a business from home? Planning ahead ensures your 2600 sq ft home remains suitable for whatever comes next.
A 2600 square feet house plan represents more than just a measurement of space. It's a canvas for your lifestyle, designed to accommodate your current needs while allowing room for growth. Whether you're drawn to open-concept layouts, classic architectural styles, or modern minimalist designs, there's a 2600 sq ft solution that fits your vision perfectly. The key is understanding what features matter most to you and making informed decisions about how to allocate your space. With thoughtful planning and careful consideration of your future needs, a 2600 square feet home can become the perfect foundation for years of happy memories. Remember, the best house plan isn't necessarily the biggest one, but the one that truly serves your life and brings you joy.