When you're planning a new home, size matters. A 2600 square foot house plan offers just the right amount of space to feel comfortable while keeping costs manageable. Whether you're building a family home, a vacation retreat, or a small business space, these plans can be customized to fit your lifestyle. This guide will walk you through the essential elements of 2600 square foot house plans, helping you understand how to maximize every inch of your new space.
A 2600 square foot house plan isn't just about numbers on paper – it's about creating a living space that reflects your personality and meets your daily needs. Think of it like a canvas waiting to be painted with your life story. These plans offer enough room for multiple bedrooms, a spacious kitchen, and areas for relaxation and entertainment. But here's the thing – it's not just about square footage. It's about thoughtful design that makes every corner work for you. From open-concept living areas to smart storage solutions, a well-designed 2600 square foot home can feel both cozy and grand.
Understanding 2600 Square Foot House Plans
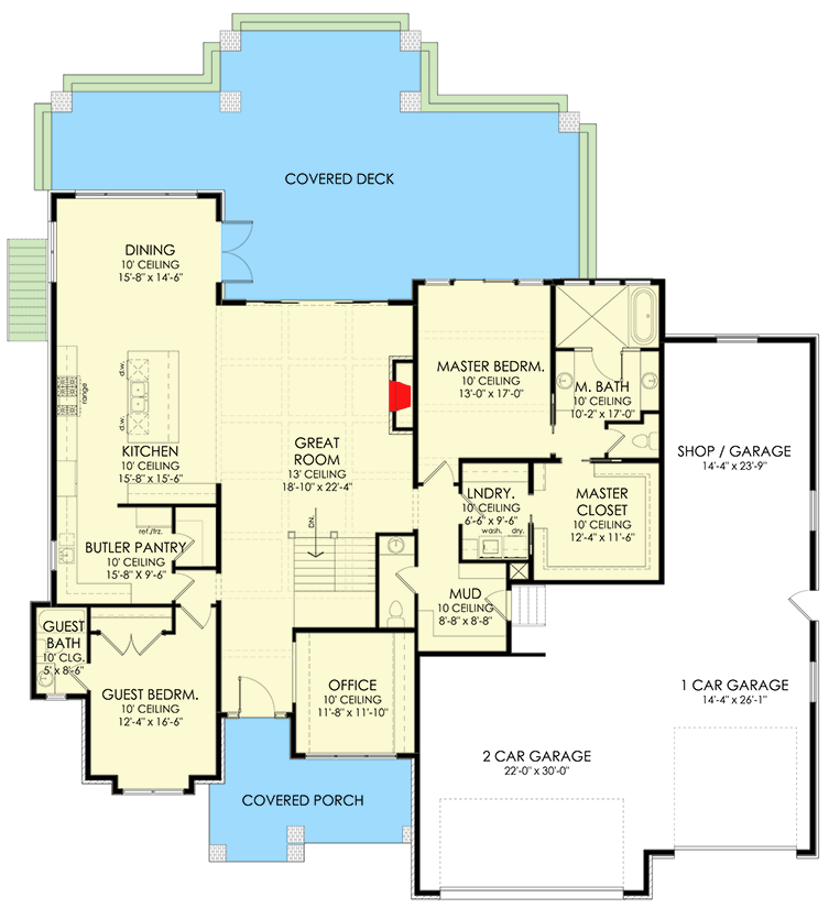
The magic of 2600 square feet lies in its versatility. It's large enough to accommodate a family comfortably but small enough to manage efficiently. Imagine a home with three bedrooms, two bathrooms, a kitchen, and a living area all within this space. That's what makes these plans so appealing to many homeowners. The key is understanding how to distribute this space effectively.
A typical 2600 square foot house might include:
This size allows for flexibility in design. You could have an open floor plan with high ceilings, or perhaps a more traditional layout with defined rooms. The beauty of 2600 square feet is that it's not too big to feel cramped, nor too small to feel restrictive.
Popular Layout Styles

There are several popular layout styles that work exceptionally well in 2600 square foot house plans. Let's explore some of the most common approaches that homeowners love.
Open Concept Designs: These homes feature large, connected living spaces. The kitchen flows into the living room, and there's often a breakfast nook or island. This style works wonderfully when you entertain frequently or want to keep an eye on children while cooking. Open layouts can make a 2600 square foot home feel even larger than it actually is.
Traditional Floor Plans: If you prefer more defined spaces, traditional layouts separate the kitchen, dining, and living areas. Bedrooms are usually located on one side of the house, while common areas are on the other. This arrangement provides privacy and quiet zones.
Split-Level Designs: These homes often have a partial basement or lower level, creating distinct levels. The main level typically includes the living room and kitchen, while bedrooms are on the upper level. Split-level designs can add visual interest and help with natural lighting.
Two-Story Homes: With 2600 square feet, you can easily build a two-story home. The first floor might include the kitchen, living room, and possibly a guest bedroom, while the second floor houses the remaining bedrooms and bathrooms. This design maximizes vertical space and creates a sense of height.
Essential Rooms and Features
Every 2600 square foot house plan needs certain core components to function well. Here's what you should consider:

Master Suite: Most 2600 square foot plans include a master suite with a private bathroom and walk-in closet. This is often the largest bedroom in the home, providing a peaceful retreat after a busy day.
Kitchen and Dining Area: A kitchen that's 400-500 square feet gives you plenty of room for appliances, counter space, and a dining area. Consider having an island or breakfast bar to encourage conversation.
Living Areas: Whether it's one large room or separate spaces, you'll want comfortable seating arrangements. Think about where you'll spend time relaxing, watching TV, or reading.
Bedrooms: With 2600 square feet, you can comfortably fit three or four bedrooms. The key is making sure each has adequate space and privacy.
Bathrooms: Two full bathrooms are standard for this size home, but you might want to include a half bath near the entrance or hallway for guests.
Storage Solutions: Built-in closets, pantries, and linen closets are crucial. Many homeowners find that they need extra storage space to keep their home organized and clutter-free.
Design Tips for Maximum Space Utilization

Making the most of 2600 square feet requires thoughtful planning. Here are some strategies that work well:
Multi-functional Spaces: Consider areas that can serve multiple purposes. A home office could double as a guest room, or a sunroom might become a play area for kids.
Smart Storage: Built-in shelving, under-stair storage, and hidden cabinets can keep your home neat without sacrificing aesthetics. Every inch counts in a 2600 square foot space.
Natural Light: Large windows and skylights can make a room feel bigger and more inviting. They also reduce energy costs by minimizing the need for artificial lighting during the day.
Vertical Space: Don't ignore the walls! High shelves, tall bookcases, and vertical storage solutions can maximize your available space.
Flow and Traffic Patterns: Plan where people will move through your home. Good flow means less congestion and more comfortable living. For example, kitchen traffic should not interfere with living room activities.
Outdoor Connections: Sliding doors to patios or decks extend your living space outdoors. This is especially important if you enjoy entertaining or spending time in nature.

Cost Considerations and Budget Planning
Building or buying a 2600 square foot home involves significant financial decisions. Understanding costs helps you make informed choices:
Construction Costs: On average, building a 2600 square foot home costs between $200-$400 per square foot, depending on location and finishes. This can range from $500,000 to over $1 million.
Materials Matter: Higher-end materials and fixtures increase costs significantly. Choose wisely based on your budget and priorities.
Location Impact: Homes in desirable areas cost more to build. Factor in local labor costs and material prices when estimating.
Energy Efficiency: Investing in insulation, energy-efficient appliances, and solar panels pays off in the long run. These upgrades might cost more upfront but save money on utilities.
Permits and Fees: Don't forget about permits, inspections, and other legal fees. These typically add 5-10% to your total project cost.

Contingency Fund: Always budget 10-15% extra for unexpected expenses. Construction projects rarely go exactly as planned, and having a buffer prevents financial stress.
Customization Options and Personal Touches
One of the best things about 2600 square foot house plans is how customizable they can be. You can personalize almost every aspect of your home:
Color Schemes: Start with a base color palette and add accent colors that reflect your personality. Warm tones create a cozy atmosphere, while cool tones offer a more modern look.
Flooring Choices: Hardwood floors bring warmth and sophistication, while tile or carpet can provide comfort in bedrooms. Consider durability when choosing materials.
Lighting Design: Layered lighting creates ambiance and functionality. Combine overhead lights, table lamps, and wall sconces for versatile illumination.
Personal Features: Add elements that tell your story. Perhaps a gallery wall, a reading nook, or a hobby room. These special touches make a house feel like home.
Technology Integration: Smart home features like programmable thermostats, security systems, and automated lighting can enhance convenience and safety.
Outdoor Spaces: Don't overlook the importance of outdoor areas. A well-designed porch, garden, or patio adds value and enjoyment to your property.
A 2600 square foot house plan represents the sweet spot between comfort and manageability. It's spacious enough to host friends and family, yet intimate enough to feel personal. Whether you choose an open-concept design or prefer traditional layouts, the key is thoughtful planning and attention to detail. Remember that these plans are just starting points. Your home should reflect your lifestyle, values, and dreams. Take time to consider what features matter most to you, and don't hesitate to work with professionals who understand how to maximize every square foot. After all, your dream home isn't just about size – it's about creating a space where you can truly thrive.