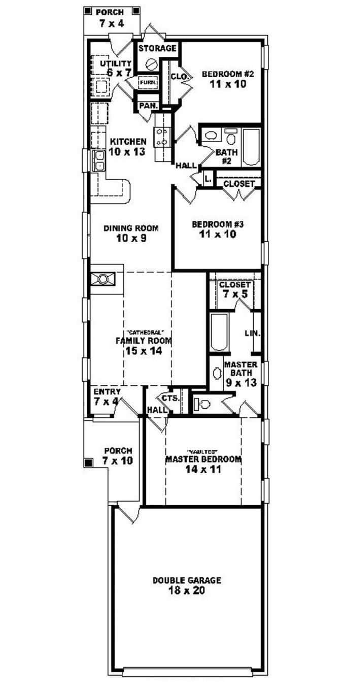
When you have a narrow lot, every inch matters. These innovative house plans prove that size doesn't have to mean sacrifice. Whether you're working with a 20-foot-wide plot or a 15-foot stretch, there are smart solutions waiting to transform your vision into reality.
Picture this: you've found the perfect home site, but it's only 18 feet wide. It might seem impossible to build a comfortable family home in such a tight space. Yet, thousands of homeowners across the country have successfully created beautiful, functional houses on narrow lots. The secret lies in thoughtful planning and creative design. These homes prove that limitations can actually spark innovation and lead to some of the most efficient living spaces ever built.

Why Narrow Lots Are More Common Than You Think
Narrow lots aren't just a thing of the past. In many urban areas, especially in cities like New York, San Francisco, and Seattle, developers often create plots that are only 15 to 25 feet wide. Why? Because land values are high and space is precious. Many older neighborhoods feature these compact lots, passed down through generations. These spaces often come with their own charm and challenges. Some lots were originally built as 'cookie-cutter' homes that have been converted over time. Others were designed with specific architectural styles that work better in smaller dimensions. The key is understanding how to work with what you have rather than against it.

Key Design Principles for Narrow Houses
Creating a successful narrow house requires understanding fundamental principles. First, consider the concept of vertical space. Instead of spreading horizontally, these designs often go up and down. This means multi-story layouts can be incredibly effective. Second, think about light and air circulation. A narrow house needs good windows and possibly skylights to prevent feeling cramped. Third, prioritize open floor plans. The last thing you want is a house that feels even smaller than it is. Finally, remember that every room must serve multiple purposes when space is limited. For example, a dining area could double as a workspace, or a bedroom might incorporate storage solutions that keep things neat.

Popular Narrow House Layouts
There are several proven layouts that work well for narrow lots:

Each layout has its advantages and considerations. The best choice depends on your lot's specific shape, local building codes, and personal lifestyle needs.
Creative Solutions for Limited Width

In narrow lots, designers often use clever tricks to maximize space. One popular approach is the 'double-width' concept where rooms extend beyond the actual lot width using shared walls with neighbors. This isn't always possible due to zoning laws, but it's worth exploring. Another strategy involves using sloped lots to create different levels. When a lot slopes downward, you can build a basement or lower level that adds significant square footage without increasing the footprint. Some architects also incorporate outdoor spaces like courtyards or patios that feel like indoor rooms. These areas can provide additional living space while maintaining the home's connection to nature.
Building Codes and Legal Considerations
Before starting any project, check your local building codes carefully. Many cities have specific requirements for narrow lots including minimum setbacks, height restrictions, and parking regulations. Some areas require special permits for certain types of construction. Additionally, consider the impact on neighboring properties. If your lot is extremely narrow, you may need to work with adjacent owners to gain access to utilities or create shared spaces. Zoning laws can also affect what you can build and how you can use the space. Always consult with local authorities before beginning any construction to avoid costly mistakes later.
Cost Considerations and Budget Planning
Building on a narrow lot can sometimes cost more than a standard home due to specialized engineering needs. However, it can also save money in other ways. Since there's less exterior wall area, you'll spend less on materials like siding and roofing. Also, the reduced footprint means lower heating and cooling costs. But expect to pay more for custom designs and specialized contractors. The complexity of narrow lot construction often requires experienced professionals who understand the nuances. Budget accordingly for potential delays or adjustments during the building process. Some homeowners find that investing in quality materials upfront saves money in the long run through reduced maintenance needs.
Designing a home on a narrow lot might seem daunting at first, but it's an opportunity to create something truly special. These homes demonstrate that creativity and careful planning can overcome spatial limitations. Whether you're dreaming of a cozy family home or a modern studio apartment, the right plan can make all the difference. The key is working with professionals who understand narrow lot challenges and can translate your vision into a practical, beautiful reality. With thoughtful design and proper planning, even the smallest spaces can become the most satisfying places to live.