In a world where bigger often seems better, there's something deeply satisfying about the idea of creating a perfectly proportioned home. When we talk about square house plans 1000 feet, we're not just talking about size limits – we're exploring the sweet spot where efficiency meets comfort, where every square foot matters, and where smart design creates magic.
Picture this: you're standing in a perfectly designed 1000-square-foot home, feeling completely at ease in every corner. No wasted space, no cluttered areas, just the right amount of room for everything you need. It's a rare thing these days, but it's becoming more common as people realize that smaller homes can offer more than larger ones. Whether you're downsizing, starting fresh, or simply want to live more efficiently, understanding square house plans 1000 feet opens up a whole new world of possibilities. These compact homes aren't just about being small – they're about being perfectly suited to your life.
Why 1000 Square Feet Works So Well
There's something special about 1000 square feet. It's big enough to feel spacious but small enough to manage easily. Think about it – that's roughly the size of a single-car garage, or about half the average American home. But when you plan it right, that space can hold everything you need for a comfortable life.
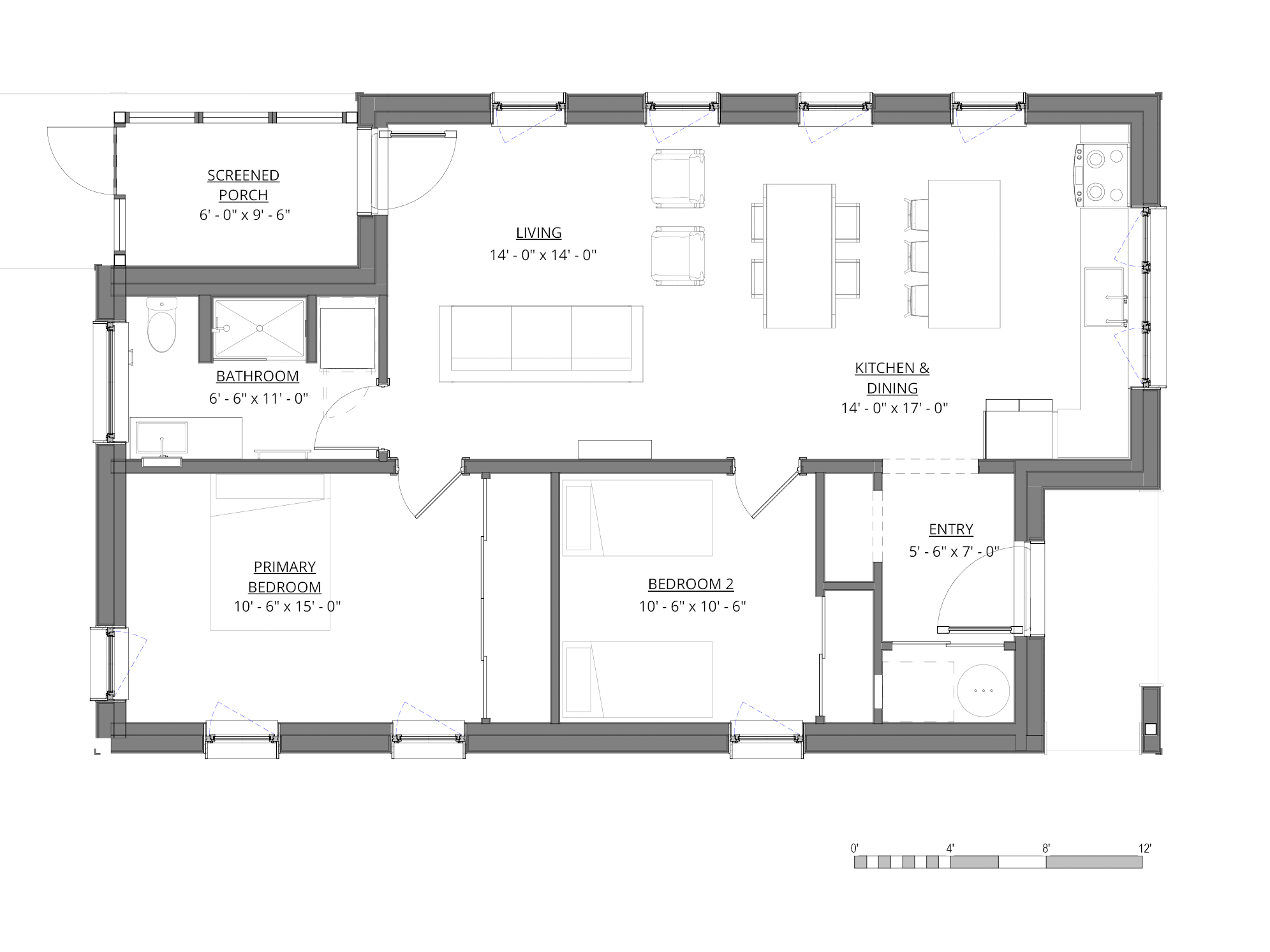
The beauty of this size lies in its flexibility. You're not limited to just one bedroom or one bathroom. In fact, many 1000-square-foot homes have two bedrooms and two bathrooms, which is quite impressive for such a compact footprint. The key is thinking creatively about layout and function.

Consider a family of four living in a 1000-square-foot home. They might have a master suite with a walk-in closet, a second bedroom, a shared bathroom, a kitchen, dining area, and even a small living space. That's a lot of functionality packed into a relatively small package.
This size also offers significant advantages when it comes to maintenance and costs. Heating, cooling, and cleaning a 1000-square-foot space requires far less energy and effort than a larger home. Plus, it's much easier to find affordable financing options, especially if you're buying a pre-owned home or building from scratch.
Key Design Principles for Compact Living Spaces
Designing a 1000-square-foot home requires careful consideration of several fundamental principles. First and foremost is the concept of open floor plans. When you're working with limited space, you want to maximize the feeling of openness. This means avoiding unnecessary walls and using strategic design elements to keep things flowing smoothly.
Natural light plays a huge role in making small spaces feel larger. Large windows, skylights, and well-placed mirrors can transform a cramped-looking room into an airy sanctuary. The right lighting scheme can make all the difference too – layering different types of lights creates depth and dimension.

Multi-functional furniture is essential. A dining table that doubles as a work surface, a sofa bed for guests, or storage ottomans that serve multiple purposes can save precious square footage while maintaining functionality. Think about how you use your space throughout the day and design accordingly.
Vertical space matters enormously. Tall ceilings, high shelves, and wall-mounted storage solutions can dramatically increase usable space without taking up floor area. Many successful 1000-square-foot homes feature vaulted ceilings in main areas, creating a sense of grandeur despite their modest size.
Room Layouts That Maximize Every Square Foot
Planning the layout of a 1000-square-foot home is both an art and a science. Here are some proven strategies that work particularly well:
Popular Floor Plan Configurations

When designing square house plans 1000 feet, certain layouts tend to work better than others. Here are some configurations that have proven popular with homeowners:
The Traditional Layout: This classic approach features a central living area with bedrooms positioned on either side. It's straightforward, logical, and works well for families who want defined spaces. The main advantage is that it's easy to understand and navigate, making it ideal for older adults or those who prefer simplicity.
The Modern Open Plan: More contemporary in approach, this layout eliminates traditional room boundaries. A large central area handles multiple functions, with sleeping areas tucked away at the back or sides. This creates a sense of spaciousness and allows for more creative design elements.
The Split-Level Design: This configuration uses height differences to create distinct zones within the same floor. One area might be higher than another, creating natural separation between public and private spaces. It's particularly effective for maximizing vertical space while maintaining an open feel.
The Multi-Story Approach: While technically still 1000 square feet, some designs incorporate a second floor to increase usable space. This might mean a basement or attic converted into additional living areas, allowing for more bedrooms or recreational spaces.

Each of these layouts has its pros and cons, and the best choice depends heavily on your lifestyle, family needs, and personal preferences.
Cost Considerations and Budget Planning
Building or buying a 1000-square-foot home involves unique financial considerations that differ significantly from larger properties. The good news is that smaller homes often cost less to purchase, build, and maintain.
Construction costs for a 1000-square-foot home typically range from $150 to $300 per square foot, depending on materials, location, and finishes. This is generally lower than the national average for new construction, which can be $200-$400+ per square foot. However, the quality of materials and craftsmanship can vary widely.
Financing options for smaller homes are often more accessible. Many lenders view 1000-square-foot homes as less risky investments, and there are often more mortgage programs specifically tailored to smaller properties. This can make homeownership more achievable for first-time buyers or those on tighter budgets.

Maintenance costs drop significantly with smaller homes. Less square footage means fewer surfaces to clean, less heating and cooling to manage, and reduced utility bills. Additionally, repairs and renovations are generally less expensive when you're dealing with a compact space.
However, don't assume that everything will be cheaper. High-end finishes, custom cabinetry, and specialized features can quickly add up in a smaller space because every dollar counts more. It's essential to prioritize your spending based on what matters most to your daily life.
Real-World Examples and Success Stories
To truly understand how square house plans 1000 feet work in practice, let's look at some real examples. One particularly inspiring case involved a young couple who wanted to build their dream home on a tight budget. They chose a 1000-square-foot design featuring a modern open floor plan, a kitchen island, and a master suite with a walk-in closet.
Their solution was elegant: they built a split-level design that maximized vertical space. The main living area sat on the ground floor, while the bedrooms were positioned upstairs. This created natural separation between public and private areas while keeping the overall footprint manageable.
Another example comes from a retired teacher who downsized from a 2000-square-foot home to a 1000-square-foot space. She transformed her former study into a cozy reading nook with built-in bookshelves, kept her kitchen functional but simple, and added a sunroom that doubled as a dining area and extra living space.
What these stories show is that 1000 square feet isn't limiting – it's liberating. When you're forced to be intentional about what you include, you often end up with a home that's more thoughtfully designed and personally meaningful.
These homes demonstrate that size doesn't determine happiness. A well-designed 1000-square-foot home can provide everything needed for a comfortable, fulfilling life.
Square house plans 1000 feet represent more than just a size category – they embody a philosophy of thoughtful living. When you carefully consider every aspect of your 1000-square-foot home, from the flow of traffic to the placement of every piece of furniture, you create a space that truly serves your life. These homes prove that less can indeed be more when you focus on quality over quantity.
Whether you're planning a new build, considering a renovation, or simply dreaming about your next living situation, remember that the right 1000-square-foot home can be the perfect foundation for your future. It's not about sacrifice – it's about purposeful design that brings joy and efficiency together. The key is approaching it with creativity, intentionality, and a clear understanding of what makes a space feel like home. With the right planning and design principles, your 1000-square-foot dream home can become a reality that exceeds expectations.