Every home tells a story, and the story begins with how space flows through your walls. When you're thinking about a two bedroom two bath house plan, you're not just choosing a layout—you're selecting the foundation for family memories, quiet moments, and daily routines. These plans are more than blueprints; they're the canvas where life unfolds. Whether you're planning your first home, expanding your family, or downsizing gracefully, understanding what makes a great two bedroom two bath house plan can save you time, money, and heartache.
There's something deeply satisfying about a well-thought-out house plan. It's like having a roadmap for the life you want to live. A two bedroom two bath house plan isn't just about square footage—it's about creating spaces that feel right for your lifestyle. These homes are versatile, practical, and often perfectly suited for families, empty nesters, or anyone who values both privacy and connection. Let's explore what makes these layouts work so well, and how you can find or design one that truly fits your needs.
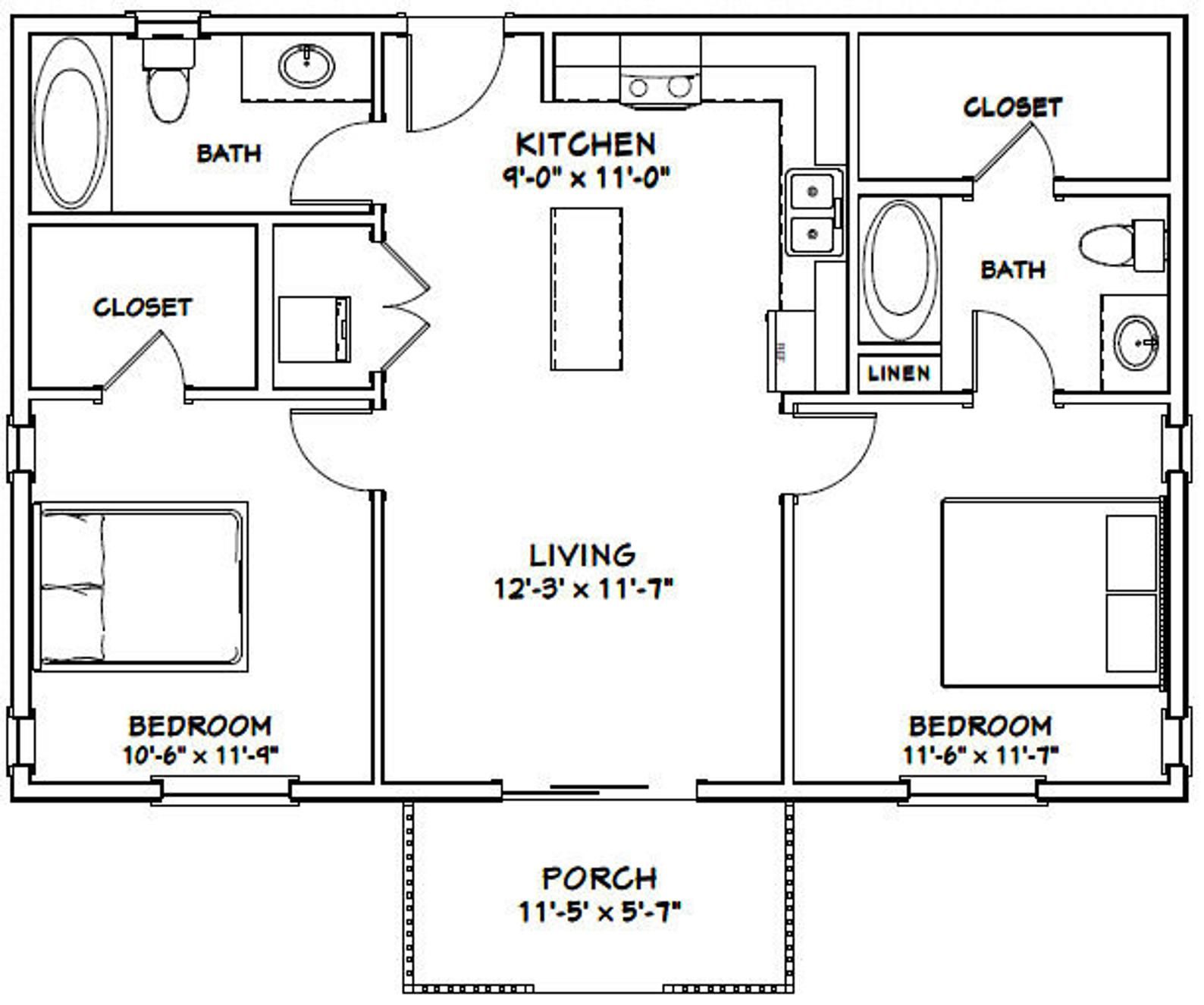
Understanding the Basics of Two Bedroom Two Bath House Plans
At its core, a two bedroom two bath house plan typically features two bedrooms, each with its own bathroom, plus a shared bathroom. This setup offers flexibility that many homeowners find appealing. Think of it as having a private retreat for each adult, while still maintaining a common area for shared activities.
The most common configurations include:
These layouts have stood the test of time because they balance functionality with comfort. They're neither too cramped nor too spacious, offering just enough room for daily living without feeling overwhelming.
Key Design Considerations for Optimal Functionality

Creating a successful two bedroom two bath house plan requires thoughtful consideration of several factors. First, think about your daily routine. Where do you spend most of your time? Do you prefer to start your day in the morning light, or do you like to wind down in a quiet corner?
Consider the flow of traffic through your home. A well-designed layout minimizes congestion and maximizes efficiency. For instance, placing the kitchen near the main living areas helps streamline meal preparation and socializing.
Another crucial element is natural lighting. South-facing windows can provide warmth and brightness throughout the day, especially important in bedrooms where you want to wake up naturally. North-facing rooms might benefit from additional artificial lighting.
Don't forget about storage. These homes need smart solutions for keeping things organized. Built-in closets, walk-in pantries, and under-stair storage can make all the difference in maintaining a clutter-free environment.
Popular Layout Styles and Their Advantages
Different layout styles offer unique benefits depending on your lifestyle and preferences. Here are some of the most popular approaches:
Traditional Layouts

Modern Open Concepts
Outdoor Integration
Each style has its own charm and practical advantages. The key is matching the layout to your specific needs and how you want to live.
Space Optimization Techniques for Compact Homes
Even smaller two bedroom two bath house plans can feel spacious with clever design choices. Vertical space is particularly valuable in compact layouts.
Some effective strategies include:
Many homeowners find that maximizing vertical storage and utilizing every available inch leads to surprisingly functional spaces. The trick is not just fitting everything in, but making it look intentional and organized.

Consider how much you actually need versus how much you think you might need. Often, we overestimate our storage requirements and underestimate our ability to keep things organized.
Budget-Friendly Approaches to Two Bedroom Two Bath Homes
Building or buying a two bedroom two bath house doesn't have to break the bank. There are numerous ways to create beautiful, functional homes within budget constraints.
Start with the basics:
Many people discover that their best investment comes from thoughtful planning rather than expensive finishes. Simple touches like good lighting, quality flooring, and thoughtful storage solutions can transform a house from ordinary to exceptional.
Don't overlook the value of working with local builders who understand regional materials and labor costs. They often provide better value than generic contractors.
Real-Life Examples and Inspiration

Looking at actual examples can provide powerful inspiration for your own project. Here are some real-world scenarios that demonstrate successful two bedroom two bath house plans:
Family Home Example
A couple with two children chose a split-bedroom layout. The master suite faces east for morning light, while the kids' bedrooms are on the opposite side. The shared bathroom is centrally located, making it easy for parents to manage bedtime routines. The kitchen opens to the living area, perfect for cooking while watching the kids play.
Empty Nester Scenario
An older couple wanted a low-maintenance home with accessibility features. They selected a single-level design with wide hallways and a master bathroom with grab bars. The second bedroom serves as a guest room or study, and the shared bathroom includes a separate shower and tub for convenience.
First-Time Homebuyer Option
A young professional chose a modern open-concept layout with minimal exterior walls. The kitchen island serves as a breakfast bar, and the living area flows seamlessly to the backyard. The two bathrooms are designed with contemporary fixtures and efficient layouts.

These examples show that the same basic plan can be adapted to meet very different lifestyles and needs.
Making the Right Choice for Your Lifestyle
Choosing the right two bedroom two bath house plan means aligning your dreams with reality. Ask yourself:
Take time to walk through sample plans and visualize how you'd use each space. Sometimes, a simple change in room orientation can dramatically alter how a home feels and functions.
Remember that a house plan is just the beginning. The real magic happens when you customize it to reflect your personality, habits, and goals. Whether you're starting from scratch or renovating an existing space, these two bedroom two bath house plans offer a solid foundation for building your ideal home.
Two bedroom two bath house plans represent more than just architectural blueprints—they embody the way we choose to live, love, and grow. They offer a perfect middle ground between simplicity and sophistication, providing enough space for comfort without the burden of excessive maintenance. Whether you're planning your first home, looking to downsize gracefully, or simply want a place that feels just right, these layouts give you the freedom to shape your ideal living environment.
The key is finding a plan that matches not just your current needs, but also your future aspirations. Every door, window, and hallway tells part of your story. So take your time, consider your priorities, and trust that the right two bedroom two bath house plan will become the foundation for all your happiest memories. After all, the best homes aren't just built—they're lived in.