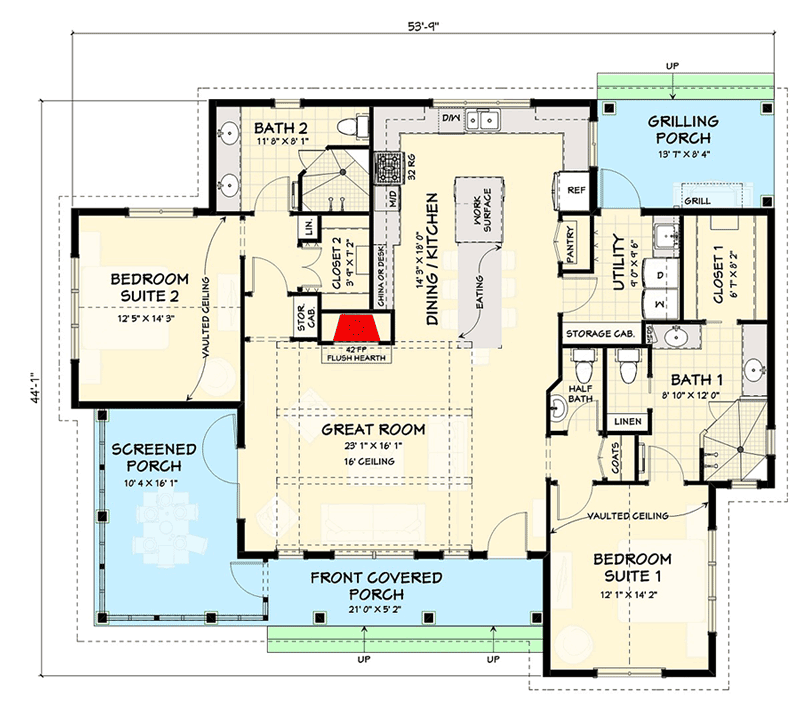
Imagine walking into your home and seeing two spacious master suites side by side, each with its own private bathroom and walk-in closet. That's exactly what dual master bedroom house plans offer. These layouts have become increasingly popular because they provide both privacy and convenience for couples who want their own personal retreat within the same home. Whether you're planning a new build or remodeling an existing space, understanding the nuances of dual master bedroom designs can transform how you think about home layout and functionality.
When it comes to designing a home that truly suits modern lifestyle needs, few concepts capture attention quite like dual master bedroom house plans. These innovative layouts feature two separate master suites that share the same floor space, often positioned strategically to maximize privacy while maintaining easy access to shared areas. The appeal isn't just aesthetic – there's genuine practicality behind the design choices. Think about it: wouldn't it be wonderful to have your own private sanctuary without having to navigate through other rooms? Or perhaps you want to accommodate guests while keeping your personal space intact. These homes are designed with families in mind, especially those with children or aging parents who might benefit from having their own separate living quarters.
What Makes Dual Master Bedroom Plans Special
Dual master bedroom house plans represent a significant shift from traditional single-master layouts. Instead of one large bedroom serving multiple purposes, these designs offer two distinct primary sleeping spaces. This arrangement creates several benefits that go beyond simple aesthetics. First, it provides true separation between living spaces, allowing each person to have their own environment. Second, it offers flexibility for different family situations – perhaps one suite for a retired parent or adult child, or simply two people wanting their own space. The key difference lies in the thoughtful placement of these bedrooms, usually positioned across from each other or in parallel arrangements. You might see one bedroom facing east toward morning light, while the other opens to west-facing views. It's all about creating harmony between function and comfort.

Layout Options and Design Flexibility
The beauty of dual master bedroom plans lies in their adaptability. Here are some common approaches designers use:
Each option brings unique advantages. Parallel setups work well when you want to keep both spaces close to each other, while opposite sides might suit those who prefer more separation. Consider your daily routine – do you want to wake up and immediately access a shared bathroom, or would you rather have your own private space? These decisions shape the entire flow of your home. Many modern architects incorporate features like private entrances, separate staircases, or even individual laundry facilities to enhance the independence of each master suite.
Space Considerations and Size Requirements

Building a dual master bedroom home requires careful attention to space allocation. Typically, each master suite needs approximately 400-600 square feet minimum to feel comfortable and functional. That's roughly 800-1200 square feet total for both bedrooms combined. However, these numbers vary based on your lifestyle preferences and local building codes. Let's break down what matters most:
A common mistake homeowners make is underestimating the space needed for these elements. Imagine trying to fit a full-size bathroom, a generous walk-in closet, and enough room for a sitting area all within a 400-square-foot space. It becomes quite challenging, doesn't it? Professional planners recommend allocating at least 10% extra space for unexpected needs or future modifications. This buffer ensures your home remains comfortable as your needs change over time.
Practical Benefits for Modern Families
These house plans address many real-world challenges faced by contemporary families:

Consider a scenario where a couple has grown children who occasionally visit. With dual master bedrooms, everyone has their own peaceful space while still being part of the same household. The design accommodates busy schedules perfectly. Someone might want to work early in the morning while another prefers evening quiet. Having separate spaces makes this possible without disturbing each other. Additionally, these homes often feature built-in storage solutions that help maintain organization and reduce clutter. The strategic placement of these elements creates a sense of order that enhances daily life.
Cost Factors and Budget Planning
Creating a dual master bedroom home involves several financial considerations. Generally, these designs cost 10-15% more than standard layouts due to increased materials and specialized features. Here's what affects pricing:
Budget-conscious homeowners can still enjoy the benefits by focusing on essential elements first. Start with core requirements like adequate bedroom sizes and private bathrooms. Then, consider adding luxury features gradually as finances allow. For example, you might begin with basic master suites and upgrade fixtures later. Many builders offer modular approaches that let you customize your home incrementally. This strategy helps manage costs while still achieving your desired outcome. Remember that investing in quality materials and proper planning upfront can save money in maintenance and renovations later.

Design Tips for Maximum Effectiveness
To get the most out of your dual master bedroom house plan, consider these essential tips:
One particularly effective approach involves using visual cues to separate areas. For instance, different flooring materials or ceiling treatments can define each master suite without completely dividing the space. This creates a sense of individual identity while maintaining the overall unity of the home. Lighting design plays a crucial role too – consider dimmer switches or separate lighting controls for each bedroom. These small touches make a big difference in daily comfort and personalization. Also, think about traffic patterns in your home. Where will people move most frequently? How can you optimize the flow to avoid congestion?
Popular Features and Amenities

Modern dual master bedroom houses often include several appealing features that enhance the overall experience:
These amenities don't just look impressive – they provide real value. A spa-style bathroom can significantly improve daily routines, while smart home technology allows for convenient management of various aspects of your home. Many homeowners report feeling more relaxed and satisfied with their living situation after incorporating these features. The key is choosing elements that align with your lifestyle rather than simply following trends. For example, if you're a frequent traveler, a dedicated home office might be more valuable than a luxurious ensuite bathroom. The goal is to create a space that supports your actual daily activities.
Common Mistakes to Avoid
Several pitfalls can compromise the success of dual master bedroom plans:
Many homeowners rush into construction without fully understanding how they'll actually use the space. They envision ideal scenarios but forget about real-life complications like moving furniture or accommodating visitors. The solution lies in thorough planning and possibly consulting with professionals who specialize in these designs. It's worth spending time thinking through every detail – from how you'll organize clothing to where you'll place your favorite reading chair. These seemingly small decisions often determine whether a home feels welcoming or cramped.
Making Your Vision a Reality
Transforming your dream into reality starts with understanding your priorities. Begin by listing what matters most to you in a living space. Do you value quiet mornings? Do you entertain frequently? Are you planning for future family changes? Answering these questions helps guide design decisions. Next, research local builders or architects who specialize in dual master bedroom plans. Visit model homes or ask for references to see how others have approached similar challenges. Don't hesitate to request modifications to standard plans – many designers are happy to customize layouts to meet specific needs. Consider working with professionals who understand both the technical aspects and the emotional components of home design. They can help translate your vision into practical solutions that enhance your daily life. Remember, this is your home – it should reflect your personality and support your lifestyle. Take your time with the process, and don't rush into decisions that might limit your satisfaction later.
Dual master bedroom house plans represent more than just architectural innovation – they embody a thoughtful approach to modern living. These designs recognize that families today have diverse needs and lifestyles that deserve thoughtful consideration in home design. From the careful placement of bedrooms to the integration of smart technologies, every element contributes to creating a space that truly serves its inhabitants. Whether you're planning a new construction project or renovating an existing home, understanding the principles behind dual master bedroom layouts empowers you to make informed decisions. The key is balancing practicality with personal preference, ensuring that your investment reflects both your current lifestyle and potential future needs. As you explore these possibilities, remember that the best home designs are those that make everyday moments feel special. The journey from concept to completion may take time, but the result – a home that genuinely works for you – is always worth the effort. After all, you'll be living in this space for years to come, so taking the time to get it right pays dividends in happiness and satisfaction.