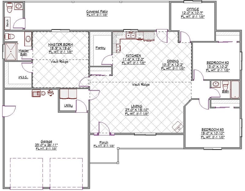
Every family deserves a home that fits their lifestyle perfectly. When you're thinking about a one story 3 bedroom 2 bath house plan, you're choosing a design that brings comfort, practicality, and space all in one level. These homes are more than just floor plans—they're blueprints for daily life. Whether you're planning your first home or upgrading your current living situation, understanding how to structure this type of layout can save you time, money, and headaches down the road.
The appeal of one story 3 bedroom 2 bath house plans lies in their simplicity and efficiency. They offer the perfect balance between spaciousness and manageability. You won't have to climb stairs for daily routines, making them ideal for families with young children, elderly members, or anyone who values easy access. These homes often maximize every inch of space while keeping things cozy and welcoming. The beauty of this design is that it's versatile enough to fit different lifestyles and budgets. Plus, they tend to be more affordable to build and maintain compared to multi-level alternatives. So if you're looking for a practical, comfortable, and functional home, this is definitely worth considering.

Why Choose One Story Homes?
There are several reasons why one story 3 bedroom 2 bath house plans have become so popular among homeowners. First, they're incredibly user-friendly. No more worrying about kids falling down stairs or elderly relatives struggling with steps. Everyone can move around freely and safely. Second, they're more energy-efficient. Heat and cool air circulate better in single-level spaces. Third, they offer more flexibility in terms of design and furniture placement. You can easily rearrange rooms and move large items without worrying about navigating stairs. Finally, one story homes typically have a wider range of architectural styles available, from modern minimalist designs to traditional craftsman looks. This variety means you can find a style that matches your personality and preferences.

Key Design Features to Look For
When examining one story 3 bedroom 2 bath house plans, there are some essential elements to keep in mind. The most important factor is the flow of the home. Good layouts should guide you naturally from room to room. Think about how you move through your space daily. A kitchen that's too far from the dining area can make mealtime feel like a chore. The master suite should feel special and private, away from the rest of the activity. The bathroom placement matters too, especially when considering shared spaces. Other considerations include:

Space Optimization Tips
Maximizing every square foot in a one story 3 bedroom 2 bath house plan requires thoughtful planning and creative solutions. Start with the kitchen—it's often the heart of the home. Consider island designs that double as extra counter space and seating. The dining area doesn't always need to be separate from the kitchen. Sometimes a breakfast nook tucked into a corner works wonderfully. For bedrooms, think about built-in storage solutions. Under-bed drawers and walk-in closets can provide much-needed organization without taking up valuable floor space. The bathroom can be made more functional with clever storage ideas like medicine cabinets above toilets and linen storage in vanities. Even small spaces like hallways can be used effectively for shoe storage or coat hooks. Every inch counts, and smart planning makes a big difference in how your home feels.

Popular Layout Styles
Different one story 3 bedroom 2 bath house plans offer various arrangements that suit different family needs. The traditional layout places the master bedroom at one end of the house, with two smaller bedrooms on the opposite side. This creates a quiet zone for sleeping and privacy. Another common style puts the master suite in the center, with the other bedrooms on either side. This arrangement allows for a central hallway that connects all rooms. Some designs feature a more open floor plan where the living areas flow together seamlessly. These homes often include features like a great room concept that combines the living, dining, and kitchen areas into one large space. The choice of layout depends on your lifestyle, family size, and personal preferences. Each style has its advantages and can be customized to meet specific needs.

Cost Considerations and Budgeting
Building or buying a one story 3 bedroom 2 bath house plan involves several financial factors to consider. Generally speaking, these homes cost less to construct than multi-story alternatives because they require fewer materials and labor. However, the exact price depends on many variables including location, materials, and design complexity. Basic plans can start around $150,000, while custom designs may reach $400,000 or more. When budgeting, remember to account for:
It's also wise to set aside a contingency fund of 10-15% for unexpected expenses. Working with a contractor who understands your budget can help ensure you get the best value for your investment.
Making Your Home Personal
While following a one story 3 bedroom 2 bath house plan gives you a solid foundation, making it truly yours is where the magic happens. Personal touches transform a house into a home. Consider your family's habits and interests when selecting finishes and fixtures. If you love cooking, invest in quality kitchen appliances and storage. If you entertain often, prioritize a welcoming entrance and comfortable seating areas. The key is balancing functionality with aesthetics. Don't forget about outdoor spaces too. A well-designed porch or patio can extend your living area and improve your quality of life. Lighting choices play a huge role in setting the mood. Layered lighting from overhead fixtures, table lamps, and accent lights creates warmth and versatility. Remember, these plans are just starting points. They provide structure, but your personality should shine through everything you add.
One story 3 bedroom 2 bath house plans offer an excellent blend of practicality, comfort, and affordability. They provide the perfect solution for families seeking a simple yet functional living space. Whether you're building from scratch or renovating an existing structure, these layouts give you a strong framework to work with. The key is finding a plan that matches your lifestyle and then adding your personal touch to make it truly special. With careful planning and thoughtful execution, your one story home can become the perfect sanctuary for your family. It's not just about the number of rooms or bathrooms—it's about creating a space where memories are made and everyday life flows smoothly. These homes prove that sometimes less really is more, offering maximum comfort in a streamlined package that anyone can enjoy.