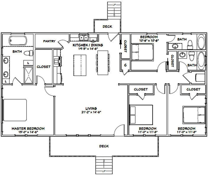
When you're planning a new home, the right floor plan can make all the difference between a space that works for your family and one that feels cramped or confusing. For many families, the 4 bedroom 3 bath 1 story house plan stands out as the sweet spot between spacious comfort and manageable maintenance. These homes offer the convenience of having everything on one level, making them perfect for growing families, aging parents, or anyone who values easy access. Whether you're looking for a modern design with open spaces or a traditional layout with defined rooms, there's a 4 bedroom 3 bath single-story plan waiting to meet your needs.
Think about your ideal living situation for a moment. Maybe it's waking up to a view of your backyard instead of a neighbor's fence. Perhaps it's having a kitchen that flows naturally into your family room, or maybe you want to avoid the daily climb up stairs with tired kids after school. These are just some of the reasons why 4 bedroom 3 bath 1 story house plans have become so popular among homebuyers and builders alike. They represent a smart compromise between space and simplicity, offering enough bedrooms for children or guests while keeping everything within reach of everyone in the family. The single-level design makes these homes particularly appealing to families with young children, elderly relatives, or anyone who prefers a low-maintenance lifestyle. These homes often feature thoughtful layouts that maximize both privacy and togetherness, creating spaces where family members can live independently while still being close.

Popular Layout Options for 4 Bedroom 3 Bath Homes
There's no one-size-fits-all approach when it comes to 4 bedroom 3 bath 1 story house plans, but several common arrangements tend to work well for different lifestyles. One classic option places the master suite on one side of the house with two additional bedrooms on the opposite side, separated by a central hallway or living area. This setup allows for quiet mornings in the master bedroom while keeping the other bedrooms accessible for younger children. Another popular arrangement positions the master bedroom at the back of the home, with the remaining three bedrooms arranged along the front. This can provide excellent privacy for the main sleeping area while keeping the family gathering spaces like the kitchen and dining room easily accessible. Some designs feature a more open concept with all bedrooms clustered together, creating a sense of community and allowing for easier supervision of children. When planning your dream home, consider how you and your family actually use space. Do you prefer private retreats for each person, or do you thrive on shared areas? The right layout will support your daily routines and family dynamics.

Kitchen Design Considerations
The heart of any good 4 bedroom 3 bath home lies in its kitchen design. This space needs to be functional for daily meals while also serving as a gathering place for family conversations. Many single-story floor plans feature islands or breakfast bars that create natural separation between cooking and dining areas. Open kitchens connect beautifully with family rooms, allowing parents to cook while supervising children playing nearby. Consider the workflow when designing your kitchen - the refrigerator, sink, and stove should form a logical triangle. Some homeowners prefer to keep their kitchen separate from the main living areas, especially if they entertain frequently or want to maintain a quieter environment during meal preparation. Modern 4 bedroom 3 bath homes often include features like walk-in pantries, breakfast nooks, or even small dining areas that can accommodate casual family meals. Think about how much storage you'll need for your family's lifestyle - whether you're a busy parent who cooks regularly or someone who prefers simple meals most days.

Bathroom Planning and Features
With three bathrooms in a 4 bedroom 3 bath home, you've got plenty of opportunities to create thoughtful spaces for your family. The master bathroom often gets special attention, featuring amenities like double vanities, separate showers and tubs, or even walk-in closets. But don't overlook the importance of quality bathrooms for the other bedrooms. A well-designed guest bathroom can make visitors feel welcome and comfortable, while a shared family bathroom needs to balance functionality with privacy. Many 4 bedroom 3 bath floor plans include a half-bath near the entrance, perfect for guests or quick trips. Consider including features like energy-efficient lighting, adequate storage, and easy-to-clean surfaces. Smart bathroom choices can also impact resale value, so invest thoughtfully in fixtures and finishes that will stand the test of time. The placement of bathrooms matters too - having one near the master bedroom creates convenience, while others should be distributed to minimize travel time for all family members.

Outdoor Living Spaces and Design Elements
A great 4 bedroom 3 bath home doesn't end at the walls - it extends to outdoor living areas that enhance your family's lifestyle. Many single-story floor plans incorporate patios, decks, or porches that provide seamless transitions between indoor and outdoor spaces. These areas can serve multiple purposes - from morning coffee to evening barbecues, or simply relaxing with family. The orientation of your home plays a big role in maximizing natural light and views. South-facing homes often receive the best morning sun, while west-facing designs might offer beautiful evening views. Consider how you want to use your outdoor space - do you need room for a pool, garden, or sports area? Some 4 bedroom 3 bath plans include screened porches or covered areas that extend usable space year-round. These outdoor elements can increase property value and improve daily enjoyment of your home. Think about accessibility too - how easy will it be to move furniture or create different zones for various activities?

Storage Solutions and Organization
One of the biggest challenges in designing a 4 bedroom 3 bath home is finding enough storage without cluttering the space. This is where thoughtful planning really pays off. Built-in storage solutions like linen closets, mudroom cubbies, or pantry shelves can make a huge difference in maintaining order. Master suites often include walk-in closets or custom storage systems that help organize clothing and accessories efficiently. Consider how much storage you'll need for your lifestyle - a family with lots of seasonal items will need different solutions than those who prefer minimalism. Many modern 4 bedroom 3 bath floor plans include features like garage storage, attic spaces, or even basement areas that can handle overflow. Smart organization isn't just about keeping things tidy; it's about making daily life easier. Think about how often you'll need to access certain items and plan accordingly. Sometimes a simple shelving unit or cabinet can solve a major organizational challenge.
Cost Considerations and Value Factors
Building or buying a 4 bedroom 3 bath 1 story home involves several financial considerations that vary based on location, materials, and design choices. Generally speaking, these homes tend to offer good value because they combine substantial living space with lower maintenance costs compared to multi-story alternatives. The single-level design means no stairs to maintain, fewer potential safety concerns, and easier mobility for aging family members. However, larger floor plans can drive up construction costs, so balancing size with budget is crucial. Consider local building codes, lot sizes, and zoning restrictions that might affect your design options. Energy efficiency features can add to upfront costs but save money over time. The three-bathroom configuration typically increases home value, though the exact return depends on local market preferences. Factor in ongoing expenses like utilities, maintenance, and insurance when considering your total investment. Remember that good design choices today can reduce future costs and increase satisfaction with your home.
Choosing the right 4 bedroom 3 bath 1 story house plan is about more than just square footage or number of rooms. It's about understanding your family's unique needs and finding a layout that supports your lifestyle. Whether you're looking for a cozy traditional design or a modern open-concept space, the key is matching form with function. These homes offer something special - they provide enough space for everyone while keeping life simple and accessible. From thoughtful kitchen designs to carefully planned bathroom layouts, every element should contribute to your daily happiness. Consider not just what you want today, but how your family might grow and change over time. A well-designed 4 bedroom 3 bath single-story home becomes more than just a place to live - it becomes a foundation for creating memories and building relationships. The investment you make in planning and design will pay dividends in comfort, convenience, and lasting family joy. Every family is different, so take time to explore different options and find what works best for your specific situation. The right floor plan doesn't just house your family - it helps define your family's story.