There's something deeply satisfying about a well-designed ranch home. The open floor plan, single-level living, and connection to the outdoors create a lifestyle that many people dream of. When you add five bedrooms to that classic ranch foundation, you get a home that's both functional and inviting. Whether you're planning a new build or remodeling an existing space, understanding the nuances of 5 bedroom ranch style house plans can transform your vision into reality.
Ranch homes have been a cornerstone of American residential design since the mid-20th century. These homes typically feature a low-pitched roof, wide eaves, and large windows that blur the line between inside and outside. When you combine that signature ranch aesthetic with five bedrooms, you're creating a space that's perfect for growing families, extended visits, or even multi-generational living. The beauty of ranch style house plans lies in their simplicity and flexibility. They offer a straightforward approach to home design while still providing room for personalization and innovation. Let's explore what makes 5 bedroom ranch style house plans so appealing and how to make them work for your specific needs.
Understanding the Ranch Style Foundation

The ranch style emerged in the 1930s and gained popularity in the 1950s and 60s. It was designed to be affordable, practical, and comfortable. The basic structure features a long, low building with a single story and often includes a covered porch or deck. These homes typically emphasize horizontal lines and a sense of openness. For a 5 bedroom version, designers must carefully balance the need for extra sleeping spaces with maintaining the ranch's characteristic flow. The key is ensuring that each bedroom gets adequate privacy while keeping the overall floor plan cohesive. Many ranch homes are built with a central living area that connects to dining and kitchen spaces, creating a natural gathering place for family and guests.
Key Layout Considerations
When designing 5 bedroom ranch house plans, several factors become crucial:

The most common configuration places the master suite on one end of the house, with the remaining four bedrooms arranged on either side. This setup allows for quiet sleeping areas while keeping the common spaces easily accessible. Some modern ranch designs incorporate a study or office space that can double as a fifth bedroom when needed. The challenge for architects is creating a home that feels spacious without being overwhelming.
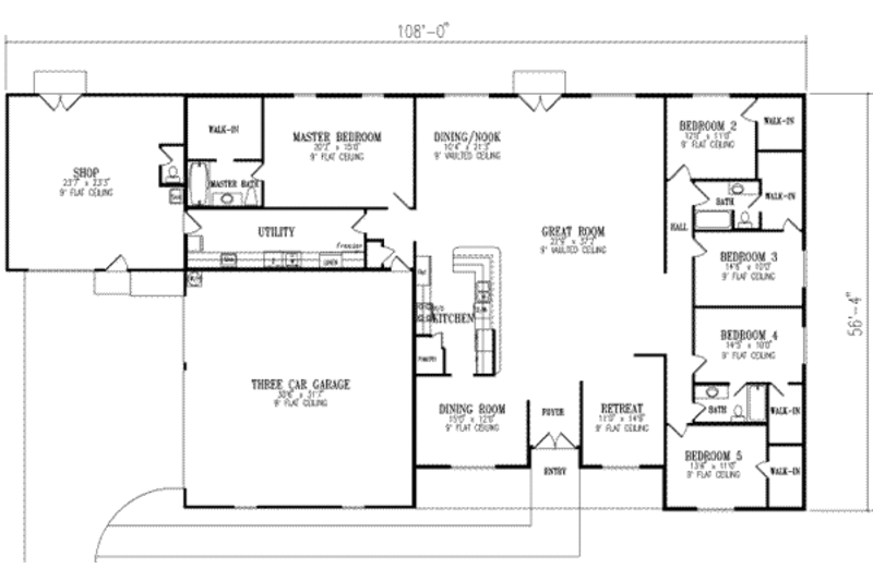
Popular Floor Plan Variations
Not every 5 bedroom ranch looks the same. Here are some common variations:

Each variation offers different advantages. The traditional layout works well for families who want clear separation between private and public spaces. The L-shaped design adds character and can help define outdoor living areas. Split-level versions provide interesting architectural details while maintaining the ranch's low profile. Modern ranches often incorporate large windows, concrete elements, and minimalist design principles.
Space Optimization Techniques
Maximizing every square foot in a 5 bedroom ranch requires thoughtful planning. Here are some effective strategies:

One clever approach is using the space under a stairway for storage or a small reading nook. Another popular technique involves creating a breakfast nook within the kitchen that also serves as a casual dining area. These smart design choices ensure that every part of the home contributes to both function and comfort.
Design Elements That Define Ranch Style
Several distinctive features characterize ranch homes:

In 5 bedroom ranch designs, these elements take on added importance. The wide eaves can provide excellent shade for outdoor entertaining areas, while large windows help illuminate the interior spaces. Open floor plans become essential for managing the larger number of bedrooms, allowing for better traffic flow and more flexible living arrangements. The connection to the outdoors is particularly important in these homes, as they're often designed to encourage outdoor activities and social gatherings.
Modern Updates and Contemporary Features
While the classic ranch style remains popular, many homeowners today want to incorporate modern amenities. Here are some ways to update 5 bedroom ranch house plans:
These enhancements don't compromise the ranch's fundamental appeal but rather enhance its functionality. For example, a modern kitchen with high-efficiency appliances can save energy costs while providing convenience. Smart home systems can improve safety and comfort without changing the home's aesthetic. Many contemporary ranch homes feature solar panels, electric vehicle charging stations, and other green technologies that align with modern lifestyle needs.
A 5 bedroom ranch style house plan represents a wonderful balance between timeless design and practical living. Whether you're building a new home or renovating an existing one, these plans offer flexibility and enduring appeal. The key to success lies in understanding the fundamentals of ranch architecture while incorporating modern needs and preferences. From thoughtful bedroom placement to innovative space-saving techniques, every element contributes to creating a home that's both beautiful and functional. As you consider your own 5 bedroom ranch project, remember that the best designs are those that reflect your lifestyle while honoring the classic elements that make ranch homes so beloved. The investment in careful planning and quality construction will pay dividends in comfort, satisfaction, and potentially increased property value for years to come.