What happens when you squeeze all your dreams into just 900 square feet? You get a home that's perfectly tailored to your lifestyle, with every corner serving a purpose. These compact spaces aren't just about saving money on rent or mortgage payments. They're about embracing intentional living, where each room feels thoughtfully designed and every square foot matters.
In a world where housing costs keep climbing and space becomes increasingly precious, 900 square foot house plans have emerged as the perfect solution for many people. These tiny homes don't just save money – they encourage you to think differently about what you really need versus what you just want. Picture this: a cozy kitchen with breakfast nook, a bedroom tucked away behind a sliding door, and a living area that doubles as a workspace. It sounds limiting, right? But when done right, these small spaces can feel surprisingly spacious and incredibly comfortable.
Why Choose a 900 Square Foot Home?

There are several compelling reasons why people are drawn to 900 square foot house plans. First and foremost, the financial benefits are undeniable. Lower monthly payments mean more money available for experiences rather than maintenance. Consider this: a 900 square foot home might cost $1,200 per month compared to $2,500 for a larger unit. That's nearly $1,300 saved each month. Second, smaller homes require less time and effort to maintain. No sprawling lawns to mow, no huge windows to clean, and no massive rooms to heat or cool. Third, these spaces promote a simpler lifestyle. When everything is within reach, you're less likely to accumulate clutter. The minimalist approach naturally follows. Plus, there's something appealing about having a home that fits perfectly in your life. No wasted space, no unnecessary rooms, just what you actually use.
Smart Layout Strategies
The key to successful 900 square foot house plans lies in thoughtful layout planning. Here are some essential approaches:

Consider a layout where the kitchen, dining, and living areas flow together seamlessly. This creates a feeling of spaciousness even though the actual square footage is limited. Think of it like a well-organized closet – everything has its place, and you can still find what you need quickly.
Essential Design Features
When designing a 900 square foot house plan, certain features become absolutely critical:

These features aren't just clever tricks – they're practical solutions that address real needs. A Murphy bed means you can have a guest room without sacrificing your main living space. A kitchen island provides both functionality and social connection. These elements transform a cramped space into a livable, comfortable environment.
Storage Solutions That Work
Storage in a 900 square foot house requires creativity and smart thinking. Traditional closets and cabinets won't cut it when space is at a premium. Instead, consider:

Think about how you actually live your daily routine. Do you need to store seasonal items? How often do you cook? What do you need to keep visible versus hidden? Answering these questions helps determine the best storage strategy for your situation. For example, if you entertain frequently, you'll want easy access to serving pieces and extra seating options.
Lighting and Color Psychology
Lighting and color choices can make or break a small space. In a 900 square foot home, these elements become even more important. Natural light is always preferable, so consider large windows, skylights, or glass doors wherever possible. When natural light isn't enough, layered lighting becomes essential:

Color-wise, lighter tones reflect light and make spaces feel bigger. White, cream, and soft pastels work wonderfully in small spaces. However, don't shy away from adding pops of color through accessories, artwork, or textiles. These touches bring personality and warmth to otherwise stark environments. Remember, small spaces benefit from consistency in design elements – fewer colors and textures create a more cohesive, spacious feeling.
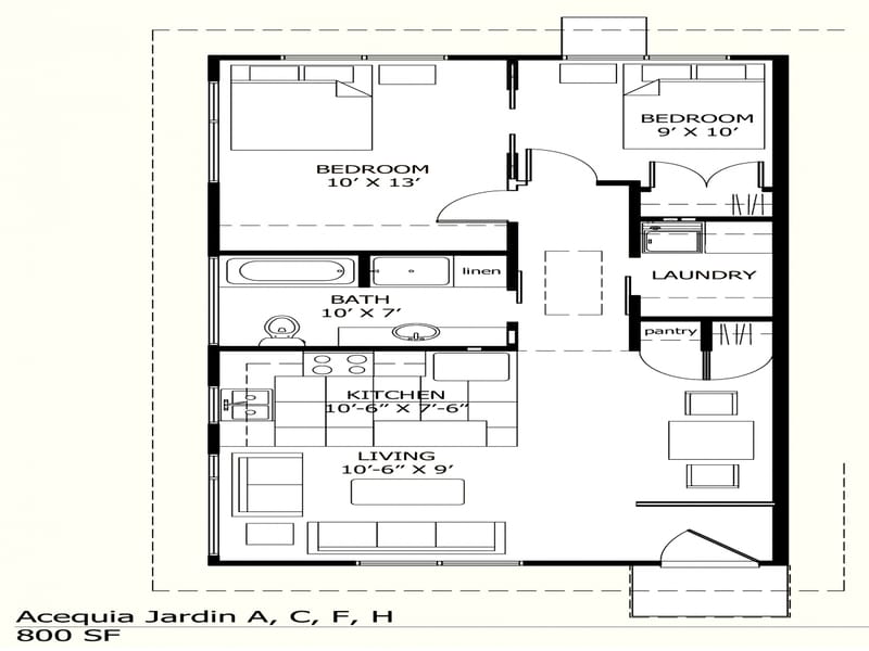
Real-World Examples and Inspiration
Looking at actual 900 square foot house plans can provide valuable inspiration. Many designers have created beautiful examples that prove small spaces can be anything but boring:
These examples show that size doesn't determine style. A 900 square foot home can be elegant, functional, and uniquely personal. Some people choose to build their dream home in this compact space, while others purchase existing tiny homes. Either way, the results can be spectacular. The key is understanding that good design works regardless of square footage.
A 900 square foot house plan represents more than just a small living space – it's a lifestyle choice that emphasizes intentionality, efficiency, and creativity. These homes teach us that happiness doesn't require excess, and that comfort comes from thoughtful design rather than sheer size. Whether you're considering building your own tiny home or simply looking for ways to optimize your current living situation, remember that the best small spaces are those that align with how you actually live. The challenge isn't just fitting everything into 900 square feet – it's figuring out what truly matters to you. When you've got the right plan, a small space can feel like a perfect fit for your entire life.