Imagine walking into your home and feeling completely at ease. Every room flows naturally into the next, every corner serves a purpose, and the space feels both cozy and spacious. That's exactly what happens when you thoughtfully design a 1500 square foot house plan. This size strikes that perfect balance between comfort and efficiency, offering enough room for family life while remaining manageable to build and maintain.
When it comes to home planning, 1500 square feet represents a sweet spot that many people find appealing. It's large enough to accommodate a family comfortably, yet small enough to manage efficiently. Whether you're starting fresh or renovating an existing space, understanding how to maximize this square footage can transform your living experience. This guide will walk you through everything from basic layout considerations to smart design choices that make the most of every inch.
Understanding the 1500 Square Foot Advantage
A 1500 square foot home offers several distinct benefits that make it attractive to homeowners across different life stages. First, it provides adequate space for a family of four or five, with room for bedrooms, bathrooms, and common areas. The compact nature also means lower costs for construction, utilities, and maintenance compared to larger homes. Many people find that this size allows them to live comfortably without the overwhelm of managing too much space.
The key is knowing how to use each square foot wisely. Think about your lifestyle and daily routines. Do you entertain often? Are you a home cook who loves having a large kitchen? These factors should guide your decisions about where to place rooms and how to arrange them. For instance, if you're a frequent entertainer, consider opening up the dining area to connect with the kitchen and living room. If you work from home, having a dedicated office space becomes crucial even in smaller layouts.
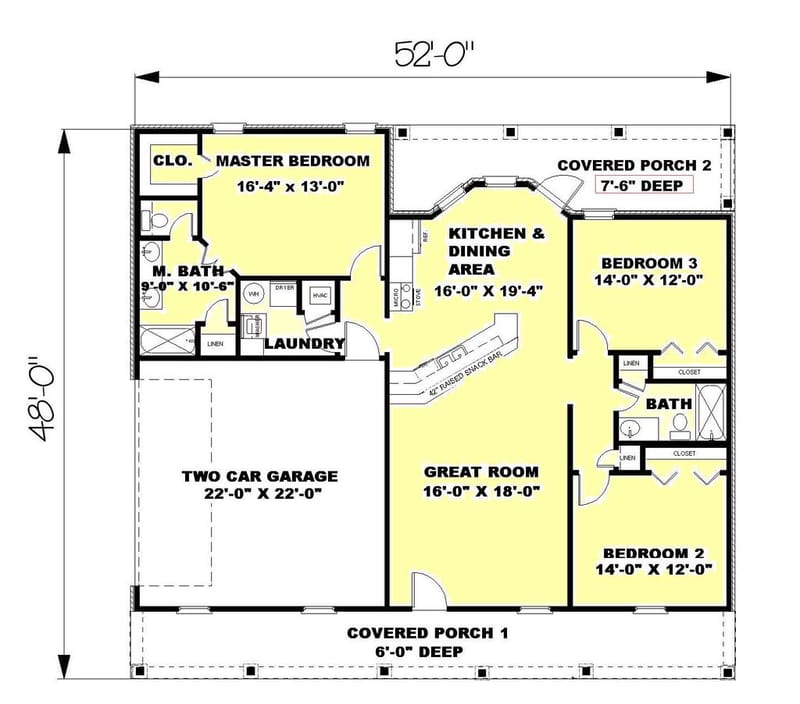
Essential Room Layouts and Configurations

Designing your 1500 square foot home starts with strategic room placement. Here are some popular configurations that work well:
Let's break down what works best. An open concept design can make a 1500 square foot home feel much larger than it actually is. Think about creating a central hub where family members can gather. The kitchen should be the heart of the home, ideally positioned near the living area and dining space. Consider a breakfast nook or island that serves multiple functions.
In terms of bedrooms, most 1500 square foot homes feature two to three bedrooms. A master suite with ensuite bathroom is almost always a priority. This setup allows for privacy while maximizing the available space. You might also consider a guest room or home office that can double as additional sleeping space during visits.
Smart Storage Solutions for Compact Living
One of the biggest challenges with 1500 square foot homes is managing storage without cluttering the space. Creative solutions can make all the difference. Built-in storage systems are incredibly effective - they blend seamlessly with the architecture while providing maximum capacity. Think about incorporating shelving into walls, using vertical space for tall bookcases, and installing storage in unexpected places like under stairs or in closets.
Consider multi-functional furniture pieces that serve more than one purpose. A coffee table with hidden storage can hold blankets and magazines while maintaining a clean look. Murphy beds can transform a guest room into a regular space during the day. Even small details matter - drawer organizers, pegboards for tools, and labeled bins can keep everything in its place.

The goal isn't just to store things, but to make storage easy to access and maintain. When everything has a designated spot, your home stays organized and feels less cramped. This is particularly important when you're working with limited space - every item should have a reason for being there.
Kitchen Design for Maximum Functionality
The kitchen is often considered the most important room in any home, especially when you're working within 1500 square feet. Designing a functional kitchen requires balancing aesthetics with practicality. Start with the workflow triangle - the relationship between refrigerator, sink, and stove. Keeping these elements within reasonable proximity helps streamline meal preparation.
For a 1500 square foot home, consider a galley-style kitchen if space is tight, or an L-shaped layout if you have more flexibility. Island designs can provide extra prep space and seating for casual meals. Don't overlook the importance of good lighting - combine ambient, task, and accent lighting to create a welcoming environment.
Storage planning is equally critical. Plan for both daily items and seasonal goods. Pull-out shelves in cabinets make deep pantries more accessible. Consider a pantry that can be reached from both sides for better organization. The key is to make everything visible and reachable without having to dig around for items.
Bathroom Planning and Efficiency

Bathrooms represent another crucial element of 1500 square foot home planning. With typically two bathrooms in this size range, careful consideration of layout and functionality is essential. A master bathroom with separate shower and tub is highly desirable, but even smaller bathrooms can be designed to feel spacious.
Start with proper sizing - a minimum of 36 inches wide for shower stalls and 60 inches for bathtubs. Consider walk-in showers instead of traditional tubs to save space while adding a modern touch. Double vanities in shared bathrooms can accommodate morning routines more efficiently.
Lighting plays a significant role in bathroom design. Natural light is ideal, but artificial lighting should provide adequate illumination for grooming tasks. Recessed lighting, sconces, and overhead fixtures should work together to eliminate shadows. Don't forget about ventilation - good exhaust fans prevent moisture buildup and maintain air quality.
Think about accessibility too. Consider grab bars in showers, non-slip surfaces, and appropriate height for fixtures. These features ensure safety for all family members, regardless of age or mobility needs.
Outdoor Spaces and Integration
Even in a 1500 square foot home, outdoor space matters greatly. Whether you have a backyard, deck, or just a small patio, connecting indoor and outdoor living areas enhances the overall experience. A covered porch or deck can extend your living space during pleasant weather, providing a transition between inside and outside.

Consider how you want to use your outdoor area. Is it for entertaining guests, gardening, or quiet relaxation? The answer affects the size and design of your outdoor space. For smaller lots, focus on multi-purpose areas that can serve various functions. A covered patio might work for dining in summer and hosting small gatherings.
Integration between indoor and outdoor spaces can be subtle but impactful. Large windows, sliding doors, and consistent flooring materials create visual continuity. Plants and natural elements bring life to outdoor areas and make them feel more inviting. Think about how your outdoor space complements your indoor design rather than competing with it.
Budget Considerations and Cost Management
Working within a budget for a 1500 square foot home requires strategic thinking about where to invest and where to save. Construction costs vary significantly based on location, materials, and complexity. Generally speaking, expect to spend between $150-300 per square foot depending on finishes and regional factors.
Prioritize spending on areas that affect daily life most. Kitchen and bathroom upgrades often provide the highest return on investment and improve quality of life. Flooring choices can significantly impact both appearance and cost - hardwood floors last longer but are more expensive than vinyl or laminate.
Energy efficiency is increasingly important in home design. Insulation, efficient windows, and smart HVAC systems reduce long-term costs. Consider solar panels or energy-efficient appliances to offset utility bills over time. These investments may require upfront payment but pay dividends in savings.

Planning ahead for potential changes is wise. Having electrical outlets in strategic locations, extra plumbing connections, and flexible floor plans allows for future modifications without major renovations.
Future-Proofing Your Home Design
Creating a 1500 square foot home that will serve you well for years to come means considering flexibility and adaptability. As families grow and lifestyles change, your home should be able to evolve with them. This approach prevents the need for costly renovations later on.
Start with modular design principles. Choose furniture and fixtures that can be easily rearranged or replaced. Open floor plans offer more flexibility than fixed walls. Consider how your current needs might change in five or ten years - will you need more bedrooms, a home office, or additional storage?
Technology integration is becoming standard. Smart home features like programmable thermostats, security systems, and lighting controls should be planned into your design from the beginning. These systems often require wiring and infrastructure that's easier to install during construction than retrofitting later.
Accessibility features, such as wider doorways and single-level living, benefit not just aging family members but everyone who uses the home. These elements make your space safer and more comfortable for all residents.
Designing a 1500 square foot home is both an art and science. It requires thoughtful planning, creative problem-solving, and an understanding of how people actually live. The key is recognizing that this size doesn't limit your possibilities - it focuses them. Every room should serve a purpose, every space should flow naturally, and every design choice should support your lifestyle.
Whether you're building new or renovating, remember that this space is yours to shape according to your needs and preferences. The beauty of 1500 square feet lies in its ability to offer comfort and functionality without overwhelming you with maintenance or expense. By focusing on smart layouts, practical storage solutions, and thoughtful design choices, you can create a home that truly feels like your own. The investment you make in planning now will pay off in countless moments of satisfaction and ease in the years to come.