Imagine walking into your home and feeling completely at ease. Every room flows naturally, every space serves a purpose, and there's never a moment when you feel cramped or overwhelmed. That's exactly what a well-designed 4-bedroom single story floor plan can offer. Whether you're planning a new build or reimagining your current space, understanding how to structure your home efficiently is crucial.
When it comes to designing a home, few layouts capture the hearts of families quite like the 4-bedroom single story floor plan. These designs have stood the test of time because they strike the perfect balance between spaciousness and practicality. They offer easy access for all family members, including elderly relatives or young children, while still providing enough room for privacy and personal space. Think of it as the sweet spot between a cozy bungalow and a sprawling mansion. The beauty of this layout lies not just in its simplicity, but in its versatility. You can customize it to suit everything from a growing family to a multigenerational household. This article will guide you through everything you need to know about creating and choosing the best 4-bedroom single story floor plan for your unique situation.

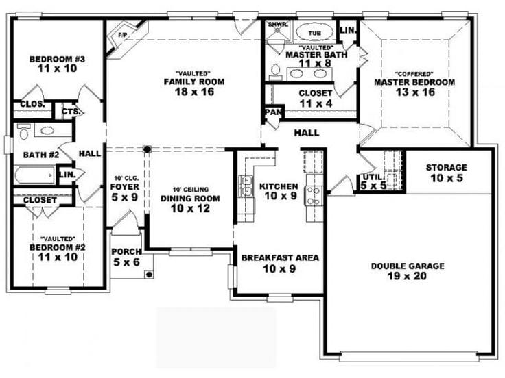
Understanding the Basics of Single Story Design
Single story homes might seem simple on the surface, but they actually require careful consideration of space allocation and flow. Unlike multi-level homes, every room must work together seamlessly in one continuous space. This means that the kitchen, dining area, and living spaces often blend into one another, creating a sense of openness that many people find appealing. The key to success lies in thoughtful placement of rooms. For instance, bedrooms are typically placed toward the back of the house, away from high-traffic areas. The front part of the home usually accommodates the living room, dining area, and possibly a study or guest room. Think about how you move through your home daily. Where do you spend most of your time? Where do you need privacy? These questions will guide your decisions about room placement.

Key Room Arrangements and Layout Options
There are several popular configurations for 4-bedroom single story homes. The most common setups include:

Each arrangement offers distinct advantages. For example, a split-bedroom design can provide better privacy for parents, while a flexible layout allows for adaptable spaces that can evolve with your family's needs. Consider how your family functions. Do you need a dedicated space for work? Should there be a quiet area for reading? These practical considerations influence which layout works best for you. Some homeowners prefer having their master suite at the back, away from the main activity areas, while others want it positioned for easy access to shared bathrooms.
The Importance of Natural Light and Ventilation

One of the greatest benefits of single story homes is their ability to maximize natural light and airflow. With all rooms on one level, you have more opportunities to position windows strategically. South-facing rooms tend to receive the most sunlight, making them ideal for living areas and kitchens. North-facing rooms often provide cooler spaces, perfect for bedrooms or studies. Good ventilation isn't just about comfort – it's about health too. Fresh air circulation helps reduce moisture buildup and prevents mold growth. When planning your floor plan, think about cross-ventilation. Can you position windows opposite each other to create a breeze? What about sliding doors that open onto patios or gardens? These features don't just look good – they improve your quality of life. Many homeowners report feeling more energized and less stressed in homes with abundant natural light and fresh air.
Practical Considerations for Family Living

A successful 4-bedroom single story floor plan addresses the real-life needs of families. Consider how many people will actually live in the home. Are you planning for future growth? Will grandchildren visit regularly? These factors affect room size and functionality. The kitchen deserves special attention since it's often the heart of family life. It should accommodate both cooking and socializing. A large island or breakfast bar can serve dual purposes. Bathrooms are another critical element. Having at least one full bathroom near the bedrooms ensures convenience for everyone. Also consider accessibility – are there steps that might be difficult for elderly family members? Smooth transitions between rooms make daily life easier for everyone. Think about storage too. How much space do you need for clothes, books, and seasonal items? Smart storage solutions integrated into the design can make a huge difference in keeping your home organized.
Cost-Effective Design Strategies
Building or remodeling a home can be expensive, but there are ways to optimize costs without sacrificing quality. One smart approach is to keep similar-sized rooms throughout the home. This simplifies construction and reduces material costs. Another strategy involves using the same flooring materials in multiple areas. Not only does this create visual continuity, but it also saves money. Consider how you'll use each room. If a space won't see heavy traffic, you might choose more affordable finishes. However, don't skimp on essentials like insulation or electrical systems. These improvements pay dividends in energy savings over time. Sometimes the most cost-effective solution is to work with existing features rather than trying to change them entirely. For example, if your lot has a natural slope, consider incorporating it into your design instead of fighting against it.
Modern Trends and Features to Consider
Today's homeowners are looking for more than just basic functionality. Modern 4-bedroom single story floor plans incorporate trends that enhance both comfort and style. Open concept living has become increasingly popular, especially among families who enjoy entertaining. This design philosophy removes walls between the kitchen, dining, and living areas, creating a seamless flow. Smart home technology is another growing trend. Integration of lighting controls, security systems, and automated climate control can significantly improve convenience. Outdoor living spaces are also essential in modern design. A covered patio, deck, or garden area extends the usable space of your home and provides places for relaxation. Energy efficiency matters more than ever. Solar panels, efficient appliances, and sustainable building materials can reduce long-term costs while protecting the environment. Finally, consider flexibility. How will your home adapt to changing needs? Perhaps you'll need a home office, or maybe you'll want to convert a room into a gym or craft space. Designing with future possibilities in mind makes your investment more valuable.
Creating the perfect 4-bedroom single story floor plan is both an art and a science. It requires balancing practical needs with aesthetic preferences while considering your family's unique lifestyle. The key is to start with a clear understanding of what matters most to you and your household. Whether you prioritize natural light, family privacy, or cost efficiency, there's a layout that can meet your needs. Remember that this is your home – it should reflect your personality and support your way of life. Don't be afraid to experiment with different arrangements until you find something that feels right. The process of designing your dream home can be exciting, and the end result will likely exceed your expectations. Take your time, explore various options, and trust your instincts. After all, you'll be living in this space for years to come, so make sure it truly works for you and your family.