Picture this: you're standing in the middle of your new home, looking around at the open spaces, the natural light streaming through windows, and the thought of family gatherings filling every room. That's what a well-designed 4-bedroom ranch home can offer. These homes have been a favorite for decades because they balance comfort, functionality, and space in ways that feel both modern and timeless.
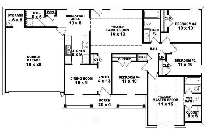
When it comes to home design, few layouts capture the essence of comfortable living quite like the 4-bedroom ranch house. This classic style has stood the test of time, and for good reason. It offers families the perfect blend of open-concept living and private sleeping areas. Whether you're planning a new build, remodeling an existing space, or simply dreaming about your next home purchase, understanding how to approach a 4-bedroom ranch floor plan is essential. These homes are all about creating a seamless flow between the main living areas and bedrooms while maximizing the usable space.
What Makes a Ranch House Special

Ranch homes are more than just architectural styles—they represent a lifestyle. They typically feature a single story with a low-pitched roof and wide, horizontal lines that stretch across the landscape. The beauty of a 4-bedroom ranch lies in its ability to provide separate zones for different activities without feeling fragmented.
Think about it: you want your family room to flow into the kitchen, but you also need quiet spaces for bedrooms and a place for guests to stay. A well-planned ranch floor plan makes this possible. The layout naturally encourages conversation and connection while still offering privacy where needed.
The key is finding the right balance between openness and separation. In many cases, the living areas are positioned near the front of the house, making it easy for visitors to enter and feel welcome. Meanwhile, the bedrooms are usually tucked toward the back, providing a peaceful retreat from daily life.

Popular Layout Options
Not every 4-bedroom ranch looks the same. There are several popular configurations that designers and homeowners often choose:
Each of these layouts offers unique benefits depending on your lifestyle and preferences. The open concept tends to appeal to younger families who love to entertain, while traditional layouts might suit those who prefer more defined spaces.

Essential Room Considerations
Every room in a 4-bedroom ranch plays a role in creating a functional and enjoyable home. Here's what to think about when planning each area:
Space Optimization Tips

One of the biggest challenges in designing a 4-bedroom ranch is making the most of limited square footage. Here are some smart strategies:
These tips aren't just about saving space—they're about creating a home that feels spacious and lived-in rather than cramped and sterile.
Design Trends for Today's Ranch Homes

Modern 4-bedroom ranch homes reflect current design trends while maintaining their classic appeal. Some popular elements include:
These modern touches don't compromise the ranch's traditional charm—they enhance it. They make the home feel contemporary without losing its welcoming character.
Practical Planning Considerations
Before you finalize any floor plan, consider these practical factors:
Remember, even small changes can impact the entire design. Sometimes it's better to start with a simpler plan and expand later rather than overcomplicate things upfront.
A 4-bedroom ranch home represents more than just a place to live—it's a foundation for creating lasting memories with family and friends. Whether you're drawn to the open concept, the classic charm, or the practicality of a straightforward layout, the right floor plan can transform your dreams into reality. The key is thinking about how you actually want to live, not just how you think you should live. Take time to explore different layouts, consider your lifestyle, and remember that the best floor plan is one that works for your family today—and tomorrow. With thoughtful planning and attention to detail, your 4-bedroom ranch can become the heart of your community and the center of countless happy moments.