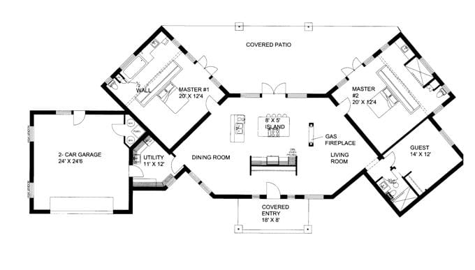
Picture this: a sprawling ranch home where each family member gets their own private sanctuary. That's exactly what two master suites can offer. These spacious layouts combine the comfort of traditional ranch design with modern luxury requirements. Whether you're planning your dream home or considering a renovation, understanding how to properly incorporate dual master suites into a ranch floor plan opens up exciting possibilities for family living.
When it comes to ranch-style homes, there's something special about the open, comfortable feel they provide. But what happens when you want to add a touch of luxury while maintaining that classic ranch charm? Enter the two-master suite ranch plan. This design approach brings together the best of both worlds - the casual, spacious nature of a ranch home and the privacy and amenities of having separate master retreats. It's like having your own personal oasis within your own home. These floor plans aren't just about having more space; they're about creating distinct areas of comfort and relaxation for different family members.
Understanding the Appeal of Dual Master Suites
The appeal of two master suites goes beyond just having extra bedrooms. Think about it - how many families actually have two adults who want to sleep in separate rooms? Maybe you're a couple with different schedules, or perhaps you have teenage children who prefer their own space. The beauty of a two-master suite layout is that it respects individual needs while keeping everyone close enough to share family moments.

Consider the advantages:
This setup works especially well for busy households where everyone needs some quiet time. It's not about being selfish - it's about maximizing comfort and reducing daily friction.
Key Layout Considerations
Planning a ranch with two master suites requires careful attention to several important factors. First, think about the overall flow of your home. Where do you want each master suite located? Do you prefer them on opposite sides of the house for maximum separation, or side-by-side for easy access?

Here are the main elements to consider:
One popular arrangement places one master suite near the front of the house for guests, while the other sits toward the back. This creates a nice balance between social areas and private retreats. Some designers even incorporate a shared hallway or common area between the suites for added connection.
Space Optimization Strategies
Maximizing every square foot becomes crucial when designing a ranch with dual master suites. You don't want to sacrifice the open feeling that makes ranch homes so appealing. The key is smart zoning and thoughtful placement.

Let's talk about practical approaches:
A common mistake is making the master suites too isolated from family activities. Instead, aim for a balance where families can still connect easily while maintaining their personal spaces. Sometimes, a small sitting area or reading nook between suites can bridge the gap nicely.
Practical Benefits for Modern Families
These dual master suite designs address real-life concerns that modern families face. For starters, they accommodate different lifestyle preferences within the same household. One person might prefer morning coffee in solitude, while another wants to start their day quietly. Both can do so without disturbing each other.

Additional practical advantages include:
It's worth noting that these setups also tend to increase property values. Potential buyers often see the dual master suite feature as a significant selling point, particularly in areas where family dynamics matter greatly.
Design Elements That Enhance the Experience
The right design touches can transform a functional ranch floor plan into a truly luxurious experience. Lighting plays a major role here - soft, warm lighting in master suites creates the perfect atmosphere for relaxation. Consider:

Some homeowners love incorporating spa-like bathrooms with soaking tubs and separate showers. Others prefer walk-in closets with custom organization systems. The beauty lies in personalizing these spaces to reflect individual tastes and lifestyles. Even simple additions like built-in bookshelves or cozy seating areas can make a huge difference in how these spaces feel.
Cost Considerations and Value Analysis
Adding two master suites to a ranch design does come with increased costs, but the investment can pay off in several ways. Construction expenses typically rise by 10-20% compared to standard ranch layouts. However, this increase often translates into higher resale value and greater satisfaction for homeowners.
Important financial factors to keep in mind:
Many homeowners find that the cost difference is justified by the improved quality of life. When you factor in reduced stress from better sleep and more personal space, the investment starts to look pretty reasonable. Plus, the added privacy means less need for soundproofing or separate construction later.
Ranch floor plans with two master suites represent a thoughtful evolution of traditional home design. They acknowledge that modern families have diverse needs while preserving the welcoming, open spirit that makes ranch homes so beloved. Whether you're planning a new build or renovating an existing space, these dual-suite layouts offer a compelling blend of comfort, privacy, and practicality. The key is finding the right balance between individual retreats and family connectivity. With careful planning and attention to detail, you can create a home that truly serves everyone in your family. After all, isn't that what great home design is all about?