There's something deeply satisfying about a well-designed 2 bedroom ranch style house plan. These homes have been beloved for decades because they offer the perfect balance between functionality and comfort. Whether you're planning your first home, downsizing, or building a vacation retreat, understanding ranch style house plans can help you create the space you've always dreamed of.
Ranch style homes have been a staple of American residential architecture since the mid-1900s. These homes typically feature a single story design with a low-pitched roof, large windows, and open floor plans. When it comes to 2 bedroom ranch house plans, there's a surprising amount of variety to explore. From traditional layouts to modern interpretations, these designs can accommodate everything from young families to retirees. The beauty of ranch style architecture lies in its simplicity and efficiency. Every square foot counts, and every room serves a purpose. This makes 2 bedroom ranch plans particularly appealing for those who want a functional home without the complexity of multi-level living.
Understanding the Basics of Ranch Style Design

Ranch style homes emerged in the 1930s and really took off after World War II. They were designed to provide affordable, comfortable housing for the growing middle class. The fundamental characteristics include:
These features work together to create a sense of spaciousness even in compact designs. The horizontal emphasis means that 2 bedroom ranch homes often appear larger than their actual square footage suggests. Many people find that this style makes small spaces feel more open and airy. The design philosophy behind ranch homes prioritizes comfort over grandeur, focusing on practicality and easy living.
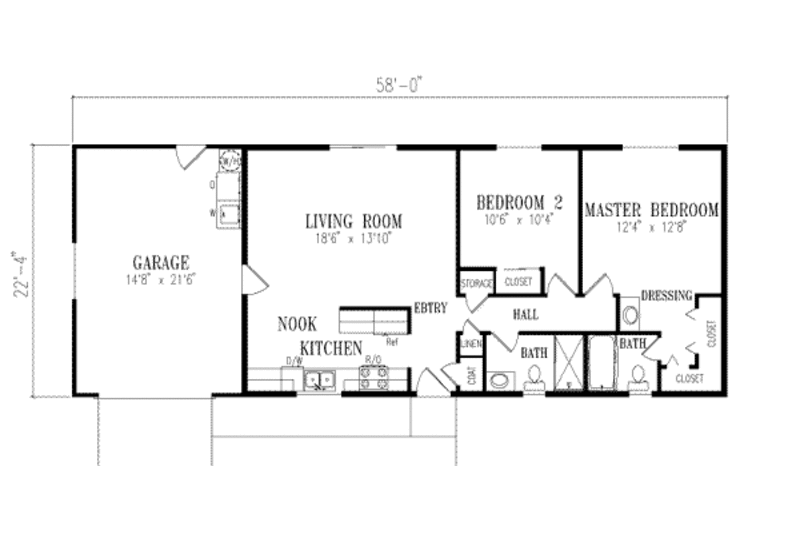
Popular Layout Options for 2 Bedroom Ranch Homes

When designing a 2 bedroom ranch house plan, several layout configurations stand out as particularly effective. Here are some of the most common approaches:
Each layout offers different advantages. For instance, the front-to-back layout allows for better privacy between bedrooms while keeping the kitchen and living areas central. Side-by-side arrangements work well for families with children who might prefer to share a hallway. The master suite configuration provides added luxury and privacy for one occupant. The flexible approach gives homeowners the freedom to adapt their space over time.
Essential Features and Design Elements

A successful 2 bedroom ranch home plan incorporates several key design elements that enhance both aesthetics and functionality:
The kitchen often becomes the heart of the home, especially in ranch style designs. Many homeowners choose to place the kitchen near the dining area and living room to encourage family interaction. Storage solutions are crucial in smaller homes, so thoughtful cabinetry placement and built-in options become essential design decisions. Windows aren't just decorative - they serve important roles in ventilation and natural lighting throughout the day.
Space Optimization Strategies

One of the biggest challenges in 2 bedroom ranch plans is maximizing every available square foot. Smart design solutions can make a significant difference:
These strategies allow homeowners to maintain a clean, uncluttered appearance while meeting all their storage needs. The key is thinking beyond traditional storage methods. For example, a breakfast nook can serve as both dining space and extra seating. A hallway can accommodate a small reading area or display shelves. The goal isn't to cram everything into the space but rather to create efficient systems that support daily life.
Considerations for Modern Living

Contemporary 2 bedroom ranch plans often incorporate updated features that reflect current lifestyle preferences:
Many modern ranch homes also emphasize outdoor living spaces. Patios, decks, and screened porches have become standard features that extend the usable area of the home. These spaces are perfect for entertaining guests or enjoying quiet moments outdoors. The integration of technology into these older design styles shows how ranch homes continue to evolve while maintaining their core appeal.
Cost Considerations and Budget Planning
Building or remodeling a 2 bedroom ranch home involves several financial factors to consider:
Budgeting effectively requires understanding that the most expensive aspects are often the foundation and framing. Materials selection plays a big role in final costs. While high-end finishes will increase expenses, many homeowners find that investing in quality insulation, windows, and energy-efficient appliances pays dividends in reduced utility bills. It's also worth noting that ranch homes often require less maintenance than multi-story alternatives, which can save money over time.
2 bedroom ranch style house plans represent more than just architectural choices - they embody a way of life that values simplicity, comfort, and practicality. Whether you're drawn to the classic charm of traditional ranch homes or the modern innovations of contemporary designs, these plans offer versatile solutions for various lifestyles and budgets. The key is finding a layout that works for your specific needs while respecting the fundamental principles that make ranch style so enduring. With careful planning and thoughtful design, a 2 bedroom ranch home can provide years of satisfaction and enjoyment. The timeless appeal of these homes continues to attract new owners who appreciate both their aesthetic qualities and functional benefits. As you explore different 2 bedroom ranch plans, remember that the best design is ultimately one that supports your daily life and reflects your personal style.