Imagine walking into a home that feels both rustic and modern, strong yet welcoming. Picture walls that stand tall against weather and time, and spaces that feel open and alive. That's what pole barn homes can offer. These structures aren't just about functionality – they're about creating a place where life happens. They've become more than just farm buildings or storage spaces. Today, they're transforming into beautiful living spaces that blend practicality with style. Whether you're looking for a cozy retreat or a spacious family home, pole barn plans offer something special.
When you think of pole barn homes, you might picture simple structures with metal roofs and basic layouts. But the reality is much more exciting. These homes have evolved dramatically over the past few decades, becoming sophisticated living spaces that combine strength, flexibility, and charm. The beauty of pole barn house plans lies in their simplicity and adaptability. You can build them with various materials, styles, and sizes. The key is understanding how to plan them right from the start. Whether you're planning to build one yourself or working with a contractor, knowing the essentials helps you make smart decisions. This guide will walk you through everything you need to know about pole barn home house plans, helping you turn your dream into reality.
What Makes Pole Barn Homes Special?

Pole barn homes are different from traditional stick-built homes in several ways. First, they use poles or posts that are driven into the ground to support the structure. These poles are typically made of wood or steel and act like pillars holding up the roof and walls. The result? A strong, stable building that can handle heavy loads and harsh weather conditions. Many people love the open floor plans these homes offer. Without interior load-bearing walls, you can create huge, airy spaces that feel more connected. Imagine having a kitchen that flows seamlessly into the living area, or a great room that spans the entire width of your home. It's not just about the size either. The construction method allows for creative designs that can look both contemporary and traditional. Plus, because they're built with fewer materials and less complexity, they often cost less to build than conventional homes. This makes them attractive to first-time homebuyers and budget-conscious builders alike. Another advantage is the flexibility in design. You can customize almost every aspect of the layout, from the number of bedrooms to the placement of windows and doors. The possibilities are really endless when you're working with a pole barn framework.
Essential Design Elements to Consider
Planning a pole barn home starts with understanding the key elements that make a good design. Here's what to focus on:

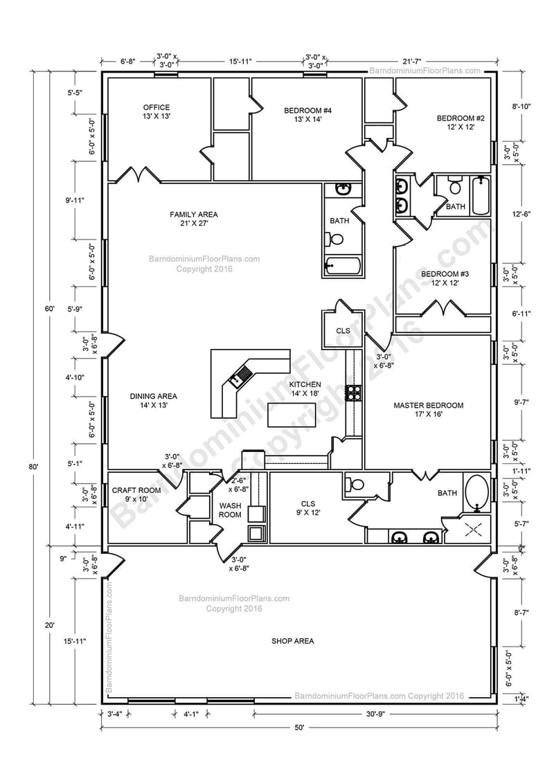
Popular Layout Styles and Configurations
The beauty of pole barn home plans lies in their versatility. Here are some popular configurations people choose:
Each configuration offers unique advantages and challenges. The key is matching the design to your lifestyle and needs. Consider how you actually use your space and what makes you happy. What matters most to you in your home?

Cost Considerations and Budget Planning
Building a pole barn home involves several costs that vary based on size, materials, and features. Here's a breakdown of typical expenses:
Remember, these numbers are approximate and can vary greatly based on your location, the complexity of the design, and local labor costs. It's wise to build a buffer of 10-20% into your budget for unexpected expenses.

Building Process and Timeline
The actual construction process of a pole barn home can take anywhere from 3 to 6 months, depending on several factors. Here's what to expect:
The timeline can be affected by weather delays, permit issues, or material shortages. Some people choose to do certain phases themselves to save money, while others prefer to hire professionals for everything. Whatever approach you take, staying organized and maintaining clear communication with your team is essential.

Tips for Success and Common Mistakes to Avoid
Building a successful pole barn home requires attention to detail and smart planning. Here are some key tips:
Common pitfalls include underestimating costs, rushing the permitting process, and overlooking local building codes. Many people also forget to account for the time needed for inspections and approvals. Taking your time with planning and research will save you stress and money in the long run.
Final Thoughts on Pole Barn Home Design
Pole barn homes represent a unique opportunity to create something special. They combine the strength and efficiency of industrial construction with the comfort and beauty of residential living. Whether you're drawn to their affordability, their customizable nature, or their ability to fit into challenging landscapes, they offer real benefits. The key is starting with solid plans and realistic expectations. Remember that building a home is a journey, not just a destination. Take time to consider what matters most to you in your living space. Do you want privacy or openness? Are you looking for low maintenance or maximum customization? These questions will guide your design choices and help you create a home that truly fits your life. The beauty of pole barn plans is that they can be adapted to almost any situation, making them a smart choice for many people seeking affordable, functional housing.
Pole barn home house plans offer an exciting alternative to traditional construction methods. They combine practicality with creativity, allowing homeowners to build strong, beautiful spaces that meet their specific needs. Whether you're considering a simple single-story design or a more elaborate multi-level home, the flexibility of pole barn construction provides numerous possibilities. The key to success lies in thoughtful planning, quality materials, and realistic expectations. By understanding the design elements, budget considerations, and construction process, you can confidently move forward with your pole barn home project. The result isn't just a building – it's a place where memories are made and lives are lived. As you begin planning your dream home, remember that every great structure starts with a solid foundation, both literally and figuratively. Take your time, do your research, and trust in the proven strength of pole barn design.