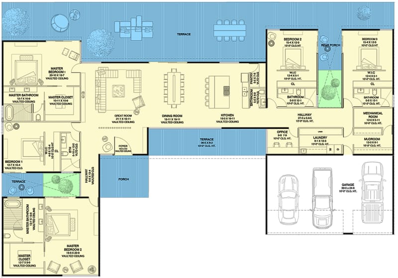
When you think about the perfect family home, what comes to mind? Maybe a sprawling ranch style house with two master suites, offering privacy and comfort for everyone in the household. These layouts aren't just fancy dreams anymore – they're becoming increasingly popular among families who want both space and sophistication. Let's explore what makes these designs special and how to make the most of them.
Ranch homes have long been beloved for their open, welcoming feel and practical design. But when you add two master suites to the mix, you're creating something truly special. These homes offer the best of both worlds: the casual, comfortable atmosphere of traditional ranch living and the luxury of private retreats for each family member. Whether you're planning a new build or remodeling an existing home, understanding how to properly incorporate two master suites into a ranch floor plan can transform your entire living experience.
What Makes Ranch Homes Special
Ranch houses have been around for decades, and for good reason. They're built low to the ground, typically with one story, and designed to feel like a single, continuous room. This creates an open feeling that makes large gatherings easy and comfortable. The long, horizontal lines of ranch homes make them feel spacious even when they're not massive. Think of the classic California ranches from the 1950s, or modern interpretations that blend seamlessly with today's lifestyle needs.
The beauty of ranch architecture lies in its simplicity. You've got the main living areas, kitchen, dining, and bedrooms all arranged in a straightforward, logical way. When you add two master suites to this foundation, you're essentially creating two separate living quarters within one larger home. It's like having a small apartment within your main house.

Many families find this arrangement particularly appealing because it provides personal space while maintaining family connection. The suites can be positioned to face different directions, offering varying views and light conditions. One might overlook the backyard garden, while the other looks out toward the mountains or city skyline.
Layout Considerations for Dual Master Suites
Planning two master suites requires careful thought about how the home will function. The first thing to consider is whether the suites should be side-by-side or separated by common areas. Side-by-side arrangements work well when you want to keep family members close together, especially if you have young children or elderly relatives who might need quick access to each other.
On the other hand, having suites on opposite sides of the house can provide more privacy and independence. This setup works especially well for married couples who prefer separate sleeping spaces but still want to be part of the same household.
Key elements to think about:

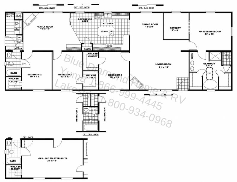
Some homeowners choose to make the master suites identical in size and features, while others give one suite more space or unique amenities. The decision often comes down to family needs and lifestyle preferences.
Designing the Perfect Master Suite
Each master suite deserves special attention when designing a ranch home. These spaces should feel like private sanctuaries, with enough room for comfort and personalization. The standard approach includes a bedroom, walk-in closet, and ensuite bathroom.
Let's talk about what makes a great master suite:
The key is to make each suite feel like a retreat from the rest of the house. The design should reflect personal taste while remaining functional and comfortable.

Practical Benefits of Dual Master Suites
Beyond aesthetics, there are many practical advantages to having two master suites in a ranch home. For starters, it gives everyone in the household their own private space. This is particularly important for families with teenagers who need more independence, or couples who prefer to sleep separately.
Here are some real-world benefits:
For working professionals, having separate suites can mean better sleep quality. One person can watch TV late while the other sleeps peacefully, without disturbing the household's peace.
In multi-generational households, dual master suites allow parents and adult children to live together while maintaining individual privacy.

Common Mistakes in Planning Dual Suites
While the idea of two master suites sounds wonderful, there are several pitfalls to avoid during planning. One of the most common errors is not considering how the suites will fit into the overall flow of the house. The kitchen, living areas, and other common spaces should still feel connected even with private suites.
Another mistake is assuming that bigger always means better. Sometimes a smaller, more thoughtfully designed suite can be more satisfying than a large, poorly planned one. The focus should be on functionality rather than just square footage.
Other frequent issues include:
It's also important to think about how the suites will age. What happens when kids grow up and move out? Will the suites still serve their purpose, or will they need renovation?

Many homeowners discover too late that they need to adjust their floor plan to accommodate future changes, such as adding a third bedroom or converting a suite into a home office.
Budget Considerations and Cost Factors
Adding two master suites to a ranch floor plan significantly impacts the budget. While the exact costs vary based on location, materials, and finishes, it's helpful to understand the general price ranges involved.
The biggest expense usually comes from the construction or renovation itself. Here's what to expect:
One smart strategy is to prioritize the most important features in one suite while keeping the second suite more basic. This allows you to maximize your budget while still getting the dual suite benefit.
Keep in mind that while the initial investment is higher, homes with two master suites typically appreciate more in value. This can offset the added costs over time.
Consider timing your project carefully. Construction seasons and material prices can fluctuate, affecting your final budget. Also, think about financing options – some lenders offer specific loans for luxury home improvements.
Ranch floor plans with two master suites represent the perfect fusion of classic design and modern luxury. They offer families the flexibility to enjoy both togetherness and privacy, making them ideal for growing families, empty nesters, or anyone who values personal space within a communal home environment. When properly designed, these homes become more than just places to live – they become sanctuaries that support every family member's lifestyle needs.
Whether you're building a new home or renovating an existing one, the key is to start with clear goals and realistic expectations. Think about how you'll actually use the space, what features matter most to your family, and how the suites will integrate with the rest of your ranch-style home. With thoughtful planning, two master suites can transform your ranch into a truly exceptional living space that brings joy to everyone who calls it home.
The investment in dual master suites isn't just about luxury – it's about creating a home that grows with your family and reflects your values. After all, your home should feel like a comfortable place where everyone can relax, recharge, and be themselves.