Picture this: you're walking through your newly built home, feeling the warmth of your family's daily life flowing through every room. That dream isn't just wishful thinking. It's achievable when you choose the right 3 bedroom house plans single story. These homes offer something special – they're simple, functional, and deeply satisfying to live in. Whether you're planning a new build or remodeling, understanding what makes these layouts work is crucial.
When it comes to creating the perfect family home, few designs capture hearts quite like the classic 3 bedroom single story house plan. These homes have been the backbone of American suburban living for decades, and for good reason. They offer a balance between spaciousness and manageability that appeals to everyone from young families to empty nesters looking for low maintenance living. What makes these designs so universally loved? Let's explore the essential elements that make them work so well.
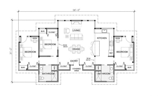
Why Choose Single Story 3 Bedroom Homes?

Single story homes offer a level of accessibility that's hard to beat. Think about it – no stairs means easier movement for elderly family members, young children, or anyone dealing with mobility issues. This design approach creates a seamless flow from one area to another. The open concept living spaces feel more spacious because there's no vertical division limiting the sense of space. Plus, they're generally easier and less expensive to build than multi-story alternatives. You get all the functionality you need without the complexity of managing multiple levels. Many people find that the straightforward layout helps reduce stress about household organization and daily routines.
Key Layout Considerations
The heart of any great 3 bedroom house plan lies in how well the rooms work together. Here's what to keep in mind:

These factors work together to create a home that feels both comfortable and efficient. A well-thought-out floor plan makes the difference between a house that feels cramped and one that feels expansive.
Popular Room Arrangements
Different families have different needs, which means there are several effective ways to arrange those three bedrooms:

Each configuration has its advantages. For instance, having the master bedroom at the rear can provide a peaceful retreat from the hustle and bustle of daily activities. Meanwhile, placing it toward the front might make it easier for guests to find their way to the main sleeping area. The choice often depends on the lot shape, local climate considerations, and personal preferences.
Space Optimization Tips
Making the most of every square foot matters, especially in smaller homes. Here are some smart approaches:

These features aren't just aesthetic choices – they're practical solutions that enhance daily living. When you think about it, every inch counts in a home where you want to feel comfortable and organized.
Budget-Friendly Design Strategies
Creating a beautiful 3 bedroom single story home doesn't have to break the bank. Consider these money-saving approaches:

Remember, it's not about spending the most money – it's about making smart decisions that give you the best value for your investment. Sometimes the simplest choices result in the most satisfying outcomes.
Practical Features for Modern Living
Today's homeowners want more than just basic functionality. They want features that enhance modern lifestyle:
These additions make a big difference in how comfortable and enjoyable your home is to live in. The right combination of features can turn a simple house into a truly livable space.
Choosing the right 3 bedroom house plans single story is about finding the perfect balance between practicality and comfort. These homes offer timeless appeal because they address fundamental needs – space, functionality, and ease of living. Whether you're building your first home or updating your current space, understanding these key principles will help you make informed decisions. The right layout can transform your daily routine, making every morning feel more pleasant and every evening more relaxing. Remember, the best house plans are those that fit your lifestyle and evolve with your family's changing needs. With thoughtful planning and attention to detail, your 3 bedroom single story home can become exactly what you've always imagined.